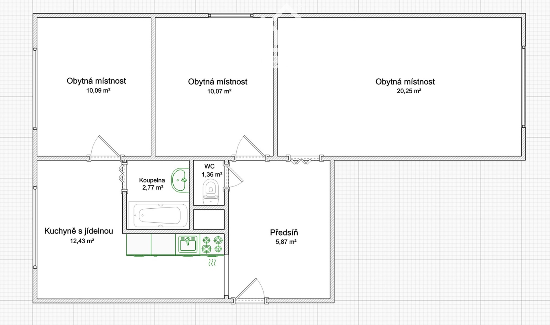
Prodej bytu, 3+1, 65 m²
Těšínská, Plzeň 4, Plzeň, Plzeň-město
5 220 000 KčProdej bytu, 3+1, 65 m²
Těšínská, Plzeň 4, Plzeň, Plzeň-město
Hezký byt 3+1 v Plzni na Doubravce
Klíčové vlastnosti bytu
Rekonstruované jádro a kuchyně: V roce 2000 prošel byt modernizací bytového jádra a instalací nové kuchyňské linky. Je ve velmi udržovaném stavu, připraven k nastěhování nebo drobným úpravám dle vašeho vkusu.
Nízké provozní náklady: Vytápění i ohřev vody jsou řešeny dálkově, což spolu se zateplením domu zajišťuje velmi úsporný provoz domácnosti.
Plastová okna: Samozřejmostí jsou kvalitní plastová okna, která skvěle izolují hluk i teplo.
Úložné prostory
K bytu náleží také praktická komora v mezipatře, kterou využijete pro uložení sezónních věcí, sportovního vybavení nebo jako příruční sklad.
Lokalita, kterou si zamilujete
Doubravka je vyhlášená svým klidem a zelení. Z Těšínské ulice máte vše na dosah.
Pro děti: Přímo za domem se nachází dětské hřiště, kde si děti mohou bezpečně hrát. Pár minut chůze vás dělí od oblíbeného Lobezského parku, ideálního pro procházky a sport.
Dostupnost: Zastávka trolejbusu je jen pár kroků od domu – v centru Plzně jste za 10 minut.
Služby: Nákupní centra, školy, školky a veškerá vybavenost Doubravky jsou v bezprostřední blízkosti.
Technologie: V domě je k dispozici vysokorychlostní internet.
Hledáte-li bydlení s nízkými náklady na skvělé adrese, tento byt je přesně pro vás. Neváhejte mě kontaktovat pro prohlídku. Těším se, až vám tento byt ukážu osobně!
| Cena: | 5 220 000 Kč |
| Dispozice/podlahová plocha: | 3+1/65 m² |
| Číslo zakázky: | REALITYMIX-21449VB |
Podrobné informace
- Bezbariérový byt: ano
- Dispozice bytu: 3+1
- Číslo podlaží v domě: 1
- Počet podlaží objektu: 1
- Celková podlahová plocha: 65 m²
- Druh objektu: panelová
- Stav objektu: dobrý
- Vlastnictví: osobní
- Doprava: silnice, MHD
- Voda: Voda - dálkový vodovod
- Telekomunikace: Internet
- Plyn: Plynovod
- Topení: Ústřední - dálkové
- Energetická náročnost budovy: C - Úsporná
- Ukazatel energetické náročnosti budovy: 84 kWh/m²
- Energetický ukazatel podle vyhlášky: č. 78/2013 Sb.
Právní rádce
-
Detail
V tomto článku shrneme nejdůležitější věci, které byste si měli promyslet, pokud se chystáte prodat svou nemovitost a chcete, abyste s kupujícím nemusel následně řešit vzniklé problémy.
Jako prodávající nesete rizika spojená nejen se samotným obchodem, ale i se stavem nemovitosti v době prodeje a pro minimalizaci rizik, je dobré se zamyslet nad uvedenými oblastmi.
-
Detail
Realitní makléř má své nezastupitelné místo v realitním obchodu. Realitním makléřem nemyslím nevzdělané jelito, které absolvovalo dvoudenní školení a ví, jak se nahraje inzerát na inzertní portál.
Realitním makléřem, který se Vám skutečně vyplatí, je zkušený profesionál, který je schopen Vám dobře poradit jak prodat za co nejvíc a s nejmenším rizikem a hlavně je Vás schopen obratně provést celým realitním obchodem.
Prodáváte nemovitost a potřebujete zjistit její reálnou hodnotu?
Zjistit reálnou cenuVývoj průměrné ceny za m2 v lokalitě Plzeň-město
Prodáváte nemovitost a potřebujete zjistit její reálnou hodnotu?
Zjistit reálnou cenuMapa
Podobné nemovitosti
Prodej bytu, 3+1, 75 m²
Sokolovská, Plzeň 1, Plzeň, Plzeň-město
5 495 000 Kč
Prodej bytu, 3+1, 62 m²
Nýřanská, Plzeň 1, Plzeň, Plzeň-město
4 800 000 Kč
Prodej bytu, 3+1, 76 m²
Kaznějovská, Plzeň 1, Plzeň, Plzeň-město
5 490 000 Kč
Prodej bytu, 3+1, 68 m²
U Prazdroje, Plzeň 3, Plzeň, Plzeň-město
5 580 000 Kč