Prodej bytu, 3+1, 94 m²
Dr. Horákové, Poděbrady II, Nymburk
7 957 325 KčProdej bytu, 3+1, 94 m²
Dr. Horákové, Poděbrady II, Nymburk
3+1 Dr. Horákové 49, Poděbrady
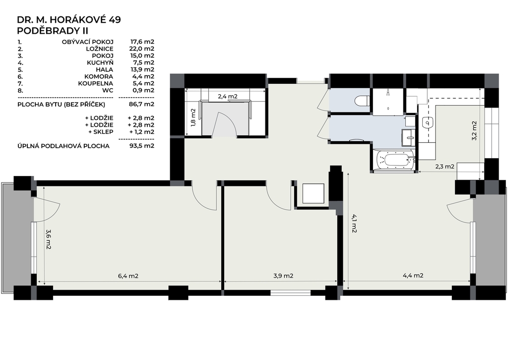
Jsme v Poděbradech, v bytě 3+1 o užitné ploše přes 86 metrů, s příslušenstvím dokonce 94. Po kompletní moderní rekonstrukci, v jedenáctém - předposledním - patře zatepleného panelového domu. V praxi to znamená: spousta světla, výhledy, ticho – a žádné starosti.
Hned za vstupem vás přivítá velkorysá hala. Ne stísněný tunel, ale prostor, kde se dá žít – převléct děti, složit tašky, postavit botník i lavici. Praktická nika na pračku a sušičku drží technické věci mimo obytnou část.
A teď do ložnice, kde rána začínají a večery končí. Na více než 22 metrech se sem vejde velká postel, skříň i pracovní stůl a pořád tu zůstane místo, aby místnost dýchala. Velká okna, vstup na lodžii. Místo, kde si člověk neukopne palec o postel a klidně si zacvičí jógu.
Přesuňme se rovnou do kuchyně. Ne malá, ne obří – tak akorát. Čisté linie, úložné prostory, vestavné spotřebiče AEG, indukce, mikrovlnka, trouba, a k tomu americká lednice s výrobníkem ledu. Velké okno poskytne světlo pro všechna vaše kulinářská kouzla – a když kouzlo selže, snadno vyvětráte.
Obývací pokoj - velký světlý prostor, kam se vejde sedačka, konferenční stolek, televize i pracovní nebo herní koutek. Podlaha s ořechovým dekorem a stěna z luxfer dodávají místnosti útulnost a moderní čistotu. Místnost, která neurazí žádný vkus a snadno se doladí do vašeho stylu.
Součástí obýváku je jídelní kout u oken – světlo, prostor na velký stůl a místo, kde se sedí dobře ráno i večer. A hned vedle vstup na druhou lodžii.
Další pokoj může být čímkoliv – dětský, studentský, pracovna nebo místnost pro virtuální realitu. Tak akorát velký, uprostřed bytu.
Z haly se dostanete do místnosti, která spoustě lidí splní velký sen – šatnu. Skutečnou walk-in šatnu se systémem polic, zásuvek a věšáků, kam schováte sezónní oblečení, kufry i sportovní vybavení, a byt přesto působí uklizeně.
Domácí wellness, nebo, chcete-li, koupelna. Dominantní červenobílé obklady, skleněná stěna z luxfer, skříňka s umyvadlem a hlavně masážní vana s podsvícenou vodou. Stačí napustit, zapálit svíčku a máte večerní spa. Pokud není čas na dlouhý relax, je tu velký sprchový kout a žebříkový radiátor.
Samostatné WC je samozřejmostí.
Byt má dvě lodžie – západní z obýváku, východní z ložnice. Ranní káva nad Poděbrady, večerní sklenka při západu slunce. Z 11. patra je vidět pěkně daleko.
Dům je zateplený, má dva výtahy, dva vchody, zadní bez bariér díky rampě. Udržovaný vstup, kolem domu zeleň, parkování v okolí relativně snadné.
Sportoviště, školy, nákupy, náměstí i vlak máte na dohled. A když chcete vyměnit panel za kolonádu, lázeňský park a řeku, jste tam za pár minut. Večer se vrátíte nahoru, zavřete byt – a klid nad městem je zase váš.
Jestli hledáte hotový, funkční rodinný byt 3+1 bez dalších investic, kde všechno dává smysl a dobře se žije, může to být váš nový domov.
Vůbec na nic nečekejte, vemte telefon a zavolejte.
| Cena: | 7 957 325 Kč |
| Dispozice/podlahová plocha: | 3+1/94 m² |
| Číslo zakázky: | REALITYMIX-0076 |
Podrobné informace
- Dispozice bytu: 3+1
- Číslo podlaží v domě: 11
- Počet podlaží objektu: 12
- Užitná plocha: 86 m²
- Celková podlahová plocha: 94 m²
- Druh objektu: panelová
- Stav objektu: po rekonstrukci
- Vlastnictví: osobní
- Lodžie: 5 m²
- Sklep: 1 m²
- Vybaveno: ano
- Umístění objektu: sídliště
- Doprava: vlak, dálnice, silnice, autobus
- Elektřina: Elektro - 230 V
- Voda: Voda - dálkový vodovod
- Telekomunikace: Internet
- Plyn: Plynovod
- Odpad: Kanalizace
- Ostatní rozvody: Kabelové rozvody
- Energetická náročnost budovy: C - Úsporná
- Ukazatel energetické náročnosti budovy: 80 kWh/m²
- Energetický ukazatel podle vyhlášky: č. 78/2013 Sb.
Právní rádce
-
Detail
V tomto článku shrneme nejdůležitější věci, které byste si měli promyslet, pokud se chystáte prodat svou nemovitost a chcete, abyste s kupujícím nemusel následně řešit vzniklé problémy.
Jako prodávající nesete rizika spojená nejen se samotným obchodem, ale i se stavem nemovitosti v době prodeje a pro minimalizaci rizik, je dobré se zamyslet nad uvedenými oblastmi.
-
Detail
Realitní makléř má své nezastupitelné místo v realitním obchodu. Realitním makléřem nemyslím nevzdělané jelito, které absolvovalo dvoudenní školení a ví, jak se nahraje inzerát na inzertní portál.
Realitním makléřem, který se Vám skutečně vyplatí, je zkušený profesionál, který je schopen Vám dobře poradit jak prodat za co nejvíc a s nejmenším rizikem a hlavně je Vás schopen obratně provést celým realitním obchodem.