Hospodářské noviny
Hledat Přihlásit seMůj účet Předplatné
Přihlásit seMůj účet Předplatné
  • Home
  • Byznys
  • Zprávy
  • Názory
  • Tech
  • Reality
  • Investice
  • Podcasty
  • Hry
  • PročNe
  • Archiv
  • Další
  • Jak nastartovat sever
  • Speciály HN
  • Víkend
  • Magazín Stavba
  • Knihy HN
  • Eventy
  • Green Deal
  • Inovátoři roku
  • Top ženy
  • Nej banka / Nej pojišťovna
  • Předplatné
  • Redakce
  • Inzerce
  • Kontakty
  • Newslettery
  • Ekonom
  • Logistika
  • Právní rádce
  • Hry
  • Economia
  • BeNative
  • Nastavení účtu
  • Moje předplatné
  • Odhlásit se

Reality

  • Reality
  • Vyhledávání nemovitostí
  • Top realitní fondy
  • Magazín Stavba
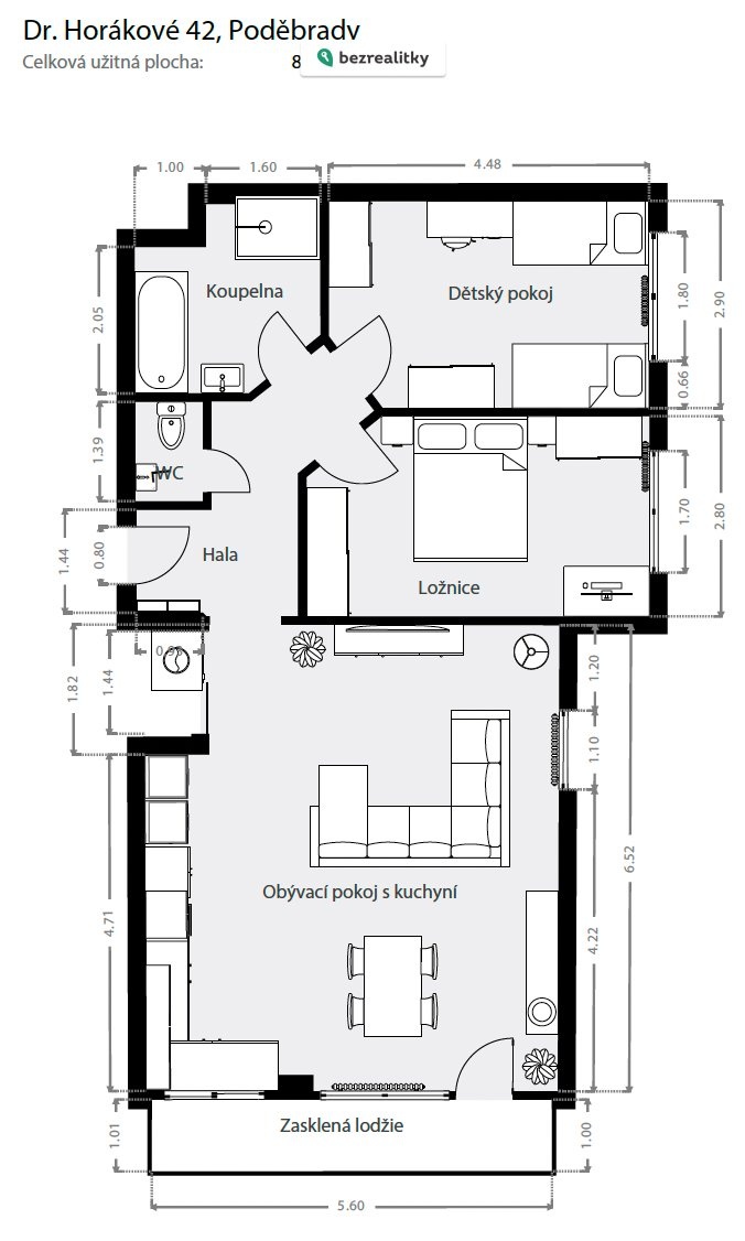
Prodej bytu, 3+kk, 86 m²

Prodej bytu, 3+kk, 86 m²

Dr. Horákové, Poděbrady II, Nymburk

8 395 000 Kč
  • RealityMIX
  • Byty
  • Prodej
  • Středočeský kraj
  • Nymburk
0 z 5 (0 hodnocení)

Prodej bytu, 3+kk, 86 m²

Dr. Horákové, Poděbrady II, Nymburk

8 395 000 Kč
C
Vyhovující
Výpis
Předchozí inzerát Další inzerát
1777807569-ncynnrlpcm-podebrady2-284-of-13-29
1777807569-tzazeqbcpe-podebrady2-285-of-13-29
1777807569-rbzkwgpvda-podebrady2-283-of-13-29

Prodej bytu 3+kk 86 m²

Hledáte výjimečný byt po kompletní a velmi rozsáhlé rekonstrukci, s maximálním důrazem na kvalitu, detail a dlouhodobou hodnotu? Tento byt je zcela nový – od technických rozvodů až po finální designové prvky. Stačí se jen nastěhovat.

Byt se nachází v přízemí bytového domu v klidné a vyhledávané části Poděbrad, v ulici Dr. Horákové, v lokalitě, která patří k absolutní špičce města.

Dominantou bytu je velkorysý obývací pokoj s kuchyní o ploše cca 36 m², vybavený novou klimatizací pro maximální pohodlí v letních měsících, s přímým vstupem na lodžii. Kuchyňská linka je vyrobena na míru, osazena vestavěnými spotřebiči. Okna jsou kompletně opravená a odborně seřízená, doplněná o žaluzie na míru.

Rekonstrukce bez kompromisů
• kompletně nová elektroinstalace dle nejpřísnějších aktuálních norem
• nové rozvody vody a odpadů
• podlahy srovnané nivelační stěrkou, provedené bez přechodových lišt pro čistý a moderní vzhled
• nové radiátory a sádrokartonové podhledy v celém bytě
• designové interiérové dveře, barevně sladěné se zásuvkami a vypínači, jejichž rozmístění bylo pečlivě promyšleno

Koupelna je navržena pro nejnáročnější uživatele – nachází se zde vana i sprchový kout s designovými podomítkovými bateriemi, podlahové topení a precizně zpracované kamenické detaily. WC je samostatné, což výrazně zvyšuje komfort každodenního bydlení.

Díky umístění bytu v přízemí jsou instalovány nové bezpečnostní a protipožární vstupní dveře. K bytu dále náleží 2 prostorné sklepy.

⸻

Lokalita, která šetří čas a dává klid

Jedním z největších benefitů tohoto bytu je jeho naprosto výjimečná poloha:
• lázeňská kolonáda je vzdálena pouhé 3 minuty chůze
• základní škola je pouhou 1 minutu pěšky od domu – maximální bezpečí pro děti, bez přecházení silnic, bez každodenního vožení autem a bez zbytečné ztráty času.

Veškerá občanská vybavenost je dostupná do 5 minut chůze – supermarket Albert, škola, školka, Jiřího náměstí, zimní stadion, fitness centra, kavárny, restaurace i další služby.
Pouhých 300 metrů od domu se nachází cyklostezka, která vede z Nymburka přes Poděbrady až do Kolína, ideální pro sport, procházky i volný čas. Tato nemovitost je určena výhradně přímým zájemcům o koupi. Na inzerát můžete také reagovat přímo na webu Bezrealitky.
Cena: 8 395 000 Kč  
Dispozice/podlahová plocha: 3+kk/86 m²
Číslo zakázky: REALITYMIX-984112

Podrobné informace

  • Dispozice bytu: 3+kk
  • Číslo podlaží v domě: 1
  • Počet podlaží objektu: 4
  • Celková podlahová plocha: 86 m²
  • Druh objektu: panelová
  • Stav objektu: po rekonstrukci
  • Vlastnictví: osobní
  • Lodžie: 5 m²
  • Sklep: 4 m²
  • Vybaveno: ano
  • Umístění objektu: klidná část obce
  • Energetická náročnost budovy: C - Vyhovující

Sdílej na:

Facebook     Twitter

Tisk nabídky (pdf)

  • (A4)
  • (A4)
  • (A4)
  • (A4)
  • (A5)

Poslat odkaz:

Právní rádce

Právní rádce
  • V tomto článku shrneme nejdůležitější věci, které byste si měli promyslet, pokud se chystáte prodat svou nemovitost a chcete, abyste s kupujícím nemusel následně řešit vzniklé problémy.

    Jako prodávající nesete rizika spojená nejen se samotným obchodem, ale i se stavem nemovitosti v době prodeje a pro minimalizaci rizik, je dobré se zamyslet nad uvedenými oblastmi.

    Detail
  • Realitní makléř má své nezastupitelné místo v realitním obchodu. Realitním makléřem nemyslím nevzdělané jelito, které absolvovalo dvoudenní školení a ví, jak se nahraje inzerát na inzertní portál.

    Realitním makléřem, který se Vám skutečně vyplatí, je zkušený profesionál, který je schopen Vám dobře poradit jak prodat za co nejvíc a s nejmenším rizikem a hlavně je Vás schopen obratně provést celým realitním obchodem.

    Detail
  • Detail
Chci vědět víc
Právní rádce

Prodáváte nemovitost a potřebujete zjistit její reálnou hodnotu?

Zjistit reálnou cenu

Vývoj průměrné ceny za m2 v lokalitě Středočeský kraj

Ceny uvedené v grafu, jsou průměrnými cenami ze sledované lokality a nezohledňují stav, stáří ani vybavení nemovitosti.
2Q 2022 80755
2Q 2022
Průměrná nabídková cena 80 755 Kč/m²

Aktuální nabídka: 97 616 Kč/m²
3Q 2022 79145
3Q 2022
Průměrná nabídková cena 79 145 Kč/m²

Aktuální nabídka: 97 616 Kč/m²
4Q 2022 76862
4Q 2022
Průměrná nabídková cena 76 862 Kč/m²

Aktuální nabídka: 97 616 Kč/m²
1Q 2023 76163
1Q 2023
Průměrná nabídková cena 76 163 Kč/m²

Aktuální nabídka: 97 616 Kč/m²
2Q 2023 74443
2Q 2023
Průměrná nabídková cena 74 443 Kč/m²

Aktuální nabídka: 97 616 Kč/m²
3Q 2023 75345
3Q 2023
Průměrná nabídková cena 75 345 Kč/m²

Aktuální nabídka: 97 616 Kč/m²
4Q 2023 76615
4Q 2023
Průměrná nabídková cena 76 615 Kč/m²

Aktuální nabídka: 97 616 Kč/m²
1Q 2024 78506
1Q 2024
Průměrná nabídková cena 78 506 Kč/m²

Aktuální nabídka: 97 616 Kč/m²
2Q 2024 80332
2Q 2024
Průměrná nabídková cena 80 332 Kč/m²

Aktuální nabídka: 97 616 Kč/m²
3Q 2024 81840
3Q 2024
Průměrná nabídková cena 81 840 Kč/m²

Aktuální nabídka: 97 616 Kč/m²
4Q 2024 82402
4Q 2024
Průměrná nabídková cena 82 402 Kč/m²

Aktuální nabídka: 97 616 Kč/m²
1Q 2025 84202
1Q 2025
Průměrná nabídková cena 84 202 Kč/m²

Aktuální nabídka: 97 616 Kč/m²
2Q 2025 87431
2Q 2025
Průměrná nabídková cena 87 431 Kč/m²

Aktuální nabídka: 97 616 Kč/m²
3Q 2025 88411
3Q 2025
Průměrná nabídková cena 88 411 Kč/m²

Aktuální nabídka: 97 616 Kč/m²
4Q 2025 90862
4Q 2025
Průměrná nabídková cena 90 862 Kč/m²

Aktuální nabídka: 97 616 Kč/m²
1Q 2026 92529
1Q 2026
Průměrná nabídková cena 92 529 Kč/m²

Aktuální nabídka: 97 616 Kč/m²

Prodáváte nemovitost a potřebujete zjistit její reálnou hodnotu?

Zjistit reálnou cenu

Mapa

* Umístění na mapě je na základě GPS informací dodaných realitní kanceláří.
* Pozice na mapě je pouze orientační.

Souhlas se zpracováním osobních údajů

Uživatel serveru Reality.hn.cz (dále jen „Server“) dostupného na internetové adrese (URL) https://realitymix.hn.cz, který provozuje společnost DALTEN media s.r.o., se sídlem Na Harfě 916/9a, Praha 9, 190 00, IČO: 271 35 306 (dále jen „Správce“) jako provozovateli tohoto Serveru uděluje svůj výslovný souhlas v souladu s ustanovením § 5 zákona č. 101/2000 Sb. O ochraně osobních údajů a o změně některých zákonů, v platném znění (dále jen „zákon o ochraně osobních údajů“), se zpracováním uživatelem poskytnutých osobních údajů a dalších dat.

Uživatel poskytuje Správci osobní údaje v rozsahu: jméno, příjmení, e-mailová adresa, telefonický kontakt a další data, a to z důvodu projeveného zájmu o nemovitost, kde prostřednictvím služby Serveru Správce osloví Uživatel inzerenta uvedeného v detailu nemovitosti - Bezrealitky s.r.o. (IČ 08063168) se zájmem o jeho služby.

Uživatel tyto osobní údaje poskytuje dobrovolně a bere na vědomí, že součástí služeb Správce, které Správce Uživateli poskytuje, je vyhledání všech Uživateli vyhovujících (dle parametrů - cena, typ nemovitosti, lokalita atd.) nemovitostí. Správce za tímto účelem provozuje aplikace Hlídací pes a newsletter. Tyto služby je možné z každého zaslaného emailu odhlásit. Souhlas se zpracováním osobních údajů Uživatel poskytuje Správci na dobu neurčitou s tím, že svůj udělený souhlas může Uživatel kdykoliv na drese správce info@realitymix.cz odvolat. Správce garantuje Uživateli i další práva uvedené v ustanovení §11 a §21 zákoba č. 101/200 Sb. Ve znění pozdějších předpisů. Více informací o zpracování údajů získáte zde (realitymix.cz/zasady-ochrany-osobnich-udaju)

Podobné nemovitosti

Prodej bytu, 3+kk, 80 m² obrázek

Prodej bytu, 3+kk, 80 m²

Úmyslovice, Nymburk

6 250 000 Kč
Prodej bytu, 3+kk, 78 m² obrázek

Prodej bytu, 3+kk, 78 m²

Sportovní, Mladá, Nymburk

7 970 000 Kč
Prodej bytu, 3+kk, 72 m² obrázek

Prodej bytu, 3+kk, 72 m²

Sportovní, Mladá, Nymburk

6 510 000 Kč
Prodej bytu, 3+kk, 189 m² obrázek

Prodej bytu, 3+kk, 189 m²

Sportovní, Mladá, Nymburk

8 070 000 Kč

Napsat zprávu prodejci

Prodej bytu, 3+kk, 86 m²

Prodej bytu, 3+kk, 86 m²

Dr. Horákové, Poděbrady II, Nymburk

8 395 000 Kč

Hospodářské noviny

© 1996-2026 Economia, a.s.

Hospodářské noviny (print)   ISSN 0862-9587
Hospodářské noviny (online) ISSN 2787-950X

Certifikováno
jti
Sledujte nás
Stáhněte si aplikaci HN
  • Kontakty
  • Tiráž redakce HN
  • Economia
  • Kariéra v HN
  • Ceník inzerce
  • Ochrana osobních údajů
  • Prohlášení o cookies
  • Nastavení soukromí
  • Všeobecné smluvní podmínky
  • Koupit / darovat předplatné
  • Eventy
  • Newslettery
  • RSS kanály
Autorská práva vykonává vydavatel. Bez písemného svolení vydavatele je zakázáno jakékoli užití částí nebo celku díla, zejména rozmnožování a šíření jakýmkoli způsobem, mechanickým nebo elektronickým, v českém nebo jiném jazyce. Bez souhlasu vydavatele je zakázáno též rozmnožování obsahu pro účely automatizované analýzy textů nebo dat podle ustanovení § 39c autorského zákona.