Prodej bytu, 1+1, 41 m²
U bazénu, Praha-Libuš, Písnice
RezervovánoProdej bytu, 1+1, 41 m²
U bazénu, Praha-Libuš, Písnice
Byt 1+1 s komorou – Praha Písnice
V lokalitě je navíc plánováno metro D, které výrazně zrychlí spojení s centrem Prahy a do budoucna ještě zvýší hodnotu nemovitosti. Díky tomu jde o zajímavou koupi s potenciálem růstu.
Dispozice 1+1 s oddělenou kuchyní a komorou na patře poskytuje dostatek prostoru a zároveň umožňuje jednoduchou úpravu na 2+kk.
Byt je čistý, udržovaný a připravený k okamžitému užívání – ať už pro vlastní bydlení, nebo pokračování v pronájmu.
Dům je po revitalizaci, působí klidně, udržovaně a má energetickou náročnost třídy A, což zajišťuje nízké provozní náklady.
Aktuálně je byt pronajatý spolehlivému nájemníkovi, takže generuje okamžitý měsíční výnos bez nutnosti cokoliv řešit.
Technické informace
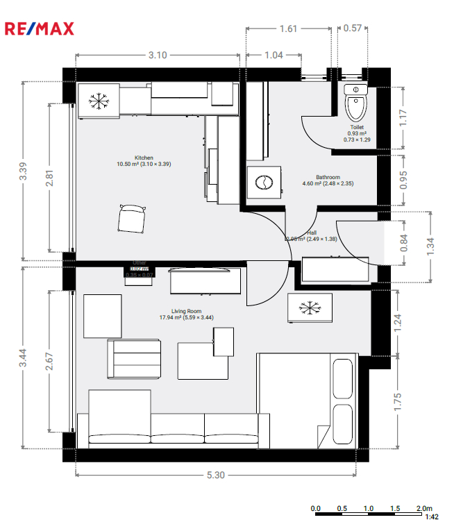
Dispozice: 1+1, 41 m²
Možnost úpravy na 2+kk
Komora: na patře u bytu
Podlaží: 4. nadzemní podlaží
Stav bytu: udržovaný
Konstrukce domu: panelový, po revitalizaci
Energetická náročnost: třída A
Současný stav: obsazený nájemníkem – generuje stabilní výnos
Lokalita
Praha–Písnice je unikátní část města, kde se potkává česká a asijská kultura, což jí dodává osobitou atmosféru.
Nabízí klid, zeleň a rodinné prostředí, ale zároveň skvělou dopravní dostupnost – MHD 2 minuty chůze, metro je nyní na dosah a brzy tu povede metro D.
V okolí je vše potřebné:
park, louka a hřiště
obchody a služby
Sapa přes silnici – centrum gastronomie a obchodu
OC Chodov pár minut autem
školy, sportoviště a cyklostezky
Díky tomu je lokalita dlouhodobě vyhledávaná jak rodinami, tak studenty a investory.
Majitel si vyhrazuje právo zvolit nejvhodnějšího zájemce.
| Cena: | Rezervováno |
| Dispozice/podlahová plocha: | 1+1/41 m² |
| Číslo zakázky: | REALITYMIX-423681 |
Podrobné informace
- Dispozice bytu: 1+1
- Číslo podlaží v domě: 4
- Počet podlaží objektu: 9
- Užitná plocha: 41 m²
- Celková podlahová plocha: 41 m²
- Druh objektu: panelová
- Stav objektu: velmi dobrý
- Vlastnictví: osobní
- Doprava: silnice, MHD, autobus
- Elektřina: Elektro - 230 V
- Voda: Voda - dálkový vodovod
- Odpad: Kanalizace
- Energetická náročnost budovy: A - Mimořádně úsporná
- Energetický ukazatel podle vyhlášky: č. 264/2020 Sb.
Právní rádce
-
Detail
V tomto článku shrneme nejdůležitější věci, které byste si měli promyslet, pokud se chystáte prodat svou nemovitost a chcete, abyste s kupujícím nemusel následně řešit vzniklé problémy.
Jako prodávající nesete rizika spojená nejen se samotným obchodem, ale i se stavem nemovitosti v době prodeje a pro minimalizaci rizik, je dobré se zamyslet nad uvedenými oblastmi.
-
Detail
Realitní makléř má své nezastupitelné místo v realitním obchodu. Realitním makléřem nemyslím nevzdělané jelito, které absolvovalo dvoudenní školení a ví, jak se nahraje inzerát na inzertní portál.
Realitním makléřem, který se Vám skutečně vyplatí, je zkušený profesionál, který je schopen Vám dobře poradit jak prodat za co nejvíc a s nejmenším rizikem a hlavně je Vás schopen obratně provést celým realitním obchodem.