Prodej bytu, 3+kk, 82 m²
Květinková, Praha 3, Žižkov
10 799 000 KčProdej bytu, 3+kk, 82 m²
Květinková, Praha 3, Žižkov
Byt 3+kk po celkové rekonstrukci s balkonem a garáží – Praha 3 Žižkov
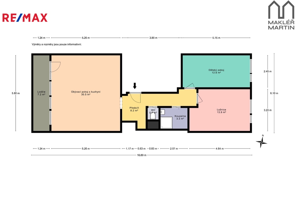
Dispozice bytu je velmi praktická a poskytuje komfortní bydlení pro rodinu i jednotlivce. Užitná plocha bytu činí 71 m² a zahrnuje prostorný obývací pokoj s kuchyňským koutem, dvě samostatné ložnice, koupelnu a oddělenou toaletu. Z obývacího pokoje je přímý vstup na balkon o velikosti 7 m², který nabízí příjemný prostor pro relaxaci a hezký výhled do okolí.
Byt prošel kompletní rekonstrukcí a je ve velmi dobrém technickém stavu. Klimatizace je instalována v obývacím pokoji a zajišťuje příjemné vnitřní klima zejména v letních měsících. Vytápění bytu je řešeno centrálně dálkově prostřednictvím radiátorů. Přívod vody je z veřejného vodovodu, odpad je napojen na kanalizaci.
Součástí bytu je sklep o velikosti 4 m², který poskytuje dostatek úložného prostoru. Další významnou výhodou je podzemní garážové stání, které se převádí na nového majitele formou nájemní smlouvy. Družstvo v současné době neumožňuje vyplacení anuity za garáž, měsíční nájemné činí 800 Kč.
Měsíční náklady na bydlení jsou standardní a činí přibližně 3 000 Kč za fond oprav, 1 600 Kč za vodu a 1 400 Kč za vytápění. Byt se nachází v panelovém domě z roku 1990, který je průběžně udržovaný a disponuje výtahem i bezproblémovým parkováním v okolí domu.
Lokalita Praha 3 – Žižkov nabízí kompletní občanskou vybavenost, skvělou dopravní dostupnost do centra města, blízkost MHD, obchodů, škol, školek i zeleně. Jedná se o vyhledávanou městskou část, která kombinuje klidné bydlení s výhodami širšího centra Prahy.
Byt je v družstevním vlastnictví, přičemž v současné době probíhá převod do osobního vlastnictví. Nemovitost je vhodná jak pro vlastní bydlení/hypotéka, tak i jako zajímavá investiční příležitost do budoucna.
V případě zájmu o více informací nebo osobní prohlídku mě neváhejte kontaktovat.
Prodávající si vyhrazuje právo vybrat kupujícího na základě jím zvolených kritérií.
| Cena: | 10 799 000 Kč |
| Poznámka: | včetně provize a právních služeb |
| Dispozice/podlahová plocha: | 3+kk/82 m² |
| Číslo zakázky: | REALITYMIX-431066 |
Podrobné informace
- Dispozice bytu: 3+kk
- Číslo podlaží v domě: 5
- Počet podlaží objektu: 8
- Užitná plocha: 71 m²
- Celková podlahová plocha: 82 m²
- Druh objektu: panelová
- Stav objektu: dobrý
- Vlastnictví: osobní
- Balkon: 7 m²
- Sklep: 4 m²
- Doprava: silnice, MHD
- Elektřina: Elektro - 230 V
- Voda: Voda - dálkový vodovod
- Odpad: Kanalizace
- Ostatní rozvody: Kabelové rozvody
- Energetická náročnost budovy: D - Méně úsporná
- Ukazatel energetické náročnosti budovy: 98.8 kWh/m²
- Energetický ukazatel podle vyhlášky: č. 78/2013 Sb.
Právní rádce
-
Detail
V tomto článku shrneme nejdůležitější věci, které byste si měli promyslet, pokud se chystáte prodat svou nemovitost a chcete, abyste s kupujícím nemusel následně řešit vzniklé problémy.
Jako prodávající nesete rizika spojená nejen se samotným obchodem, ale i se stavem nemovitosti v době prodeje a pro minimalizaci rizik, je dobré se zamyslet nad uvedenými oblastmi.
-
Detail
Realitní makléř má své nezastupitelné místo v realitním obchodu. Realitním makléřem nemyslím nevzdělané jelito, které absolvovalo dvoudenní školení a ví, jak se nahraje inzerát na inzertní portál.
Realitním makléřem, který se Vám skutečně vyplatí, je zkušený profesionál, který je schopen Vám dobře poradit jak prodat za co nejvíc a s nejmenším rizikem a hlavně je Vás schopen obratně provést celým realitním obchodem.