Prodej bytu, 4+1, 120 m²
Lysolajské údolí, Praha-Lysolaje, Lysolaje
14 500 000 KčProdej bytu, 4+1, 120 m²
Lysolajské údolí, Praha-Lysolaje, Lysolaje
Designový mezonet 4+1 (120 m²) | Lysolajské údolí, Praha 6
Byt je součástí komorního domu se třemi samostatnými jednotkami a vlastními vstupy. Díky tomu nabízí příjemnou míru soukromí a pocit bydlení v rodinném domě. Okolní zeleň a minimum ruchu vytváří atmosféru klidu, přesto jste do 8 minut na metru A Dejvická.
Co vás zde bude bavit:
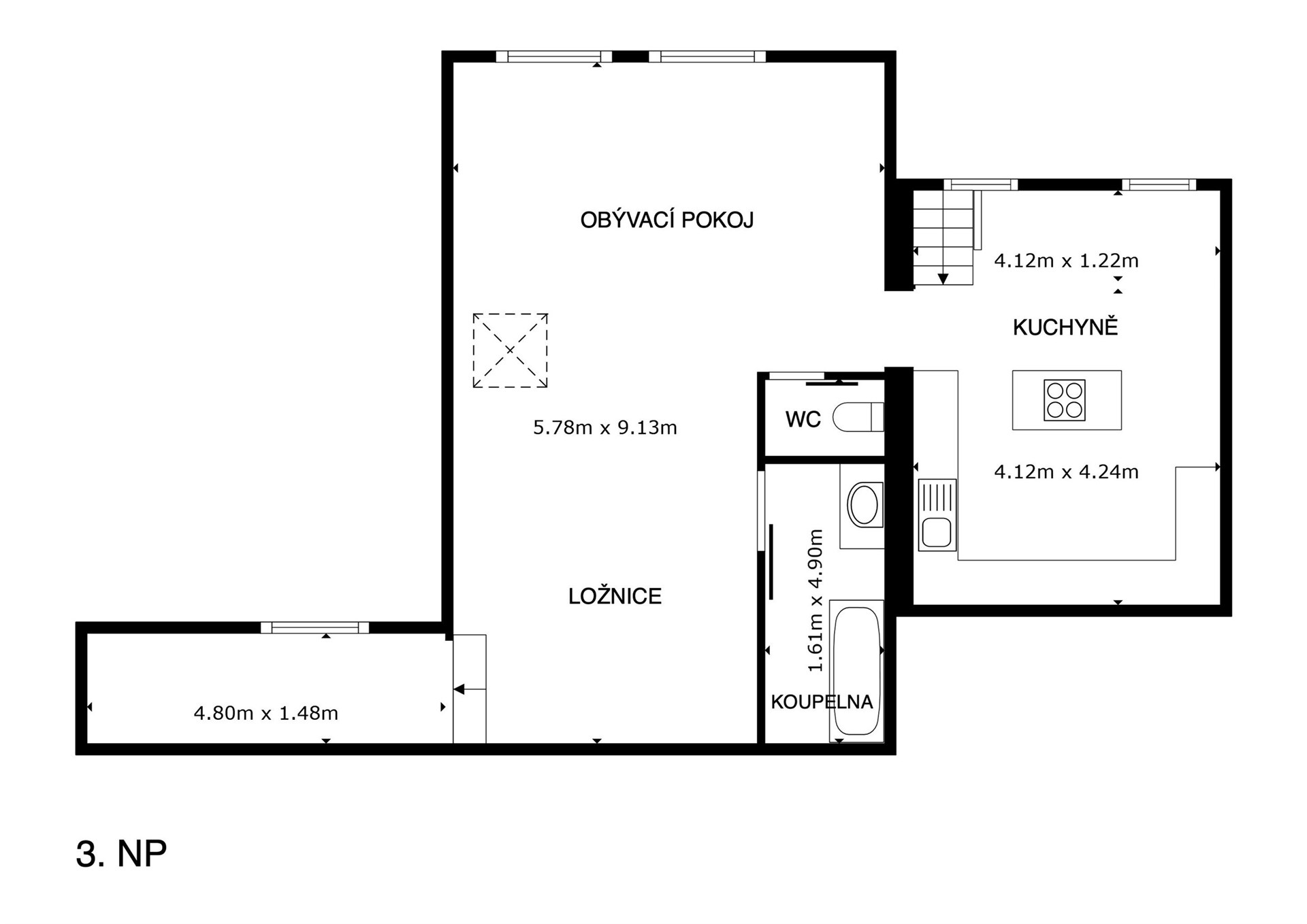
120 m² obytné plochy v podkrovním mezonetovém uspořádání
světlé interiéry s dostatkem prostoru pro rodinu i práci z domova
podíl na zahradě s bazénem, altánkem a technickým zázemím
možnost dokoupení samostatné garáže o velikosti 20 m²
nízké provozní náklady díky zateplení, trojsklům a vlastní studni se skalními prameny
energetická náročnost budovy třída B
dům po rekonstrukci elektroinstalace, rozvodů vody i odpadů
Vytápění je řešeno elektrickým kotlem, ohřev vody zajišťuje bojler. Byt nabízí dostatek flexibility pro úpravy dispozice i interiéru podle Vašich představ.
V tuto chvíli jsou v domě k dispozici tyto jednotky:
mezonet 5+1, 157 m²
mezonet 4+1, 120 m²
byt 1+1, 38,5 m²
Pro dům bude založeno SVJ. Zahrada a bazén budou ve spoluvlastnictví a náležet výhradně vlastníkům bytů v domě, s výjimkou jednotky 1+1 o velikosti 38,5 m². Cena je nastavena s ohledem na delší rezervační období, které je nezbytné pro rezervaci všech jednotek. Po jejich rezervaci dojde k prohlášení vlastníka a k oficiálnímu vymezení bytových jednotek.
Financování hypotečním úvěrem je možné a s jeho vyřízením Vám rádi pomůžeme. Po dohodě lze zajistit i úpravy interiéru tak, aby bydlení odpovídalo Vašemu stylu.
Pro více informací, detailní podklady nebo virtuální prohlídku přes Matterport mě neváhejte kontaktovat. Rád Vás nemovitostí osobně provedu.
| Cena: | 14 500 000 Kč |
| Datum k nastěhování: | 17.01.2026 |
| Dispozice/podlahová plocha: | 4+1/120 m² |
| Číslo zakázky: | REALITYMIX-967995 |
Podrobné informace
- Dispozice bytu: 4+1
- Číslo podlaží v domě: 3
- Počet podlaží objektu: 2
- Celková podlahová plocha: 120 m²
- Druh objektu: cihlová
- Stav objektu: po rekonstrukci
- Vlastnictví: osobní
- Terasa: ano
- Vybaveno: ano
- Doprava: silnice, MHD
- Elektřina: Elektro - 230 V
- Voda: Zdroj pro celý objekt
- Telekomunikace: Internet
- Plyn: Plynovod
- Odpad: Kanalizace
- Energetická náročnost budovy: B - Úsporná
- Popis vybavení: Bazén
Právní rádce
-
Detail
V tomto článku shrneme nejdůležitější věci, které byste si měli promyslet, pokud se chystáte prodat svou nemovitost a chcete, abyste s kupujícím nemusel následně řešit vzniklé problémy.
Jako prodávající nesete rizika spojená nejen se samotným obchodem, ale i se stavem nemovitosti v době prodeje a pro minimalizaci rizik, je dobré se zamyslet nad uvedenými oblastmi.
-
Detail
Realitní makléř má své nezastupitelné místo v realitním obchodu. Realitním makléřem nemyslím nevzdělané jelito, které absolvovalo dvoudenní školení a ví, jak se nahraje inzerát na inzertní portál.
Realitním makléřem, který se Vám skutečně vyplatí, je zkušený profesionál, který je schopen Vám dobře poradit jak prodat za co nejvíc a s nejmenším rizikem a hlavně je Vás schopen obratně provést celým realitním obchodem.