Prodej bytu, 3+1, 78 m²
Záhorského, Praha 5, Hlubočepy
7 990 000 KčProdej bytu, 3+1, 78 m²
Záhorského, Praha 5, Hlubočepy
7 990 000 Kč
D
Méně úsporná
Doporučujeme světlý byt 3+1 s lodžií a sklepem, celkem cca 77,91 m2, Praha 5 - Hlubočepy, ul. Záhor
Dovolujeme si vám exkluzivně nabídnout ke koupi dispozičně zajímavý světlý byt s prostornou lodžií a sklepem, nacházející se v 1.patře panelového domu, v ulici Záhorského na Praze 5 - Hlubočepích. Mezi největší výhody patří zmíněná praktická dispozice bytu s možností vlastních úprav a také lokalita v blízkosti zeleně.
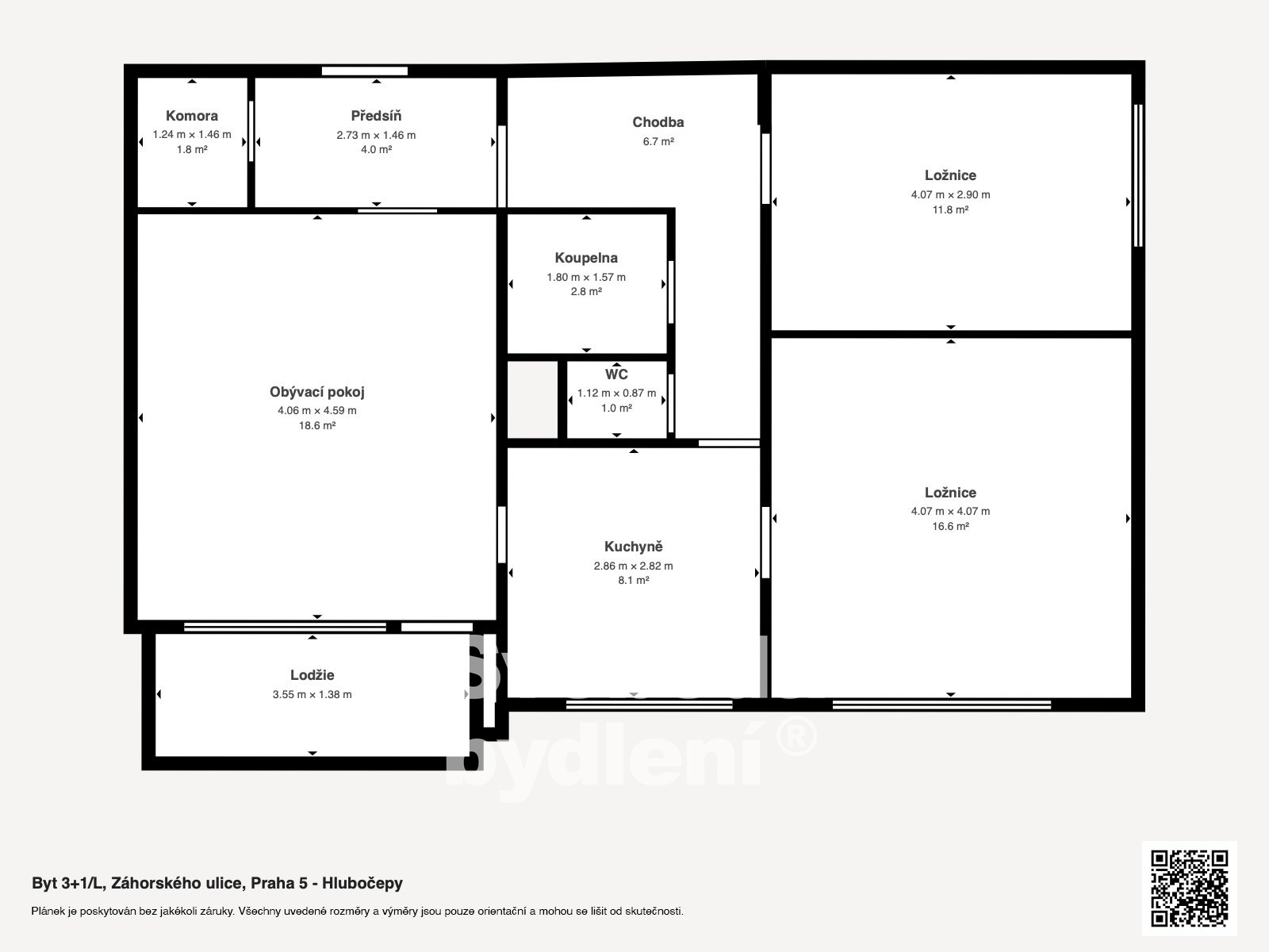
Vstupní dveře bytu vedou do předsíně (cca 10,74 m2) tvaru L, ze které se vchází do jednotlivých místností. Hned po pravé straně nalezneme praktickou komoru (cca 1,86 m2), proti vstupu pokračujeme do obývacího pokoje (cca 18,5 m2) s lodžií (cca 4,71 m2) a dále do kuchyně (cca 7,92 m2). Po levé straně předsíně se nachází nalevo dvě ložnice (cca 16,36 a 11,64 m2), napravo je koupelna (cca 2,83 m2) a samostatná toaleta (cca 1,04 m2). Čelo předsíně uzavírá další vstup do dříve zmíněné kuchyně. Přesný přehled o dispozici bytu Vám nabídne podrobná virtuální prohlídka. Všechny výměry jsou orientační.
Byt je průběžně udržovaný, v původním stavu bez modernizací, je tedy možné si ho přebudovat a upravit dle svých představ tak, aby odpovídal svým vzhledem a rozložením aktuálním potřebám.
Byt nabízí příjemné otevřené výhledy do dvou stran, na jihovýchod ( ložnice) a jihozápad (obývací pokoj s lodžií, druhá ložnice a kuchyně). Díky tomu je celý prostor světlý a působí velmi vzdušným dojmem. Koupelna a samostatná toaleta jsou umakartové. V kuchyni je instalována původní kuchyňská linka. Byt disponuje dostatkem úložných prostor v podobě původních vestavných skříní, komory v bytě a také sklepní koje (cca 2,31m2) v 1.PP domu.
Panelový dům z cca 90. let je průběžně udržován, prošel zateplením fasády a současně výměnou plastových oken. Vytápění a ohřev vody zajišťuje výměníková stanice v 1.PP.
Plocha bytu je cca 70,89m2 plus lodžie cca 4,71m2, plus sklep cca 2,31, tj celkem 77,91m2. Byt je v družstevním vlastnictví (nyní není plánován převod do OV). Měsíční poplatky činí 6.439,-Kč (včetně FO 3.545-Kč) plus měsíční splátka anuity 7.150,-Kč ( do roku 2034, přibližná částka k doplacení celkem je cca 552.000,-Kč a je zahrnuta v uvedené ceně) plus elektřina v bytě. Energetická třída D. Vlastník si vyhrazuje právo výběru lepší nabídky.
Lokalita nabízí vše, co je dnes požadováno k pohodlnému a aktivnímu životu - dostatek zeleně, dosah přírody (např. Prokopské údolí, Radotínsko-Chuchelský háj), výbornou dostupnost, samozřejmostí je veškerá občanská vybavenost.
Hledáte-li příjemné místo k bydlení, před rekonstrukcí s možností vlastní realizace, ve vyhledávané lokalitě s výbornou dostupností, dovoluji si Vám tuto nabídku jedině doporučit. Prohlídky s vážnými zájemci jsou možné kdykoliv po telefonické dohodě.
Vstupní dveře bytu vedou do předsíně (cca 10,74 m2) tvaru L, ze které se vchází do jednotlivých místností. Hned po pravé straně nalezneme praktickou komoru (cca 1,86 m2), proti vstupu pokračujeme do obývacího pokoje (cca 18,5 m2) s lodžií (cca 4,71 m2) a dále do kuchyně (cca 7,92 m2). Po levé straně předsíně se nachází nalevo dvě ložnice (cca 16,36 a 11,64 m2), napravo je koupelna (cca 2,83 m2) a samostatná toaleta (cca 1,04 m2). Čelo předsíně uzavírá další vstup do dříve zmíněné kuchyně. Přesný přehled o dispozici bytu Vám nabídne podrobná virtuální prohlídka. Všechny výměry jsou orientační.
Byt je průběžně udržovaný, v původním stavu bez modernizací, je tedy možné si ho přebudovat a upravit dle svých představ tak, aby odpovídal svým vzhledem a rozložením aktuálním potřebám.
Byt nabízí příjemné otevřené výhledy do dvou stran, na jihovýchod ( ložnice) a jihozápad (obývací pokoj s lodžií, druhá ložnice a kuchyně). Díky tomu je celý prostor světlý a působí velmi vzdušným dojmem. Koupelna a samostatná toaleta jsou umakartové. V kuchyni je instalována původní kuchyňská linka. Byt disponuje dostatkem úložných prostor v podobě původních vestavných skříní, komory v bytě a také sklepní koje (cca 2,31m2) v 1.PP domu.
Panelový dům z cca 90. let je průběžně udržován, prošel zateplením fasády a současně výměnou plastových oken. Vytápění a ohřev vody zajišťuje výměníková stanice v 1.PP.
Plocha bytu je cca 70,89m2 plus lodžie cca 4,71m2, plus sklep cca 2,31, tj celkem 77,91m2. Byt je v družstevním vlastnictví (nyní není plánován převod do OV). Měsíční poplatky činí 6.439,-Kč (včetně FO 3.545-Kč) plus měsíční splátka anuity 7.150,-Kč ( do roku 2034, přibližná částka k doplacení celkem je cca 552.000,-Kč a je zahrnuta v uvedené ceně) plus elektřina v bytě. Energetická třída D. Vlastník si vyhrazuje právo výběru lepší nabídky.
Lokalita nabízí vše, co je dnes požadováno k pohodlnému a aktivnímu životu - dostatek zeleně, dosah přírody (např. Prokopské údolí, Radotínsko-Chuchelský háj), výbornou dostupnost, samozřejmostí je veškerá občanská vybavenost.
Hledáte-li příjemné místo k bydlení, před rekonstrukcí s možností vlastní realizace, ve vyhledávané lokalitě s výbornou dostupností, dovoluji si Vám tuto nabídku jedině doporučit. Prohlídky s vážnými zájemci jsou možné kdykoliv po telefonické dohodě.
| Cena: | 7 990 000 Kč |
| Poznámka: | včetně zbývající anuity ve výši cca 552.000,-Kč; včetně provize a právního servisu poskytnutého advo |
| Dispozice/podlahová plocha: | 3+1/78 m² |
| Číslo zakázky: | REALITYMIX-00198 |
Podrobné informace
- Dispozice bytu: 3+1
- Číslo podlaží v domě: 2
- Počet podlaží objektu: 1
- Celková podlahová plocha: 78 m²
- Druh objektu: panelová
- Stav objektu: dobrý
- Vlastnictví: družstevní
- Energetická náročnost budovy: D - Méně úsporná
- Ukazatel energetické náročnosti budovy: 135 kWh/m²
- Energetický ukazatel podle vyhlášky: č. 264/2020 Sb.
Právní rádce
-
Detail
Realitní makléř má své nezastupitelné místo v realitním obchodu. Realitním makléřem nemyslím nevzdělané jelito, které absolvovalo dvoudenní školení a ví, jak se nahraje inzerát na inzertní portál.
Realitním makléřem, který se Vám skutečně vyplatí, je zkušený profesionál, který je schopen Vám dobře poradit jak prodat za co nejvíc a s nejmenším rizikem a hlavně je Vás schopen obratně provést celým realitním obchodem.
-
Detail
Důvodem je odlišný přístup makléře k zakázce. Pokud je kupní cena inzerována včetně provize, tak realitního makléře platí prodávající. Pokud je kupní cena inzerována bez provize, tak provizi platí kupující.
Prodáváte nemovitost a potřebujete zjistit její reálnou hodnotu?
Zjistit reálnou cenuVývoj průměrné ceny za m2 v lokalitě Praha 5
Ceny uvedené v grafu, jsou průměrnými cenami ze sledované lokality a nezohledňují stav, stáří ani vybavení nemovitosti.
Prodáváte nemovitost a potřebujete zjistit její reálnou hodnotu?
Zjistit reálnou cenuMapa
* Umístění na mapě je na základě GPS informací dodaných realitní kanceláří.
* Pozice na mapě je pouze orientační.