Prodej bytu, 1+kk, 41 m²
Vítkova, Praha 8, Karlín
7 990 000 KčProdej bytu, 1+kk, 41 m²
Vítkova, Praha 8, Karlín
7 990 000 Kč
G
Mimořádně nehospodárná
Družstevní byt 1+kk s vestavěným patrem Praha 8 Karlín, Vítkova ul.
Nabízím vám na prodej družstvení byt (převod členských práv v bytovém družstvu spojené s nájmem bytu) 1+kk s vestavěným patrem na adrese Vítkova 236/15, Praha 8 - Karlín.
Chcete bydlet v útulném bytě v docházkové vzdálenosti centra Prahy v sousedství Karlínského náměstí? V přímém sousedctví je umístěna Karlínská synagoga.
Nebo chcete investovat do bytu vhodného pro dlouhodobý pronájem ve skvělé lokalitě? Máme pro vás jedinečnou nabídku!
Byt má splacenou veškerou anuitu a nic jiného hradit nebudete.
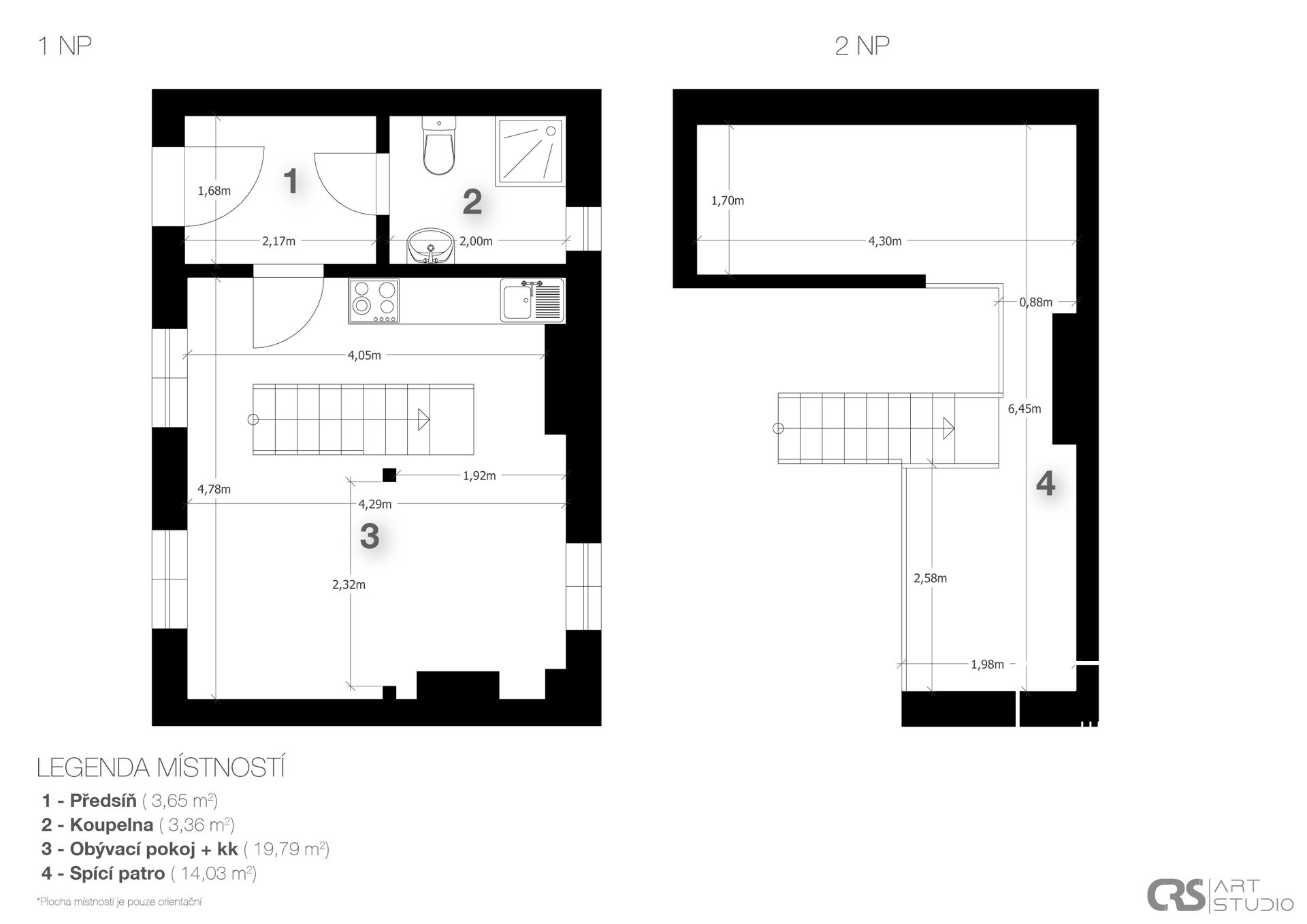
Byt je úplně nový a budete jeho první uživatelé. Jsou zde vysoké stropy, které umožnily výstavbu dřevěného vestavěného patra s výměrou 14 m2 s částí na spaní a částí pro pracovnu s výškou 2 metry. Je zde kuchyň, koupelna a veškeré vybavení. Byt je připravený k nastěhování. Přístupný je z pavlače.
O nemovitosti:
•Adresa: Vítkova 236/15, Praha 8 - Karlín
•Dispozice: 1+kk + vestavené patro na spaní a pracovnu.
•Rozloha: 27 m² + vestavěné patro 14 m².
•Umístění: 3. patro (4. nadzemní podlaží) v cihlovém bytovém domě bez výtahu.
•Vlastnictví: Družstevní (financování hypotékou je možné pouze se zástavou jiné vaší nemovitosti).
•Parkování: před domem na modrých zónách.
Přednosti bytu:
•Prostorný obývací pokoj s kuchyňským koutem. Prostor na spaní a pracovna ve vestavěném patře. Byt je krásně prosvětlený a je v domě, který je kompletně opraven a ve velmi dobrém stavu. Další nespornou výhodou je jeho umístění v centru Karlína v docházkové vzdálenosti do centra Prahy a za rohem od Karlínského náměstí.
Investiční příležitost:
•Vhodné pro vlastní bydlení i jako investice: V této lokalitě je vysoká poptávka po pronájmech
•Atraktivní nájmy: Potenciál pro stabilní a zajímavý příjem z pronájmu
Financování:
•Byt je v družstevním vlastnictví: Financování hypotékou je možné pouze se zástavou jiné vaší nemovitosti. Převod do vlastnictví se neplánuje.
•Bezproblémový převod: Vše připraveno k rychlému a hladkému průběhu převodu družstevních práv a vašemu nastěhování.
Neváhejte a domluvte si prohlídku ještě dnes!
Chcete bydlet v útulném bytě v docházkové vzdálenosti centra Prahy v sousedství Karlínského náměstí? V přímém sousedctví je umístěna Karlínská synagoga.
Nebo chcete investovat do bytu vhodného pro dlouhodobý pronájem ve skvělé lokalitě? Máme pro vás jedinečnou nabídku!
Byt má splacenou veškerou anuitu a nic jiného hradit nebudete.
Byt je úplně nový a budete jeho první uživatelé. Jsou zde vysoké stropy, které umožnily výstavbu dřevěného vestavěného patra s výměrou 14 m2 s částí na spaní a částí pro pracovnu s výškou 2 metry. Je zde kuchyň, koupelna a veškeré vybavení. Byt je připravený k nastěhování. Přístupný je z pavlače.
O nemovitosti:
•Adresa: Vítkova 236/15, Praha 8 - Karlín
•Dispozice: 1+kk + vestavené patro na spaní a pracovnu.
•Rozloha: 27 m² + vestavěné patro 14 m².
•Umístění: 3. patro (4. nadzemní podlaží) v cihlovém bytovém domě bez výtahu.
•Vlastnictví: Družstevní (financování hypotékou je možné pouze se zástavou jiné vaší nemovitosti).
•Parkování: před domem na modrých zónách.
Přednosti bytu:
•Prostorný obývací pokoj s kuchyňským koutem. Prostor na spaní a pracovna ve vestavěném patře. Byt je krásně prosvětlený a je v domě, který je kompletně opraven a ve velmi dobrém stavu. Další nespornou výhodou je jeho umístění v centru Karlína v docházkové vzdálenosti do centra Prahy a za rohem od Karlínského náměstí.
Investiční příležitost:
•Vhodné pro vlastní bydlení i jako investice: V této lokalitě je vysoká poptávka po pronájmech
•Atraktivní nájmy: Potenciál pro stabilní a zajímavý příjem z pronájmu
Financování:
•Byt je v družstevním vlastnictví: Financování hypotékou je možné pouze se zástavou jiné vaší nemovitosti. Převod do vlastnictví se neplánuje.
•Bezproblémový převod: Vše připraveno k rychlému a hladkému průběhu převodu družstevních práv a vašemu nastěhování.
Neváhejte a domluvte si prohlídku ještě dnes!
| Cena: | 7 990 000 Kč |
| Poznámka: | cena je kompletní a obsahuje všechny poplatky |
| Dispozice/podlahová plocha: | 1+kk/41 m² |
| Číslo zakázky: | REALITYMIX-N00470 |
Podrobné informace
- Dispozice bytu: 1+kk
- Číslo podlaží v domě: 4
- Počet podlaží objektu: 4
- Užitná plocha: 41 m²
- Celková podlahová plocha: 41 m²
- Druh objektu: cihlová
- Stav objektu: velmi dobrý
- Vlastnictví: družstevní
- Umístění objektu: centrum obce
- Doprava: silnice, MHD, autobus
- Voda: Voda - dálkový vodovod
- Odpad: Kanalizace
- Energetická náročnost budovy: G - Mimořádně nehospodárná
- Energetický ukazatel podle vyhlášky: č. 264/2020 Sb.
Právní rádce
-
Detail
Realitní makléř má své nezastupitelné místo v realitním obchodu. Realitním makléřem nemyslím nevzdělané jelito, které absolvovalo dvoudenní školení a ví, jak se nahraje inzerát na inzertní portál.
Realitním makléřem, který se Vám skutečně vyplatí, je zkušený profesionál, který je schopen Vám dobře poradit jak prodat za co nejvíc a s nejmenším rizikem a hlavně je Vás schopen obratně provést celým realitním obchodem.
-
Detail
Důvodem je odlišný přístup makléře k zakázce. Pokud je kupní cena inzerována včetně provize, tak realitního makléře platí prodávající. Pokud je kupní cena inzerována bez provize, tak provizi platí kupující.
Prodáváte nemovitost a potřebujete zjistit její reálnou hodnotu?
Zjistit reálnou cenuVývoj průměrné ceny za m2 v lokalitě Praha 8
Ceny uvedené v grafu, jsou průměrnými cenami ze sledované lokality a nezohledňují stav, stáří ani vybavení nemovitosti.
Prodáváte nemovitost a potřebujete zjistit její reálnou hodnotu?
Zjistit reálnou cenuMapa
* Umístění na mapě je na základě GPS informací dodaných realitní kanceláří.
* Pozice na mapě je pouze orientační.