Prodej bytu, 3+1, 80 m²
Vybíralova, Praha 14, Černý Most
9 470 000 KčProdej bytu, 3+1, 80 m²
Vybíralova, Praha 14, Černý Most
Ideální byt pro rodinu - 3+1 s balkonem v srdci Černého Mostu!
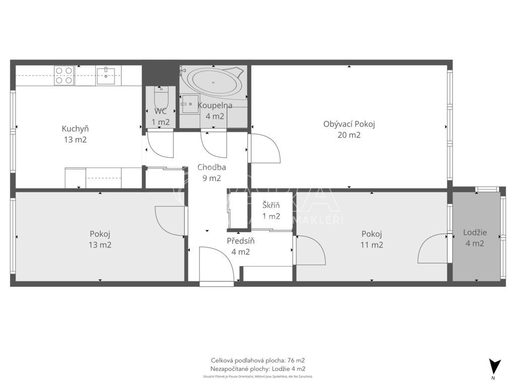
Samotný byt se nachází v 1. patře zatepleného panelového domu s výtahem a skvěle fungujícím SVJ. Dispozice bytu je velmi praktická – z chodby se dostanete do všech místností. Obývací pokoj a kuchyně jsou separátní, obě ložnice jsou dostatečně prostorné a neprůchozí. Koupelna disponuje rohovou vanou, prostorem pro pračku, toaleta je oddělená. Jednotka je celkově ve velmi dobrém a udržovaném stavu. Navíc máte k dispozici i balkon, kde si v budoucnu můžete vychutnávat příjemné chvilky na vzduchu. K bytu náleží komora v chodbě na patře a dále sklepní kóje v suterénu domu.
Díky své dispozici a umístění páteřních vedení vody a odpadu v domě lze byt upravit i na dispozici 4+kk, získáte tak potřebné pokoje.
V bytě je rozvod elektřiny v mědi, páteřní rozvody odpadů jsou plastové, panelový dům je zateplen, plastová okna. Velkou výhodou jsou dva výtahy, nákladní i osobní - jezdí i do sklepa.
Lokalita má navíc vše, co potřebujete.
Školy a školky – v docházkové vzdálenosti se nachází několik mateřských i základních škol, například ZŠ Vybíralova či další vzdělávací instituce v okolí Černého Mostu. Oblast je vhodná pro rodiny s dětmi díky dobré dostupnosti vzdělávání.
Zdravotní péče – v blízkosti najdete také zdravotní střediska, lékárny a specializované ordinace. Větší zdravotnická zařízení jsou dostupná v širším okolí Prahy 9.
Obchody a služby – jen pár minut od domu se nachází Centrum Černý Most, které nabízí širokou škálu obchodů, restaurací, kaváren i služeb. K dispozici jsou také supermarkety jako Lidl, Albert či Billa - vše v docházkové vzdálenosti.
Doprava – výborná dopravní dostupnost je zajištěna díky blízkosti stanice metra B - Černý Most a několika autobusových linek. Do centra Prahy se dostanete pohodlně během několika desítek minut.
Volný čas a sport – v okolí najdete dětská hřiště, sportoviště i cyklostezky. Nedaleko se nachází také zeleň a parky vhodné pro procházky, běh nebo relaxaci.
Další služby – samozřejmostí je také pošta, bankomaty, restaurace, kavárny a další občanská vybavenost, která Vám zajistí pohodlný každodenní povinnosti i radosti.
Přijďte se přesvědčit osobně – rád vás bytem provedu!
| Cena: | 9 470 000 Kč |
| Poznámka: | Fond oprav činí 2700,-Kč/měs. |
| Dispozice/podlahová plocha: | 3+1/80 m² |
| Číslo zakázky: | REALITYMIX-19353 |
Podrobné informace
- Dispozice bytu: 3+1
- Číslo podlaží v domě: 2
- Počet podlaží objektu: 1
- Užitná plocha: 77 m²
- Celková podlahová plocha: 80 m²
- Druh objektu: panelová
- Stav objektu: velmi dobrý
- Vlastnictví: osobní
- Balkon: 3 m²
- Sklep: 4 m²
- Vybaveno: ano
- Umístění objektu: klidná část obce
- Doprava: silnice, MHD
- Elektřina: Elektro - 230 V
- Voda: Voda - dálkový vodovod
- Telekomunikace: Telefon, Internet
- Odpad: Kanalizace
- Energetická náročnost budovy: D - Méně úsporná
- Energetický ukazatel podle vyhlášky: č. 264/2020 Sb.
Právní rádce
-
Detail
V tomto článku shrneme nejdůležitější věci, které byste si měli promyslet, pokud se chystáte prodat svou nemovitost a chcete, abyste s kupujícím nemusel následně řešit vzniklé problémy.
Jako prodávající nesete rizika spojená nejen se samotným obchodem, ale i se stavem nemovitosti v době prodeje a pro minimalizaci rizik, je dobré se zamyslet nad uvedenými oblastmi.
-
Detail
Realitní makléř má své nezastupitelné místo v realitním obchodu. Realitním makléřem nemyslím nevzdělané jelito, které absolvovalo dvoudenní školení a ví, jak se nahraje inzerát na inzertní portál.
Realitním makléřem, který se Vám skutečně vyplatí, je zkušený profesionál, který je schopen Vám dobře poradit jak prodat za co nejvíc a s nejmenším rizikem a hlavně je Vás schopen obratně provést celým realitním obchodem.