Prodej bytu, 3+kk, 110 m²
Přípotoční, Praha 10, Vršovice
12 590 000 KčProdej bytu, 3+kk, 110 m²
Přípotoční, Praha 10, Vršovice
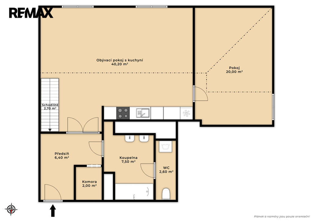
Mezonet 110 m² ve Vršovicích
Byt se nachází v 7. a 8. nadzemním podlaží domu s výtahem a je řešen jako mezonet, což mu dává vzdušnost a přirozené rozdělení jednotlivých zón.
Spodní podlaží tvoří otevřený obytný prostor s kuchyní, který plynule navazuje na jídelní i obývací část. Díky velkým oknům je celý prostor krásně prosvětlený a působí velmi příjemně.
Součástí tohoto podlaží je také samostatný pokoj, koupelna a WC. Obojí prošlo kompletní rekonstrukcí na konci roku 2025, stejně jako vstupní chodba.
Horní patro nabízí vzdušnou ložnici se střešními okny, která dodává bytu charakter a pocit většího prostoru, než jaký bývá u klasických dispozic.
Klimatizace zajišťuje komfort v letních měsících. Vytápění a ohřev vody řeší vlastní plynový kotel. Měsíční náklady na správu domu činí přibližně 4 500 Kč, elektřina a plyn se hradí dle spotřeby.
Vršovice patří mezi dlouhodobě velmi vyhledávané pražské lokality. V docházkové vzdálenosti najdete park Grébovka, kavárny, restaurace i kompletní občanskou vybavenost. Vlaková stanice Praha–Vršovice i tramvajová zastávka Bohemians jsou jen pár minut od domu.
Pokud hledáte něco jiného než klasické 3+kk a vzdušnost mezonetu vás láká, tohle je adresa, která stojí za prohlídku.
Pokud vás byt zaujal, napište mi a ráda vám ho osobně ukážu. Prodávající si vyhrazuje právo vybrat kupujícího na základě jím zvolených kritérií.
| Cena: | 12 590 000 Kč |
| Datum k nastěhování: | 01.04.2026 |
| Dispozice/podlahová plocha: | 3+kk/110 m² |
| Číslo zakázky: | REALITYMIX-435157 |
Podrobné informace
- Dispozice bytu: 3+kk
- Číslo podlaží v domě: 7
- Počet podlaží objektu: 8
- Užitná plocha: 110 m²
- Celková podlahová plocha: 110 m²
- Druh objektu: smíšená
- Stav objektu: velmi dobrý
- Vlastnictví: osobní
- Vybaveno: ano
- Umístění objektu: centrum obce
- Doprava: vlak, silnice, MHD, autobus
- Elektřina: Elektro - 230 V
- Voda: Voda - dálkový vodovod
- Telekomunikace: Internet
- Plyn: Plynovod
- Odpad: Kanalizace
- Energetická náročnost budovy: D - Méně úsporná
- Ukazatel energetické náročnosti budovy: 112 kWh/m²
- Energetický ukazatel podle vyhlášky: č. 78/2013 Sb.
Právní rádce
-
Detail
V tomto článku shrneme nejdůležitější věci, které byste si měli promyslet, pokud se chystáte prodat svou nemovitost a chcete, abyste s kupujícím nemusel následně řešit vzniklé problémy.
Jako prodávající nesete rizika spojená nejen se samotným obchodem, ale i se stavem nemovitosti v době prodeje a pro minimalizaci rizik, je dobré se zamyslet nad uvedenými oblastmi.
-
Detail
Realitní makléř má své nezastupitelné místo v realitním obchodu. Realitním makléřem nemyslím nevzdělané jelito, které absolvovalo dvoudenní školení a ví, jak se nahraje inzerát na inzertní portál.
Realitním makléřem, který se Vám skutečně vyplatí, je zkušený profesionál, který je schopen Vám dobře poradit jak prodat za co nejvíc a s nejmenším rizikem a hlavně je Vás schopen obratně provést celým realitním obchodem.