Prodej bytu, 2+1, 71 m²
Sečská, Praha 10, Strašnice
9 800 000 KčProdej bytu, 2+1, 71 m²
Sečská, Praha 10, Strašnice
Prodej byt 2+1, 69㎡
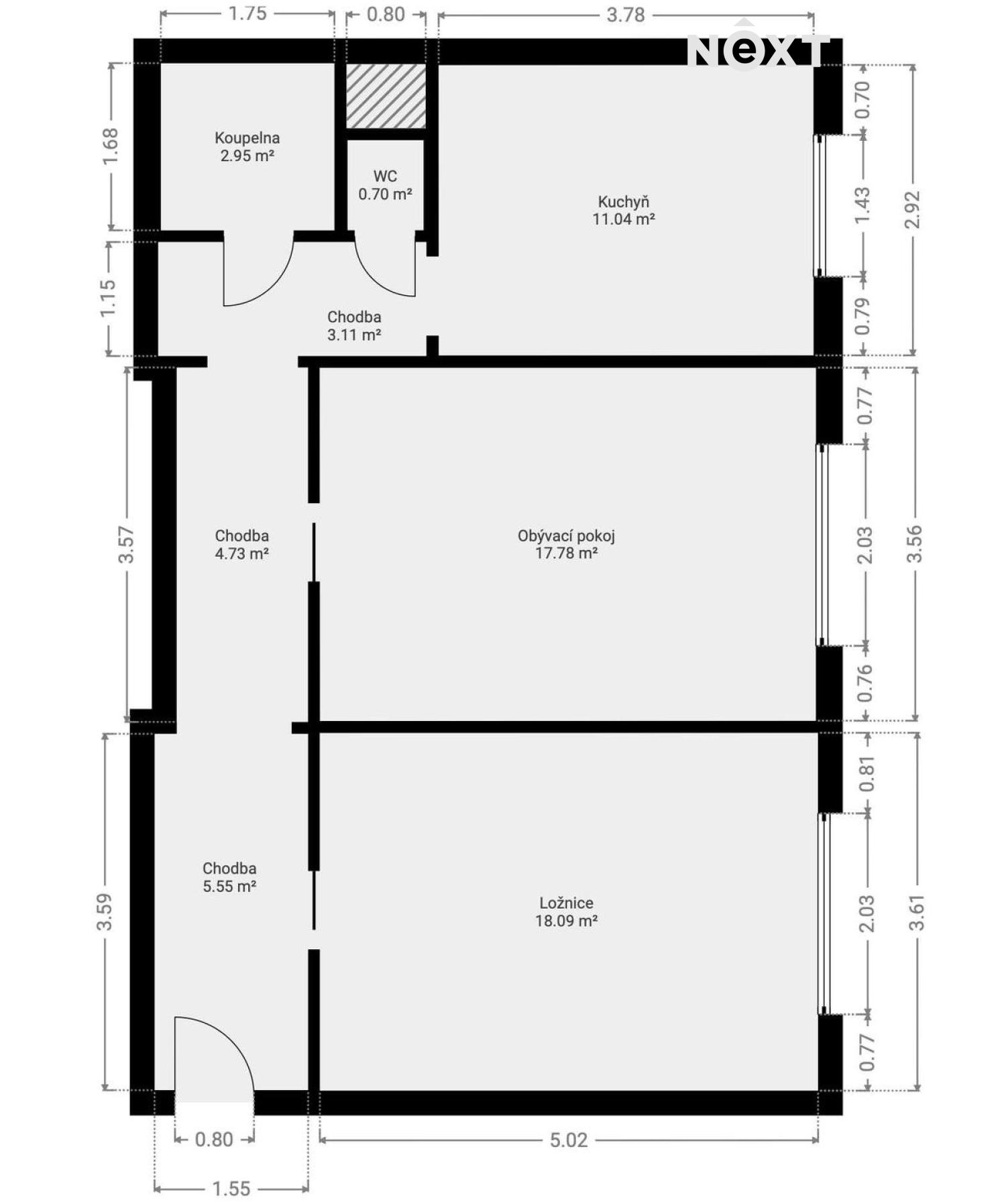
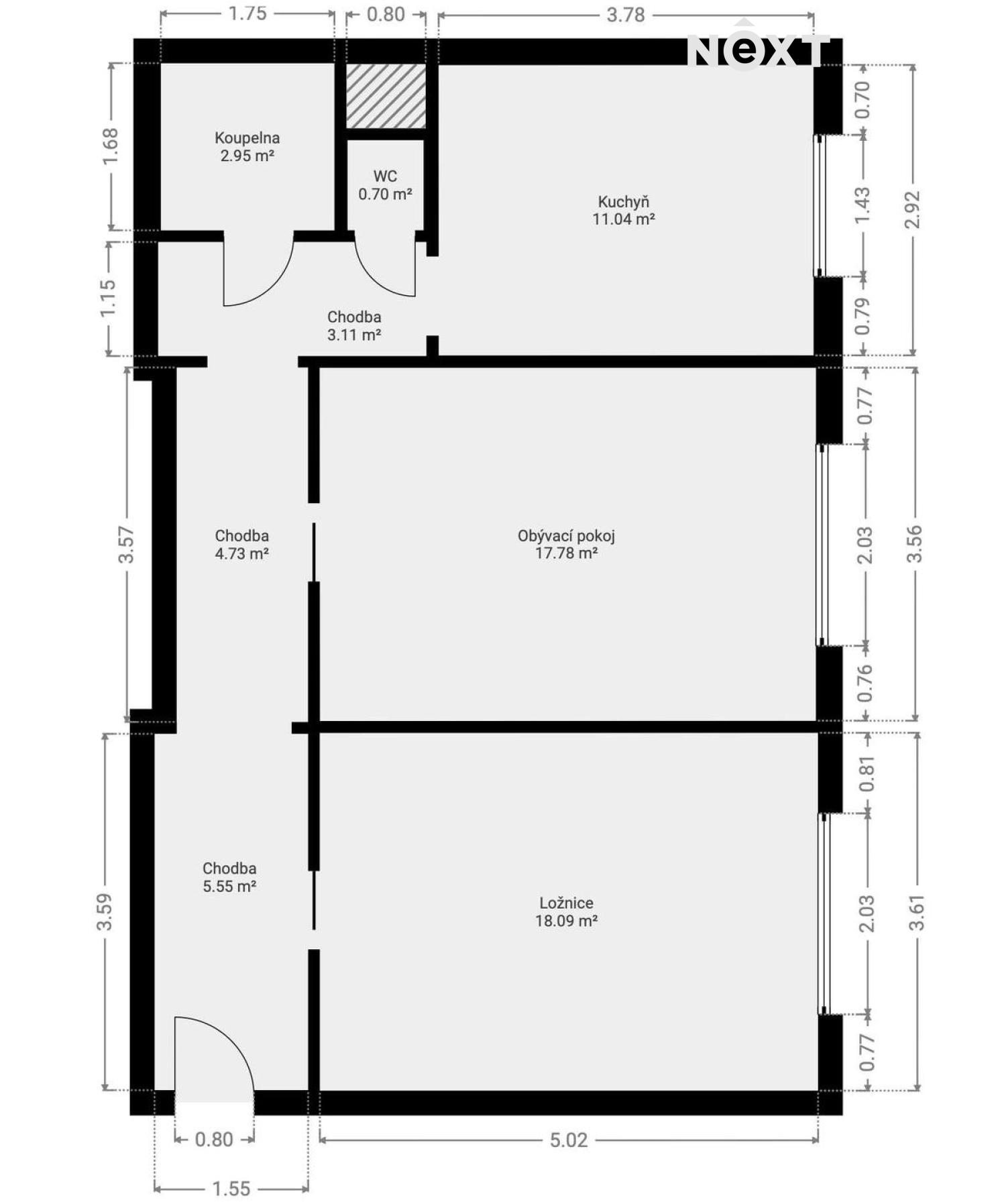
Nabízíme ke koupi prostorný byt 2+1 o celkové výměře 69,4 m², včetně příslušenství, v atraktivní části Prahy 10. Byt se nachází ve 4. patře panelového domu s celkově 20 byty, což zaručuje klid, přehlednost a dobře fungující SVJ.
Dům je po revitalizaci — zateplení, nová fasáda, nová střecha, plastová okna, stoupačky, vstupní dveře, poštovní schránky.
Byt prošel rekonstrukcí před 2 lety — v rámci ní byly kompletně řešeny elektrické rozvody, voda, odpady, omítky, dlažby a obklady, položené byly nové parkety, vyměněny dveře. Jádro je zděné.
Navíc sklepní kóje 2 m², a společné prostory domu: kolárna a kočárkárna — prostě když se vám nechce šlapat s kolem do bytu.
Dispozice bytu a vybavení:
• oddělené WC a koupelna, v koupelně vana + sprcha + umyvadlo,
• v kuchyni zůstávají vestavěné spotřebiče — lednice s mrazákem, trouba, plynový sporák, myčka, digestoř
• v chodbě vestavěné skříně,
• topení ústřední i ohřev vody,
• media - voda, elektřina, plyn,
Byt je připraven k okamžitému nastěhování nebo k pronájmu — ideální jak pro vlastní bydlení, tak jako investiční příležitost.
Dispozice je příjemně logická, žádné náhodné výklenky ani místnosti, které by si hrály na únikovou hru. Kuchyň je připravená, aby vás podpořila v pokusech o michelinský zážitek — nebo aspoň rychlé těstoviny. Obývák má ideální velikost na to, aby se tu odehrával život i večerní Netflixové maratony.
Sečská je ulice, kde se žije dobře — dost klidná na odpočinek, dost blízko centra na pohodlný život.
• Školy a školky:
o Základní škola Gutova
o Další základní školy v dosahu: ZŠ Olešská nebo ZŠ V Rybníčkách
o Pro menší děti: v pěší vzdálenosti je GENIUS Kindergarten Strašnice — soukromá moderní školka v angličtině.
Takže pokud hledáš lokalitu pro rodinu s dětmi — bingo.
• Obchody, služby, dostupnost všeho potřebného: Strašnice jako městská část nabízí běžné i nadstandardní služby — obchody, obchůdky, malé podniky, ordinace, drogerie, lékárny, drobné trhy a prostě vše.
• Volnočasové vyžití a relax: Hned za rohem je areál Gutovka — sport, zábava, příroda a relax v jednom: dětská hřiště, skatepark, in-line dráha, kluziště, minigolf. Součástí areálu je také příjemná Restaurace Gutovka.
Dopravní dostupnost
• Nejbližší stanice metra je Strašnická (linka A)
• Díky tramvajím a autobusům je oblast dobře propojená, a pokud někdo jede autem nebo potřebuje občas přibrzdit — parkování a dostupnost nejsou problém.
Takže jste v klidu, i když si chcete odskočit do centra, do divadla, do práce, nebo pro kolu. Je to bydlení v klidné části Prahy, a přitom s rychlým přístupem ke sportu, zábavě a přírodě.
Pouze u nás vám zajistíme moderní financování až na 30 let, bez ohledu na věk a prokazování příjmů, či nutnosti předkládat daňové přiznání (u podnikatelů). Zeptejte se nás a bydlete chytře! Pro komunikaci uvádějte evidenční číslo zakázky N115076.
| Cena: | 9 800 000 Kč |
| Dispozice/podlahová plocha: | 2+1/71 m² |
| Číslo zakázky: | REALITYMIX-115076 |
Podrobné informace
- Dispozice bytu: 2+1
- Číslo podlaží v domě: 5
- Počet podlaží objektu: 5
- Užitná plocha: 69 m²
- Celková podlahová plocha: 71 m²
- Druh objektu: panelová
- Stav objektu: po rekonstrukci
- Vlastnictví: osobní
- Sklep: 2 m²
- Umístění objektu: klidná část obce
- Energetická náročnost budovy: C - Úsporná
- Energetický ukazatel podle vyhlášky: č. 78/2013 Sb.
Právní rádce
-
Detail
V tomto článku shrneme nejdůležitější věci, které byste si měli promyslet, pokud se chystáte prodat svou nemovitost a chcete, abyste s kupujícím nemusel následně řešit vzniklé problémy.
Jako prodávající nesete rizika spojená nejen se samotným obchodem, ale i se stavem nemovitosti v době prodeje a pro minimalizaci rizik, je dobré se zamyslet nad uvedenými oblastmi.
-
Detail
Realitní makléř má své nezastupitelné místo v realitním obchodu. Realitním makléřem nemyslím nevzdělané jelito, které absolvovalo dvoudenní školení a ví, jak se nahraje inzerát na inzertní portál.
Realitním makléřem, který se Vám skutečně vyplatí, je zkušený profesionál, který je schopen Vám dobře poradit jak prodat za co nejvíc a s nejmenším rizikem a hlavně je Vás schopen obratně provést celým realitním obchodem.