Prodej bytu, 3+kk, 60 m²
Rostislavova, Praha 4, Nusle
8 990 000 KčProdej bytu, 3+kk, 60 m²
Rostislavova, Praha 4, Nusle
Prodej, byt 3+kk, 60 m2, Praha 4 - Nusle
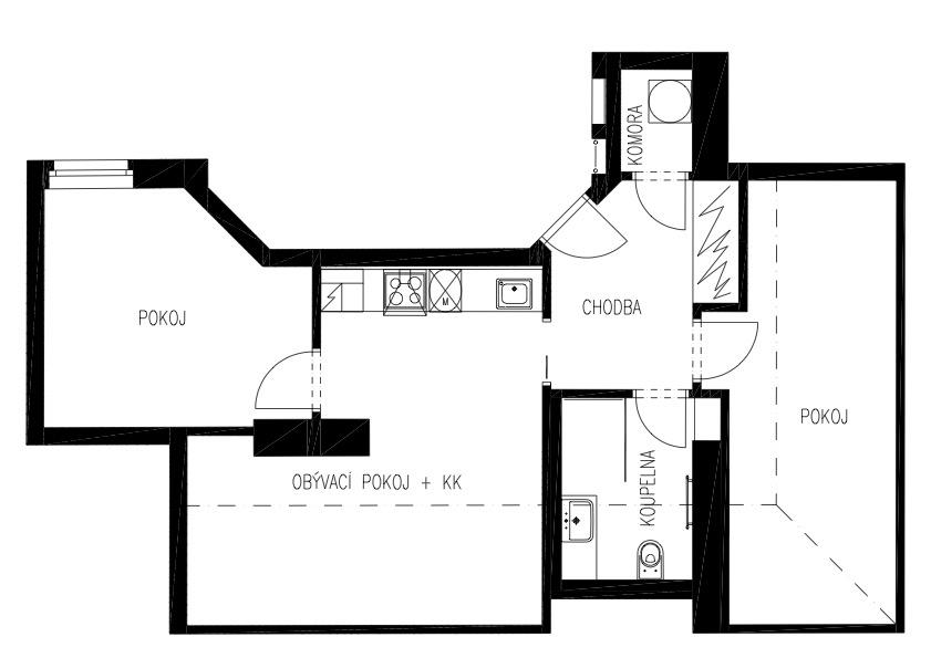
Dispozice a vybavení:
Obývací pokoj s kuchyňským koutem + dva samostatné pokoje.
Koupelna se sprchovým koutem, topným žebříkem a obkladem po celé výšce stěn, WC.
Vlastní plynový kotel v technické místnosti (vytápění radiátory, v koupelně topný žebřík) + pračka.
Podlahy: velkoformátová dlažba v koupelně, v ostatních místnostech PVC lamely v dekoru dřeva.
Chlazení venkovní jednotka na střeše + vnitřní jednotka v obývacím pokoji, ochladí spolehlivě celý byt.
K dispozici je i sklep v suterénu domu.
Náklady na bydlení:
Měsíční zálohy na služby: 2.262 Kč
elektřina a plyn dle vlastní spotřeby
Dům a okolí:
Dům kompletně zrekonstruován (výtah, okna, rozvody, vymalované společné prostory).
Sklep se nachází v suterénu domu, v domě jsou společné úložné prostory.
Lokalita, která má šmrnc:
4 minuty pěšky na Náměstí Bratří Synků (tram, bus, obchody, kavárny)
1 zastávka tramvají na metro C Vyšehrad
Grébovka, Nuselské schody i Folimanka v docházce.
Byt je v současné době užíván, více fotek a informací vám rád poskytnu na vyžádání.
| Cena: | 8 990 000 Kč |
| Poznámka: | Včetně provize a právního servisu, měsíční zálohy 2.262,- Kč včetně fondu oprav |
| Dispozice/podlahová plocha: | 3+kk/60 m² |
| Číslo zakázky: | REALITYMIX-10928 |
Podrobné informace
- Dispozice bytu: 3+kk
- Číslo podlaží v domě: 6
- Počet podlaží objektu: 6
- Užitná plocha: 60 m²
- Celková podlahová plocha: 60 m²
- Druh objektu: cihlová
- Stav objektu: velmi dobrý
- Vlastnictví: osobní
- Sklep: 4 m²
- Vybaveno: ano
- Umístění objektu: centrum obce
- Doprava: silnice, MHD
- Elektřina: Elektro - 230 V
- Plyn: Plynovod
- Topení: Ústřední - plynové
- Odpad: Kanalizace
Právní rádce
-
Detail
V tomto článku shrneme nejdůležitější věci, které byste si měli promyslet, pokud se chystáte prodat svou nemovitost a chcete, abyste s kupujícím nemusel následně řešit vzniklé problémy.
Jako prodávající nesete rizika spojená nejen se samotným obchodem, ale i se stavem nemovitosti v době prodeje a pro minimalizaci rizik, je dobré se zamyslet nad uvedenými oblastmi.
-
Detail
Realitní makléř má své nezastupitelné místo v realitním obchodu. Realitním makléřem nemyslím nevzdělané jelito, které absolvovalo dvoudenní školení a ví, jak se nahraje inzerát na inzertní portál.
Realitním makléřem, který se Vám skutečně vyplatí, je zkušený profesionál, který je schopen Vám dobře poradit jak prodat za co nejvíc a s nejmenším rizikem a hlavně je Vás schopen obratně provést celým realitním obchodem.