Hospodářské noviny
Hledat Přihlásit seMůj účet Předplatné
Přihlásit seMůj účet Předplatné
  • Home
  • Byznys
  • Zprávy
  • Názory
  • Tech
  • Reality
  • Investice
  • Podcasty
  • Hry
  • PročNe
  • Archiv
  • Další
  • Jak nastartovat sever
  • Speciály HN
  • Víkend
  • Magazín Stavba
  • Knihy HN
  • Eventy
  • Green Deal
  • Inovátoři roku
  • Top ženy
  • Nej banka / Nej pojišťovna
  • Předplatné
  • Redakce
  • Inzerce
  • Kontakty
  • Newslettery
  • Ekonom
  • Logistika
  • Právní rádce
  • Hry
  • Economia
  • BeNative
  • Nastavení účtu
  • Moje předplatné
  • Odhlásit se

Reality

  • Reality
  • Vyhledávání nemovitostí
  • Top realitní fondy
  • Magazín Stavba
Prodej bytu, 1+kk, 40 m²

Prodej bytu, 1+kk, 40 m²

Hnězdenská, Praha 8, Troja

Rezervováno
  • RealityMIX
  • Byty
  • Prodej
  • Praha
  • Praha 8
0 z 5 (0 hodnocení)

Prodej bytu, 1+kk, 40 m²

Hnězdenská, Praha 8, Troja

Rezervováno
C
Vyhovující
Výpis
Předchozí inzerát Další inzerát
1771774942-vqfiehuisn-img-2409-i
1771774956-kognghyywb-img-2406-i
1771018769-qdtlemlqut-29215

Prodej bytu 1+kk 40 m²

Nabízím k prodeji velký a světlý byt 1+kk s balkónem, sklepem a nízkými náklady v lokalitě Praha 8 Troja. Okna jsou na jih do klidného vnitrobloku. Dům je s nonstop ostrahou. Byt je v osobním vlastnictví a ihned k dispozici k nastěhování.
Prohlídky lze uskutečnit kdykoli během týdne. Při rychlém jednání možná sleva.

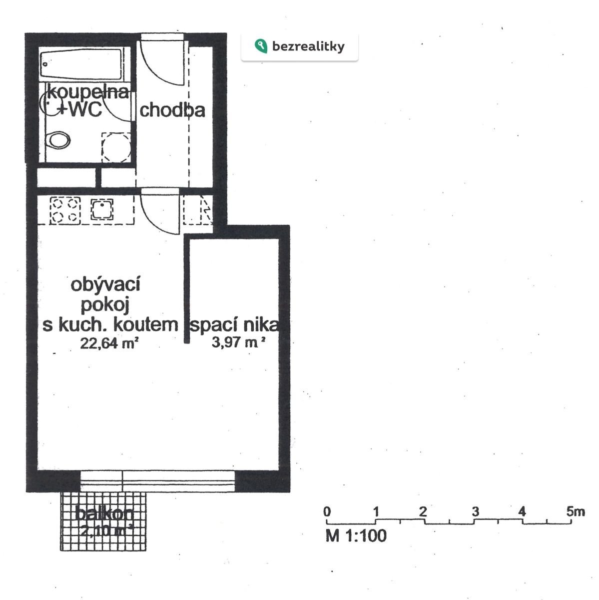
Interiér (35,9 m²): Velkorysý obývací pokoj s kuchyňským linkou se spotřebiči a s chytře řešenou spací nikou, která poskytuje soukromí oddělené od denní části. Velká koupelna a předsíň s úložnými prostory.
Balkon (2,2 m²).
Zděný sklep (2,6 m²) s bezpečnostními dveřmi.
Měsíční poplatky jen 2755,- (včetně studené a teplé vody, topení, ostrahy a fondu oprav) + elektřina + internet (optika od 350,-).
V domě jsou dva výtahy (jeden je větší, což oceníte při stěhování i velkých nákupech) a bezbariérový přístup.

Lokalita:
Zastávka autobusu je jen 150 m od domu (7 min na metro C Kobylisy).
Parkování volné u domu (nejsou zde zóny) nebo parkovací stání v suterénu budovy k pronájmu.
Je možná sousedská permanentka do areálu Botanické zahrady za manipulační poplatek. V okolí také Čimický háj a mnoho další zeleně, včetně Trojské kotliny a pražské zoo.
Vybavenost: OC Krakov, poliklinika, pošta a další obchody a restaurace. Tato nemovitost je určena výhradně přímým zájemcům o koupi. Na inzerát můžete také reagovat přímo na webu Bezrealitky.
Cena: Rezervováno  
Dispozice/podlahová plocha: 1+kk/40 m²
Číslo zakázky: REALITYMIX-990916

Podrobné informace

  • Dispozice bytu: 1+kk
  • Číslo podlaží v domě: 3
  • Počet podlaží objektu: 16
  • Celková podlahová plocha: 40 m²
  • Druh objektu: skeletová
  • Stav objektu: velmi dobrý
  • Vlastnictví: osobní
  • Balkon: 2 m²
  • Sklep: 2 m²
  • Vybaveno: ano
  • Umístění objektu: sídliště
  • Energetická náročnost budovy: C - Vyhovující

Sdílej na:

Facebook     Twitter

Tisk nabídky (pdf)

  • (A4)
  • (A4)
  • (A4)
  • (A4)
  • (A5)

Poslat odkaz:

Právní rádce

Právní rádce
  • V tomto článku shrneme nejdůležitější věci, které byste si měli promyslet, pokud se chystáte prodat svou nemovitost a chcete, abyste s kupujícím nemusel následně řešit vzniklé problémy.

    Jako prodávající nesete rizika spojená nejen se samotným obchodem, ale i se stavem nemovitosti v době prodeje a pro minimalizaci rizik, je dobré se zamyslet nad uvedenými oblastmi.

    Detail
  • Realitní makléř má své nezastupitelné místo v realitním obchodu. Realitním makléřem nemyslím nevzdělané jelito, které absolvovalo dvoudenní školení a ví, jak se nahraje inzerát na inzertní portál.

    Realitním makléřem, který se Vám skutečně vyplatí, je zkušený profesionál, který je schopen Vám dobře poradit jak prodat za co nejvíc a s nejmenším rizikem a hlavně je Vás schopen obratně provést celým realitním obchodem.

    Detail
  • Detail
Chci vědět víc
Právní rádce

Prodáváte nemovitost a potřebujete zjistit její reálnou hodnotu?

Zjistit reálnou cenu

Vývoj průměrné ceny za m2 v lokalitě Praha 8

Ceny uvedené v grafu, jsou průměrnými cenami ze sledované lokality a nezohledňují stav, stáří ani vybavení nemovitosti.
2Q 2022 128767
2Q 2022
Průměrná nabídková cena 128 767 Kč/m²

Aktuální nabídka: 159 750 Kč/m²
3Q 2022 123743
3Q 2022
Průměrná nabídková cena 123 743 Kč/m²

Aktuální nabídka: 159 750 Kč/m²
4Q 2022 121620
4Q 2022
Průměrná nabídková cena 121 620 Kč/m²

Aktuální nabídka: 159 750 Kč/m²
1Q 2023 118707
1Q 2023
Průměrná nabídková cena 118 707 Kč/m²

Aktuální nabídka: 159 750 Kč/m²
2Q 2023 117516
2Q 2023
Průměrná nabídková cena 117 516 Kč/m²

Aktuální nabídka: 159 750 Kč/m²
3Q 2023 116391
3Q 2023
Průměrná nabídková cena 116 391 Kč/m²

Aktuální nabídka: 159 750 Kč/m²
4Q 2023 122333
4Q 2023
Průměrná nabídková cena 122 333 Kč/m²

Aktuální nabídka: 159 750 Kč/m²
1Q 2024 121884
1Q 2024
Průměrná nabídková cena 121 884 Kč/m²

Aktuální nabídka: 159 750 Kč/m²
2Q 2024 124788
2Q 2024
Průměrná nabídková cena 124 788 Kč/m²

Aktuální nabídka: 159 750 Kč/m²
3Q 2024 131022
3Q 2024
Průměrná nabídková cena 131 022 Kč/m²

Aktuální nabídka: 159 750 Kč/m²
4Q 2024 134153
4Q 2024
Průměrná nabídková cena 134 153 Kč/m²

Aktuální nabídka: 159 750 Kč/m²
1Q 2025 140872
1Q 2025
Průměrná nabídková cena 140 872 Kč/m²

Aktuální nabídka: 159 750 Kč/m²
2Q 2025 143523
2Q 2025
Průměrná nabídková cena 143 523 Kč/m²

Aktuální nabídka: 159 750 Kč/m²
3Q 2025 146980
3Q 2025
Průměrná nabídková cena 146 980 Kč/m²

Aktuální nabídka: 159 750 Kč/m²
4Q 2025 151592
4Q 2025
Průměrná nabídková cena 151 592 Kč/m²

Aktuální nabídka: 159 750 Kč/m²
1Q 2026 154492
1Q 2026
Průměrná nabídková cena 154 492 Kč/m²

Aktuální nabídka: 159 750 Kč/m²

Prodáváte nemovitost a potřebujete zjistit její reálnou hodnotu?

Zjistit reálnou cenu

Mapa

* Umístění na mapě je na základě GPS informací dodaných realitní kanceláří.
* Pozice na mapě je pouze orientační.

Souhlas se zpracováním osobních údajů

Uživatel serveru Reality.hn.cz (dále jen „Server“) dostupného na internetové adrese (URL) https://realitymix.hn.cz, který provozuje společnost DALTEN media s.r.o., se sídlem Na Harfě 916/9a, Praha 9, 190 00, IČO: 271 35 306 (dále jen „Správce“) jako provozovateli tohoto Serveru uděluje svůj výslovný souhlas v souladu s ustanovením § 5 zákona č. 101/2000 Sb. O ochraně osobních údajů a o změně některých zákonů, v platném znění (dále jen „zákon o ochraně osobních údajů“), se zpracováním uživatelem poskytnutých osobních údajů a dalších dat.

Uživatel poskytuje Správci osobní údaje v rozsahu: jméno, příjmení, e-mailová adresa, telefonický kontakt a další data, a to z důvodu projeveného zájmu o nemovitost, kde prostřednictvím služby Serveru Správce osloví Uživatel inzerenta uvedeného v detailu nemovitosti - Bezrealitky s.r.o. (IČ 08063168) se zájmem o jeho služby.

Uživatel tyto osobní údaje poskytuje dobrovolně a bere na vědomí, že součástí služeb Správce, které Správce Uživateli poskytuje, je vyhledání všech Uživateli vyhovujících (dle parametrů - cena, typ nemovitosti, lokalita atd.) nemovitostí. Správce za tímto účelem provozuje aplikace Hlídací pes a newsletter. Tyto služby je možné z každého zaslaného emailu odhlásit. Souhlas se zpracováním osobních údajů Uživatel poskytuje Správci na dobu neurčitou s tím, že svůj udělený souhlas může Uživatel kdykoliv na drese správce info@realitymix.cz odvolat. Správce garantuje Uživateli i další práva uvedené v ustanovení §11 a §21 zákoba č. 101/200 Sb. Ve znění pozdějších předpisů. Více informací o zpracování údajů získáte zde (realitymix.cz/zasady-ochrany-osobnich-udaju)

Podobné nemovitosti

Prodej bytu, 1+kk, 44 m² obrázek

Prodej bytu, 1+kk, 44 m²

V Zámcích, Praha 8, Bohnice

6 835 000 Kč
Prodej bytu, 1+kk, 29 m² obrázek

Prodej bytu, 1+kk, 29 m²

Javorová, Praha 8, Kobylisy

5 500 000 Kč
Prodej bytu, 1+kk, 36 m² obrázek

Prodej bytu, 1+kk, 36 m²

V Zámcích, Praha 8, Bohnice

5 800 000 Kč
Prodej bytu, 1+kk, 45 m² obrázek

Prodej bytu, 1+kk, 45 m²

Poznaňská, Praha 8, Bohnice

5 950 000 Kč

Napsat zprávu prodejci

Prodej bytu, 1+kk, 40 m²

Prodej bytu, 1+kk, 40 m²

Hnězdenská, Praha 8, Troja

Rezervováno

Hospodářské noviny

© 1996-2026 Economia, a.s.

Hospodářské noviny (print)   ISSN 0862-9587
Hospodářské noviny (online) ISSN 2787-950X

Certifikováno
jti
Sledujte nás
Stáhněte si aplikaci HN
  • Kontakty
  • Tiráž redakce HN
  • Economia
  • Kariéra v HN
  • Ceník inzerce
  • Ochrana osobních údajů
  • Prohlášení o cookies
  • Nastavení soukromí
  • Všeobecné smluvní podmínky
  • Koupit / darovat předplatné
  • Eventy
  • Newslettery
  • RSS kanály
Autorská práva vykonává vydavatel. Bez písemného svolení vydavatele je zakázáno jakékoli užití částí nebo celku díla, zejména rozmnožování a šíření jakýmkoli způsobem, mechanickým nebo elektronickým, v českém nebo jiném jazyce. Bez souhlasu vydavatele je zakázáno též rozmnožování obsahu pro účely automatizované analýzy textů nebo dat podle ustanovení § 39c autorského zákona.