Hospodářské noviny
Hledat Přihlásit seMůj účet Předplatné
Přihlásit seMůj účet Předplatné
  • Home
  • Byznys
  • Zprávy
  • Názory
  • Tech
  • Reality
  • Investice
  • Podcasty
  • Hry
  • PročNe
  • Archiv
  • Další
  • Jak nastartovat sever
  • Speciály HN
  • Víkend
  • Magazín Stavba
  • Knihy HN
  • Eventy
  • Green Deal
  • Inovátoři roku
  • Top ženy
  • Nej banka / Nej pojišťovna
  • Předplatné
  • Redakce
  • Inzerce
  • Kontakty
  • Newslettery
  • Ekonom
  • Logistika
  • Právní rádce
  • Hry
  • Economia
  • BeNative
  • Nastavení účtu
  • Moje předplatné
  • Odhlásit se

Reality

  • Reality
  • Vyhledávání nemovitostí
  • Top realitní fondy
  • Magazín Stavba
Prodej bytu, 2+kk, 39 m²

Prodej bytu, 2+kk, 39 m²

Šluknovská, Praha 9, Střížkov

7 190 000 Kč
  • RealityMIX
  • Byty
  • Prodej
  • Praha
  • Praha 9
0 z 5 (0 hodnocení)

Prodej bytu, 2+kk, 39 m²

Šluknovská, Praha 9, Střížkov

7 190 000 Kč
G
Mimořádně nehospodárná
Výpis
Předchozí inzerát Další inzerát
1775478133-pzbkciynln-ob-c3-bdvac-c3-ad-pokoj-s-kuchyn-c3-ad-v-byt-c4-9b
1775478132-wmbehtoeix-modr-c3-bd-pokoj-s-d-c5-99ev-c4-9bn-c3-bdm-loftov-c3-bdm-l-c5-af-c5-bekem
1775478130-abttvstmsu-koupelna-s-geometrick-c3-bdmi-detaily

Prodej bytu 2+kk 39 m²

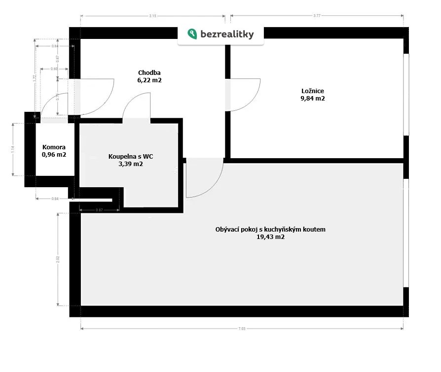
Prodej světlého bytu 2+kk, 39,3 m² – Praha 9, Střížkov, ul. Šluknovská

Nabízíme k prodeji velice světlý a útulný byt 2+kk v oblíbené a vyhledávané lokalitě Praha 9 – Střížkov, ulice Šluknovská. Byt se nachází ve 3. nadzemním podlaží ze 7 v panelovém domě, který prošel kompletní revitalizací (zateplení, nová fasáda, plastová okna, moderní výtah, bezbariérový přístup včetně rampy a renovované společné prostory).

Byt je v osobním vlastnictví a disponuje podlahovou plochou 39,30 m². K bytu náleží praktická komora na patře o velikosti 0,96 m². Na patře je dále k dispozici společná lodžie sdílená pouze se dvěma dalšími byty.

Velkou předností bytu je jeho jižní orientace do klidné zeleně, která zajišťuje ticho a příjemnou atmosféru pro bydlení. Byt je vybaven kuchyňskou linkou, mikrovlnnou troubou, lednicí, pračkou a kombinovaným sporákem. Interiér doplňují plovoucí podlahy, dlažba v chodbě, vestavěná zrcadlová skříň a bezpečnostní vstupní dveře.

Praktickým prvkem je také dřevěné patro na spaní. Koupelna je zděná s vanou. Vytápění je řešeno dálkovým ústředním topením.

Lokalita nabízí kompletní občanskou vybavenost – v bezprostřední blízkosti naleznete obchody, služby, restaurace, dětské hřiště, mateřskou i základní školu, polikliniku či sportovní centrum. Výborná dopravní dostupnost: autobusová zastávka cca 4 minuty chůze, stanice metra cca 7 minut.

Byt byl dlouhodobě pronajímán, fotografie jsou pořízeny před zahájením pronájmu.

K nastěhování od 15. 5. 2026. Prohlídky možné ihned.

Přímý majitel – neplatíte provizi!

REALITNÍ KANCELÁŘE NEVOLAT, PROVIZI NEPLATÍME! Tato nemovitost je určena výhradně přímým zájemcům o koupi. Na inzerát můžete také reagovat přímo na webu Bezrealitky.
Cena: 7 190 000 Kč  
Dispozice/podlahová plocha: 2+kk/39 m²
Číslo zakázky: REALITYMIX-1009336

Podrobné informace

  • Dispozice bytu: 2+kk
  • Číslo podlaží v domě: 3
  • Počet podlaží objektu: 7
  • Celková podlahová plocha: 39 m²
  • Druh objektu: panelová
  • Stav objektu: velmi dobrý
  • Vlastnictví: osobní
  • Vybaveno: ano
  • Umístění objektu: klidná část obce
  • Energetická náročnost budovy: G - Mimořádně nehospodárná

Sdílej na:

Facebook     Twitter

Tisk nabídky (pdf)

  • (A4)
  • (A4)
  • (A4)
  • (A4)
  • (A5)

Poslat odkaz:

Právní rádce

Právní rádce
  • V tomto článku shrneme nejdůležitější věci, které byste si měli promyslet, pokud se chystáte prodat svou nemovitost a chcete, abyste s kupujícím nemusel následně řešit vzniklé problémy.

    Jako prodávající nesete rizika spojená nejen se samotným obchodem, ale i se stavem nemovitosti v době prodeje a pro minimalizaci rizik, je dobré se zamyslet nad uvedenými oblastmi.

    Detail
  • Realitní makléř má své nezastupitelné místo v realitním obchodu. Realitním makléřem nemyslím nevzdělané jelito, které absolvovalo dvoudenní školení a ví, jak se nahraje inzerát na inzertní portál.

    Realitním makléřem, který se Vám skutečně vyplatí, je zkušený profesionál, který je schopen Vám dobře poradit jak prodat za co nejvíc a s nejmenším rizikem a hlavně je Vás schopen obratně provést celým realitním obchodem.

    Detail
  • Detail
Chci vědět víc
Právní rádce

Prodáváte nemovitost a potřebujete zjistit její reálnou hodnotu?

Zjistit reálnou cenu

Vývoj průměrné ceny za m2 v lokalitě Praha 9

Ceny uvedené v grafu, jsou průměrnými cenami ze sledované lokality a nezohledňují stav, stáří ani vybavení nemovitosti.
2Q 2022 120361
2Q 2022
Průměrná nabídková cena 120 361 Kč/m²

Aktuální nabídka: 184 359 Kč/m²
3Q 2022 119823
3Q 2022
Průměrná nabídková cena 119 823 Kč/m²

Aktuální nabídka: 184 359 Kč/m²
4Q 2022 114089
4Q 2022
Průměrná nabídková cena 114 089 Kč/m²

Aktuální nabídka: 184 359 Kč/m²
1Q 2023 113834
1Q 2023
Průměrná nabídková cena 113 834 Kč/m²

Aktuální nabídka: 184 359 Kč/m²
2Q 2023 112979
2Q 2023
Průměrná nabídková cena 112 979 Kč/m²

Aktuální nabídka: 184 359 Kč/m²
3Q 2023 114489
3Q 2023
Průměrná nabídková cena 114 489 Kč/m²

Aktuální nabídka: 184 359 Kč/m²
4Q 2023 114440
4Q 2023
Průměrná nabídková cena 114 440 Kč/m²

Aktuální nabídka: 184 359 Kč/m²
1Q 2024 119852
1Q 2024
Průměrná nabídková cena 119 852 Kč/m²

Aktuální nabídka: 184 359 Kč/m²
2Q 2024 128327
2Q 2024
Průměrná nabídková cena 128 327 Kč/m²

Aktuální nabídka: 184 359 Kč/m²
3Q 2024 135752
3Q 2024
Průměrná nabídková cena 135 752 Kč/m²

Aktuální nabídka: 184 359 Kč/m²
4Q 2024 133846
4Q 2024
Průměrná nabídková cena 133 846 Kč/m²

Aktuální nabídka: 184 359 Kč/m²
1Q 2025 136438
1Q 2025
Průměrná nabídková cena 136 438 Kč/m²

Aktuální nabídka: 184 359 Kč/m²
2Q 2025 137758
2Q 2025
Průměrná nabídková cena 137 758 Kč/m²

Aktuální nabídka: 184 359 Kč/m²
3Q 2025 141217
3Q 2025
Průměrná nabídková cena 141 217 Kč/m²

Aktuální nabídka: 184 359 Kč/m²
4Q 2025 141145
4Q 2025
Průměrná nabídková cena 141 145 Kč/m²

Aktuální nabídka: 184 359 Kč/m²
1Q 2026 139903
1Q 2026
Průměrná nabídková cena 139 903 Kč/m²

Aktuální nabídka: 184 359 Kč/m²

Prodáváte nemovitost a potřebujete zjistit její reálnou hodnotu?

Zjistit reálnou cenu

Mapa

* Umístění na mapě je na základě GPS informací dodaných realitní kanceláří.
* Pozice na mapě je pouze orientační.

Souhlas se zpracováním osobních údajů

Uživatel serveru Reality.hn.cz (dále jen „Server“) dostupného na internetové adrese (URL) https://realitymix.hn.cz, který provozuje společnost DALTEN media s.r.o., se sídlem Na Harfě 916/9a, Praha 9, 190 00, IČO: 271 35 306 (dále jen „Správce“) jako provozovateli tohoto Serveru uděluje svůj výslovný souhlas v souladu s ustanovením § 5 zákona č. 101/2000 Sb. O ochraně osobních údajů a o změně některých zákonů, v platném znění (dále jen „zákon o ochraně osobních údajů“), se zpracováním uživatelem poskytnutých osobních údajů a dalších dat.

Uživatel poskytuje Správci osobní údaje v rozsahu: jméno, příjmení, e-mailová adresa, telefonický kontakt a další data, a to z důvodu projeveného zájmu o nemovitost, kde prostřednictvím služby Serveru Správce osloví Uživatel inzerenta uvedeného v detailu nemovitosti - Bezrealitky s.r.o. (IČ 08063168) se zájmem o jeho služby.

Uživatel tyto osobní údaje poskytuje dobrovolně a bere na vědomí, že součástí služeb Správce, které Správce Uživateli poskytuje, je vyhledání všech Uživateli vyhovujících (dle parametrů - cena, typ nemovitosti, lokalita atd.) nemovitostí. Správce za tímto účelem provozuje aplikace Hlídací pes a newsletter. Tyto služby je možné z každého zaslaného emailu odhlásit. Souhlas se zpracováním osobních údajů Uživatel poskytuje Správci na dobu neurčitou s tím, že svůj udělený souhlas může Uživatel kdykoliv na drese správce info@realitymix.cz odvolat. Správce garantuje Uživateli i další práva uvedené v ustanovení §11 a §21 zákoba č. 101/200 Sb. Ve znění pozdějších předpisů. Více informací o zpracování údajů získáte zde (realitymix.cz/zasady-ochrany-osobnich-udaju)

Podobné nemovitosti

Prodej bytu, 2+kk, 54 m² obrázek

Prodej bytu, 2+kk, 54 m²

Českobrodská, Praha 9, Hrdlořezy

7 000 000 Kč
Prodej bytu, 2+kk, 47 m² obrázek

Prodej bytu, 2+kk, 47 m²

Pískovcová, Praha 9, Prosek

6 300 000 Kč
Prodej bytu, 2+kk, 50 m² obrázek

Prodej bytu, 2+kk, 50 m²

Čerpadlová, Praha 9, Vysočany

6 600 000 Kč
Prodej bytu, 2+kk, 113 m² obrázek

Prodej bytu, 2+kk, 113 m²

Pod Harfou, Praha 9, Vysočany

6 575 000 Kč

Napsat zprávu prodejci

Prodej bytu, 2+kk, 39 m²

Prodej bytu, 2+kk, 39 m²

Šluknovská, Praha 9, Střížkov

7 190 000 Kč

Hospodářské noviny

© 1996-2026 Economia, a.s.

Hospodářské noviny (print)   ISSN 0862-9587
Hospodářské noviny (online) ISSN 2787-950X

Certifikováno
jti
Sledujte nás
Stáhněte si aplikaci HN
  • Kontakty
  • Tiráž redakce HN
  • Economia
  • Kariéra v HN
  • Ceník inzerce
  • Ochrana osobních údajů
  • Prohlášení o cookies
  • Nastavení soukromí
  • Všeobecné smluvní podmínky
  • Koupit / darovat předplatné
  • Eventy
  • Newslettery
  • RSS kanály
Autorská práva vykonává vydavatel. Bez písemného svolení vydavatele je zakázáno jakékoli užití částí nebo celku díla, zejména rozmnožování a šíření jakýmkoli způsobem, mechanickým nebo elektronickým, v českém nebo jiném jazyce. Bez souhlasu vydavatele je zakázáno též rozmnožování obsahu pro účely automatizované analýzy textů nebo dat podle ustanovení § 39c autorského zákona.