Hospodářské noviny
Hledat Přihlásit seMůj účet Předplatné
Přihlásit seMůj účet Předplatné
  • Home
  • Byznys
  • Zprávy
  • Názory
  • Tech
  • Reality
  • Investice
  • Podcasty
  • Hry
  • PročNe
  • Archiv
  • Další
  • Jak nastartovat sever
  • Speciály HN
  • Víkend
  • Magazín Stavba
  • Knihy HN
  • Eventy
  • Green Deal
  • Inovátoři roku
  • Top ženy
  • Nej banka / Nej pojišťovna
  • Předplatné
  • Redakce
  • Inzerce
  • Kontakty
  • Newslettery
  • Ekonom
  • Logistika
  • Právní rádce
  • Hry
  • Economia
  • BeNative
  • Nastavení účtu
  • Moje předplatné
  • Odhlásit se

Reality

  • Reality
  • Vyhledávání nemovitostí
  • Top realitní fondy
  • Magazín Stavba
Prodej bytu, 2+kk, 50 m²

Prodej bytu, 2+kk, 50 m²

Komunardů, Praha 7, Holešovice

8 240 000 Kč
  • RealityMIX
  • Byty
  • Prodej
  • Praha
  • Praha 7
0 z 5 (0 hodnocení)

Prodej bytu, 2+kk, 50 m²

Komunardů, Praha 7, Holešovice

8 240 000 Kč
G
Mimořádně nehospodárná
Výpis
Předchozí inzerát Další inzerát
1762855754-rgfswnlwen-img-9454
1762855754-eygfcpgeus-img-9453
1762855754-ceddoykiei-img-9455

Prodej bytu 2+kk 50 m²

Vlastnictví - Osobní
Dispozice - 2+kk
Plocha bytu - 49,8 m2
Podlaží - 4.
Sklep - Ano, viz foto
Vytápění - Nové el. akumulační radiátory, wifi ovládání
Teplá voda - El. bojler
Okna - Plastová, izol. Dvojsklo
Elektroměr - 3 fáze, 3x25A
Rozvody el. - Měď, nedávná rekonstrukce
Balkon - Ano, do prostoru mezi domy
Výtah - Ano, do mezipodesty
Přílohy k prohlídce - bezdlužnost SVJ, PENB, prohlášení vlastníka, list vlastnictví, návrh kupní smlouvy, skutečné zaměření bytu s dispoziční studií, zápis ze shromáždění SVJ za rok 2025, aktuální předpis záloh

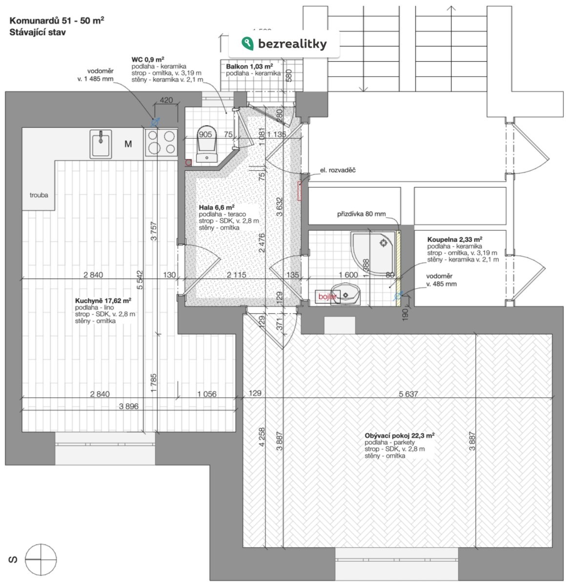
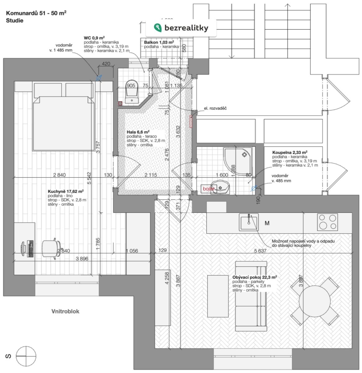
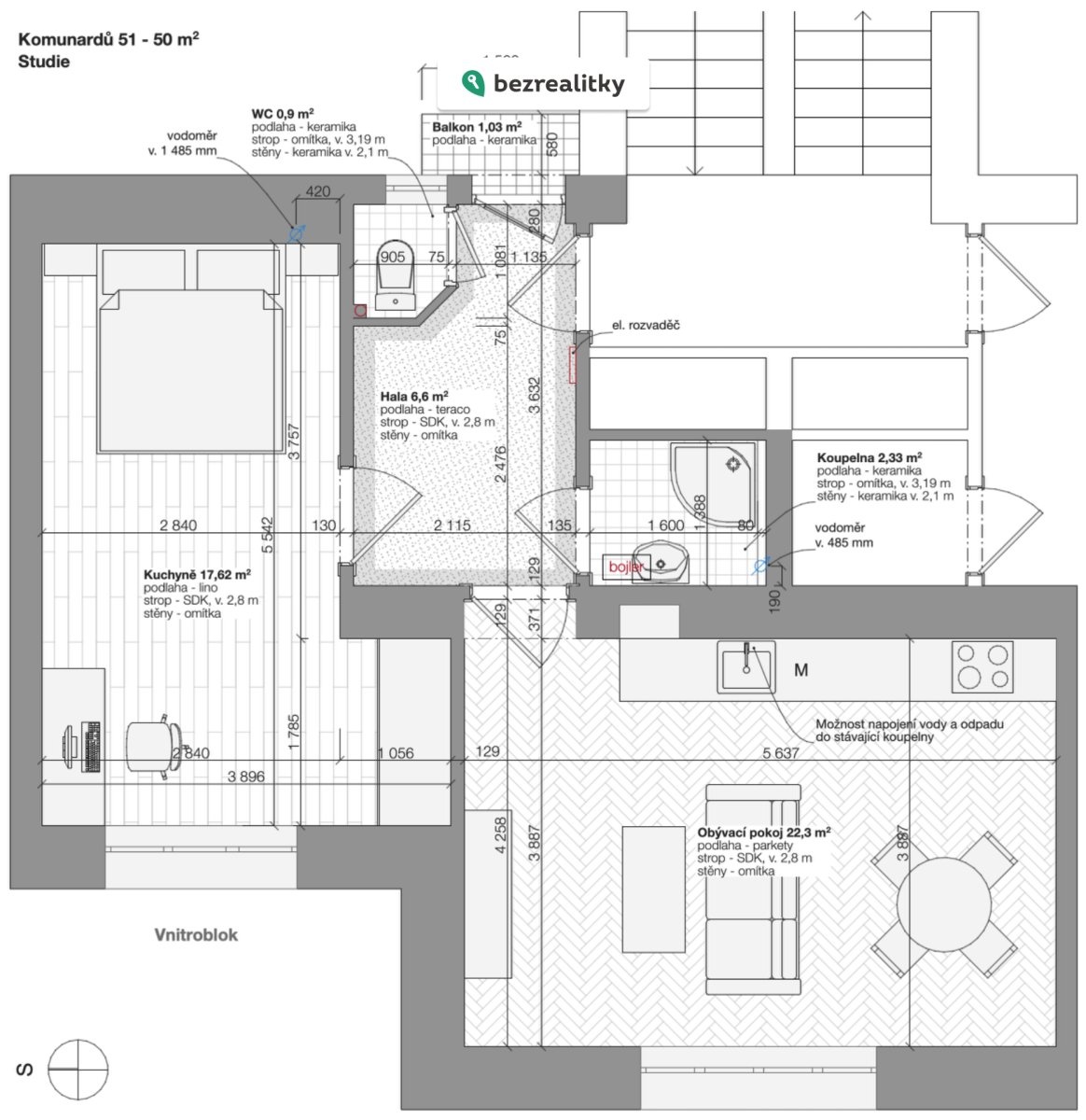
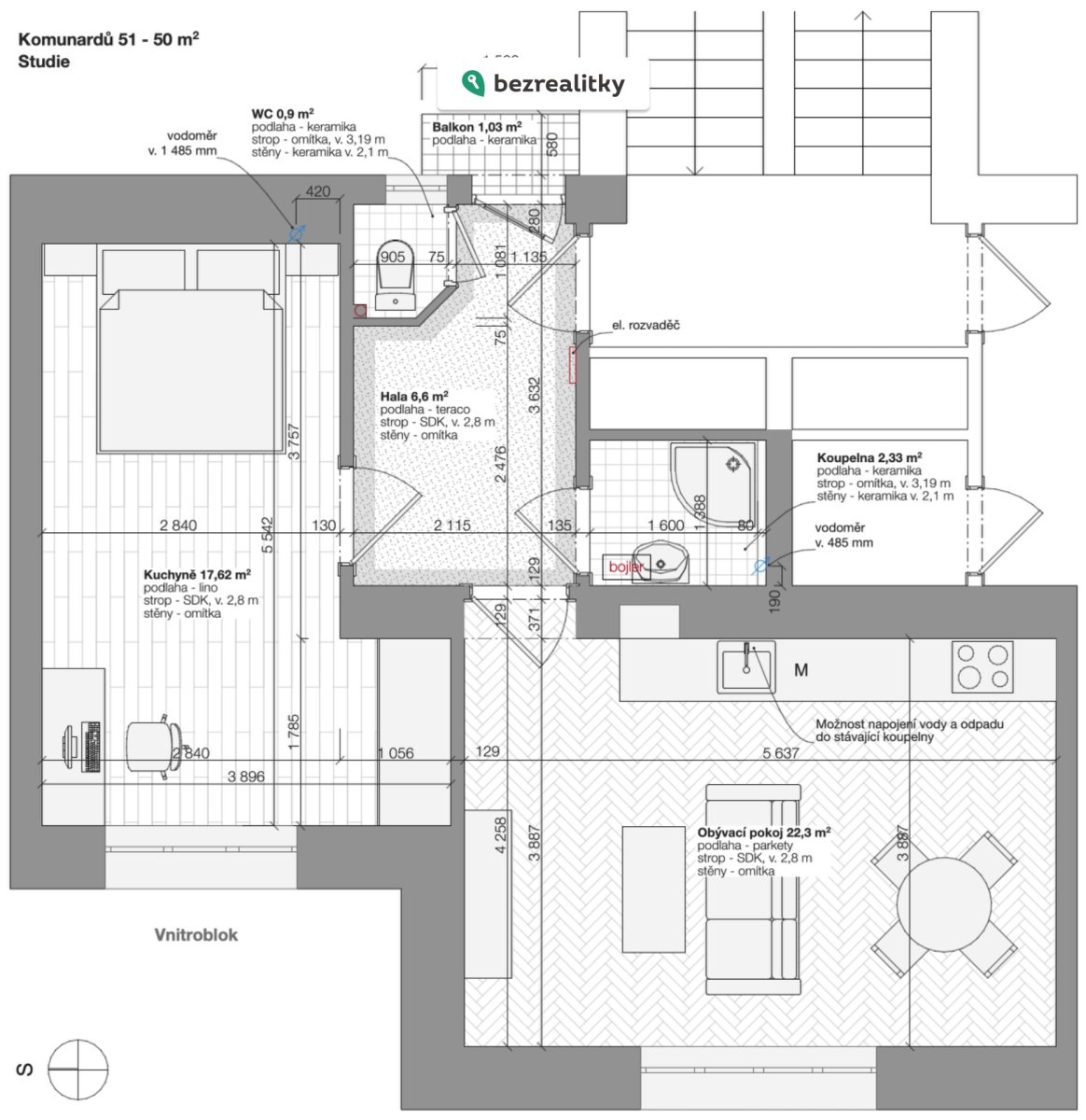
Byt je velmi světlý. Obě obytné místnosti směřují do klidného vnitrobloku se západní orientací. Je po nedávné rekonstrukci (omítky, elektro, kuchyně, okna…) a je možné jeho okamžité užívání. Výšky a rozměry místností, návaznosti dispozice a povrchy jsou popsány v přiložených půdorysech. V obývacím pokoji jsou původní parkety v dobrém stavu. V chodbě je původní teraco, které by chtělo zrenovovat. V kuchyni je stávající linoleum na DTD velkoplošných deskách, které s největší pravděpodobností překrývají původní parkety nebo podlahová prkna - sonda nebyla provedena. Dispozičně je možné přemístit kuchyni do větší obytné místnosti s napojením odpadů a vody do koupelny. Společné prostory domu jsou udržované a čisté s původními povrchy a detaily.

SVJ řádně fungující. Zápis ze shromáždění za rok 2025 k nahlédnutí. Aktuální výše předepsaných záloh je 2 359 Kč (předpis záloh k nahlédnutí)

Jedná se o přímý prodej bez provize realitní kanceláři. Realitní kanceláře prosím nekontaktovat. Tato nemovitost je určena výhradně přímým zájemcům o koupi. Na inzerát můžete také reagovat přímo na webu Bezrealitky: https://www.bezrealitky.cz/nemovitosti-byty-domy/964051-nabidka-prodej-bytu-komunardu-praha
Cena: 8 240 000 Kč  
Dispozice/podlahová plocha: 2+kk/50 m²
Číslo zakázky: REALITYMIX-964051

Podrobné informace

  • Dispozice bytu: 2+kk
  • Číslo podlaží v domě: 4
  • Počet podlaží objektu: 6
  • Celková podlahová plocha: 50 m²
  • Druh objektu: cihlová
  • Stav objektu: dobrý
  • Vlastnictví: osobní
  • Balkon: 1 m²
  • Sklep: 3 m²
  • Vybaveno: ano
  • Umístění objektu: klidná část obce
  • Energetická náročnost budovy: G - Mimořádně nehospodárná

Sdílej na:

Facebook     Twitter

Tisk nabídky (pdf)

  • (A4)
  • (A4)
  • (A4)
  • (A4)
  • (A5)

Poslat odkaz:

Právní rádce

Právní rádce
  • V tomto článku shrneme nejdůležitější věci, které byste si měli promyslet, pokud se chystáte prodat svou nemovitost a chcete, abyste s kupujícím nemusel následně řešit vzniklé problémy.

    Jako prodávající nesete rizika spojená nejen se samotným obchodem, ale i se stavem nemovitosti v době prodeje a pro minimalizaci rizik, je dobré se zamyslet nad uvedenými oblastmi.

    Detail
  • Realitní makléř má své nezastupitelné místo v realitním obchodu. Realitním makléřem nemyslím nevzdělané jelito, které absolvovalo dvoudenní školení a ví, jak se nahraje inzerát na inzertní portál.

    Realitním makléřem, který se Vám skutečně vyplatí, je zkušený profesionál, který je schopen Vám dobře poradit jak prodat za co nejvíc a s nejmenším rizikem a hlavně je Vás schopen obratně provést celým realitním obchodem.

    Detail
  • Detail
Chci vědět víc
Právní rádce

Prodáváte nemovitost a potřebujete zjistit její reálnou hodnotu?

Zjistit reálnou cenu

Vývoj průměrné ceny za m2 v lokalitě Praha 7

Ceny uvedené v grafu, jsou průměrnými cenami ze sledované lokality a nezohledňují stav, stáří ani vybavení nemovitosti.
1Q 2022 136261
1Q 2022
Průměrná nabídková cena 136 261 Kč/m²

Aktuální nabídka: 164 800 Kč/m²
2Q 2022 136064
2Q 2022
Průměrná nabídková cena 136 064 Kč/m²

Aktuální nabídka: 164 800 Kč/m²
3Q 2022 134130
3Q 2022
Průměrná nabídková cena 134 130 Kč/m²

Aktuální nabídka: 164 800 Kč/m²
4Q 2022 132948
4Q 2022
Průměrná nabídková cena 132 948 Kč/m²

Aktuální nabídka: 164 800 Kč/m²
1Q 2023 135985
1Q 2023
Průměrná nabídková cena 135 985 Kč/m²

Aktuální nabídka: 164 800 Kč/m²
2Q 2023 130993
2Q 2023
Průměrná nabídková cena 130 993 Kč/m²

Aktuální nabídka: 164 800 Kč/m²
3Q 2023 129132
3Q 2023
Průměrná nabídková cena 129 132 Kč/m²

Aktuální nabídka: 164 800 Kč/m²
4Q 2023 134608
4Q 2023
Průměrná nabídková cena 134 608 Kč/m²

Aktuální nabídka: 164 800 Kč/m²
1Q 2024 147592
1Q 2024
Průměrná nabídková cena 147 592 Kč/m²

Aktuální nabídka: 164 800 Kč/m²
2Q 2024 156951
2Q 2024
Průměrná nabídková cena 156 951 Kč/m²

Aktuální nabídka: 164 800 Kč/m²
3Q 2024 162945
3Q 2024
Průměrná nabídková cena 162 945 Kč/m²

Aktuální nabídka: 164 800 Kč/m²
4Q 2024 162050
4Q 2024
Průměrná nabídková cena 162 050 Kč/m²

Aktuální nabídka: 164 800 Kč/m²
1Q 2025 177431
1Q 2025
Průměrná nabídková cena 177 431 Kč/m²

Aktuální nabídka: 164 800 Kč/m²
2Q 2025 179489
2Q 2025
Průměrná nabídková cena 179 489 Kč/m²

Aktuální nabídka: 164 800 Kč/m²
3Q 2025 177473
3Q 2025
Průměrná nabídková cena 177 473 Kč/m²

Aktuální nabídka: 164 800 Kč/m²
4Q 2025 175489
4Q 2025
Průměrná nabídková cena 175 489 Kč/m²

Aktuální nabídka: 164 800 Kč/m²

Prodáváte nemovitost a potřebujete zjistit její reálnou hodnotu?

Zjistit reálnou cenu

Mapa

* Umístění na mapě je na základě GPS informací dodaných realitní kanceláří.
* Pozice na mapě je pouze orientační.

Souhlas se zpracováním osobních údajů

Uživatel serveru Reality.hn.cz (dále jen „Server“) dostupného na internetové adrese (URL) https://realitymix.hn.cz, který provozuje společnost DALTEN media s.r.o., se sídlem Na Harfě 916/9a, Praha 9, 190 00, IČO: 271 35 306 (dále jen „Správce“) jako provozovateli tohoto Serveru uděluje svůj výslovný souhlas v souladu s ustanovením § 5 zákona č. 101/2000 Sb. O ochraně osobních údajů a o změně některých zákonů, v platném znění (dále jen „zákon o ochraně osobních údajů“), se zpracováním uživatelem poskytnutých osobních údajů a dalších dat.

Uživatel poskytuje Správci osobní údaje v rozsahu: jméno, příjmení, e-mailová adresa, telefonický kontakt a další data, a to z důvodu projeveného zájmu o nemovitost, kde prostřednictvím služby Serveru Správce osloví Uživatel inzerenta uvedeného v detailu nemovitosti - Bezrealitky s.r.o. (IČ 08063168) se zájmem o jeho služby.

Uživatel tyto osobní údaje poskytuje dobrovolně a bere na vědomí, že součástí služeb Správce, které Správce Uživateli poskytuje, je vyhledání všech Uživateli vyhovujících (dle parametrů - cena, typ nemovitosti, lokalita atd.) nemovitostí. Správce za tímto účelem provozuje aplikace Hlídací pes a newsletter. Tyto služby je možné z každého zaslaného emailu odhlásit. Souhlas se zpracováním osobních údajů Uživatel poskytuje Správci na dobu neurčitou s tím, že svůj udělený souhlas může Uživatel kdykoliv na drese správce info@realitymix.cz odvolat. Správce garantuje Uživateli i další práva uvedené v ustanovení §11 a §21 zákoba č. 101/200 Sb. Ve znění pozdějších předpisů. Více informací o zpracování údajů získáte zde (realitymix.cz/zasady-ochrany-osobnich-udaju)

Podobné nemovitosti

Prodej bytu, 2+kk, 54 m² obrázek

Prodej bytu, 2+kk, 54 m²

Dělnická, Praha 7, Holešovice

8 200 000 Kč
Prodej bytu, 2+kk, 46 m² obrázek

Prodej bytu, 2+kk, 46 m²

Šimáčkova, Praha 7, Holešovice

8 900 000 Kč
Prodej bytu, 2+kk, 49 m² obrázek

Prodej bytu, 2+kk, 49 m²

V závětří, Praha 7, Holešovice

8 990 000 Kč
Prodej bytu, 2+kk, 62 m² obrázek

Prodej bytu, 2+kk, 62 m²

Na výšinách, Praha 7, Bubeneč

7 276 000 Kč

Napsat zprávu prodejci

Prodej bytu, 2+kk, 50 m²

Prodej bytu, 2+kk, 50 m²

Komunardů, Praha 7, Holešovice

8 240 000 Kč

Hospodářské noviny

© 1996-2026 Economia, a.s.

Hospodářské noviny (print)   ISSN 0862-9587
Hospodářské noviny (online) ISSN 2787-950X

Certifikováno
jti
Sledujte nás
Stáhněte si aplikaci HN
  • Kontakty
  • Tiráž redakce HN
  • Economia
  • Kariéra v HN
  • Ceník inzerce
  • Ochrana osobních údajů
  • Prohlášení o cookies
  • Nastavení soukromí
  • Všeobecné smluvní podmínky
  • Koupit / darovat předplatné
  • Eventy
  • Newslettery
  • RSS kanály
Autorská práva vykonává vydavatel. Bez písemného svolení vydavatele je zakázáno jakékoli užití částí nebo celku díla, zejména rozmnožování a šíření jakýmkoli způsobem, mechanickým nebo elektronickým, v českém nebo jiném jazyce. Bez souhlasu vydavatele je zakázáno též rozmnožování obsahu pro účely automatizované analýzy textů nebo dat podle ustanovení § 39c autorského zákona.