Prodej bytu, 2+kk, 55 m²
Lesnická, Praha 5, Smíchov
9 500 000 KčProdej bytu, 2+kk, 55 m²
Lesnická, Praha 5, Smíchov
Prodej bytu 2+kk 55 m², Praha - Smíchov
Nabízíme k prodeji bytovou jednotku č. 17/1225 o celkové ploše 58,3 m² (užitná plocha místností 55,2 m²), situovanou v 6. nadzemním podlaží krásného secesního domu v Lesnické ulici na Smíchově. Byt je po celkové rekonstrukci ve velmi dobrém stavu. Okna jsou orientována do vnitrobloku, takže po jejich otevření neuslyšíte ruch velkoměsta, ale pocítíte atmosféru tichého dvora mimo dosah ruchu z ulice.
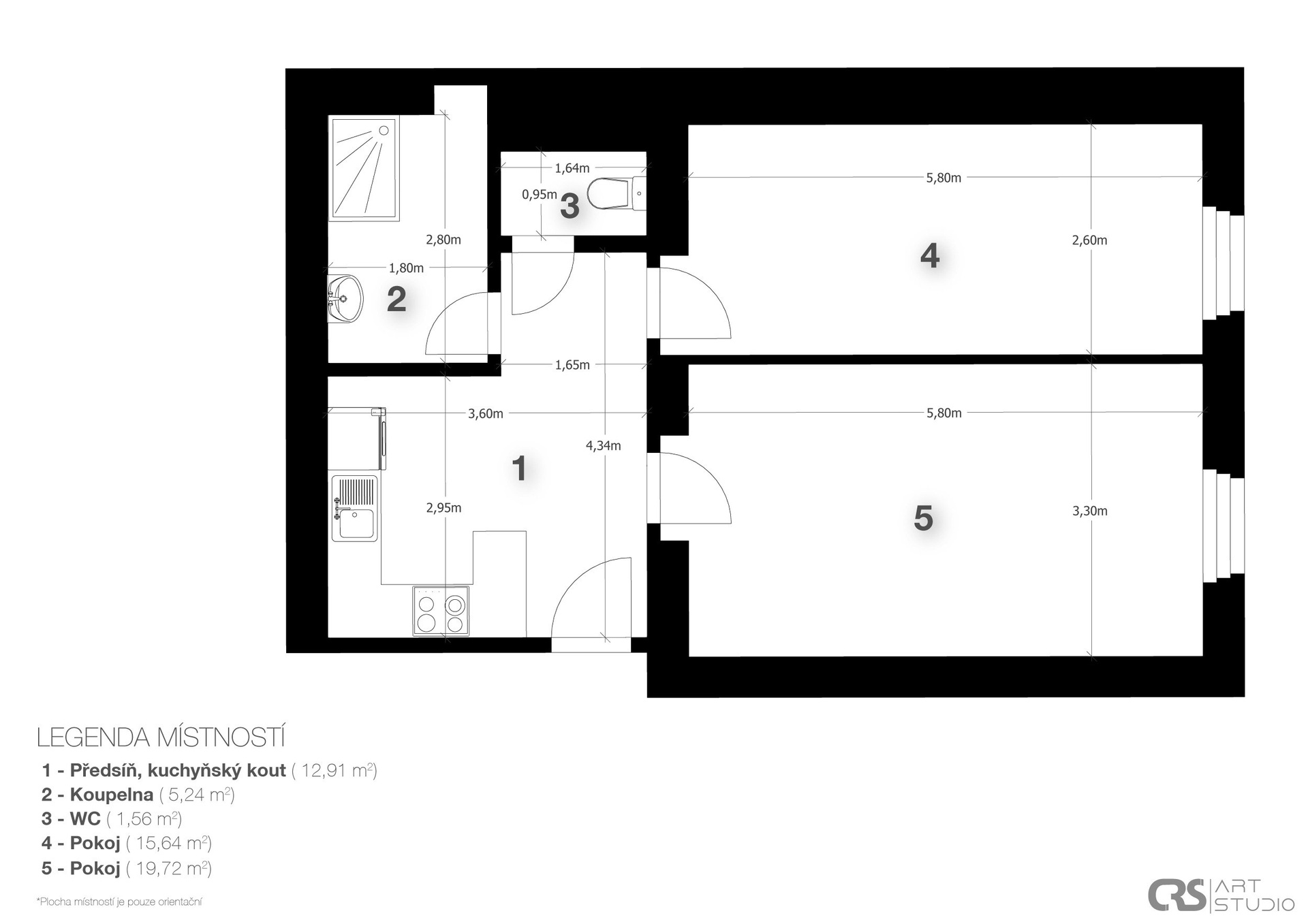
Dispozice:
Předsíň s kuchyňským koutem (vč. myčky) – 12,9 m²
Pokoj – 15,7 m²
Pokoj – 19,7 m²
Koupelna (sprcha, umyvadlo, elektrický bojler) – 5,3 m²
Samostatné WC (nový elektrický kotel) – 1,6 m²
Dispozice nabízí komfortní rozdělení na denní a klidovou část, vhodné jak pro vlastní bydlení, tak i jako investici k pronájmu v dlouhodobě žádané lokalitě. Měsíční zálohy na služby činí 500 Kč na osobu, elektřina se hradí samostatně dle vlastní spotřeby.
Dům si zachoval historický charakter s původními secesními prvky ve společných prostorách. Velkým benefitem je plánovaná výstavba výtahu, kterou SVJ již realizuje. U bytu v 6. NP jde o zásadní zvýšení komfortu i budoucí hodnoty nemovitosti. Lesnická ulice se nachází v klidné části Smíchova, jen pár kroků od Janáčkova nábřeží a Smíchovské náplavky. V docházkové vzdálenosti je metro B Anděl, obchodní centrum Nový Smíchov i kompletní občanská vybavenost.
Spojení historického domu s citlivě provedenou rekonstrukcí a plánovanou výstavbou výtahu navíc dává této nemovitosti dlouhodobý potenciál – jak pro vlastní pohodlné bydlení, tak jako stabilní investici do budoucna.
| Cena: | 9 500 000 Kč |
| Dispozice/podlahová plocha: | 2+kk/55 m² |
| Číslo zakázky: | REALITYMIX-00014 |
Podrobné informace
- Dispozice bytu: 2+kk
- Číslo podlaží v domě: 6
- Počet podlaží objektu: 6
- Celková podlahová plocha: 55 m²
- Druh objektu: cihlová
- Stav objektu: velmi dobrý
- Vlastnictví: osobní
- Výška stropu: 3 m
- Vybaveno: ano
- Umístění objektu: centrum obce
- Doprava: silnice, MHD
- Elektřina: Elektro - 230 V
- Voda: Voda - dálkový vodovod
- Telekomunikace: Internet
- Topení: Ústřední - elektrické
- Odpad: Kanalizace
- Energetická náročnost budovy: G - Mimořádně nehospodárná
Právní rádce
-
Detail
V tomto článku shrneme nejdůležitější věci, které byste si měli promyslet, pokud se chystáte prodat svou nemovitost a chcete, abyste s kupujícím nemusel následně řešit vzniklé problémy.
Jako prodávající nesete rizika spojená nejen se samotným obchodem, ale i se stavem nemovitosti v době prodeje a pro minimalizaci rizik, je dobré se zamyslet nad uvedenými oblastmi.
-
Detail
Realitní makléř má své nezastupitelné místo v realitním obchodu. Realitním makléřem nemyslím nevzdělané jelito, které absolvovalo dvoudenní školení a ví, jak se nahraje inzerát na inzertní portál.
Realitním makléřem, který se Vám skutečně vyplatí, je zkušený profesionál, který je schopen Vám dobře poradit jak prodat za co nejvíc a s nejmenším rizikem a hlavně je Vás schopen obratně provést celým realitním obchodem.