Hospodářské noviny
Hledat Přihlásit seMůj účet Předplatné
Přihlásit seMůj účet Předplatné
  • Home
  • Byznys
  • Zprávy
  • Názory
  • Tech
  • Reality
  • Investice
  • Podcasty
  • Hry
  • PročNe
  • Archiv
  • Další
  • Jak nastartovat sever
  • Speciály HN
  • Víkend
  • Magazín Stavba
  • Knihy HN
  • Eventy
  • Green Deal
  • Inovátoři roku
  • Top ženy
  • Nej banka / Nej pojišťovna
  • Předplatné
  • Redakce
  • Inzerce
  • Kontakty
  • Newslettery
  • Ekonom
  • Logistika
  • Právní rádce
  • Hry
  • Economia
  • BeNative
  • Nastavení účtu
  • Moje předplatné
  • Odhlásit se

Reality

  • Reality
  • Vyhledávání nemovitostí
  • Top realitní fondy
  • Magazín Stavba
Prodej bytu, 2+kk, 78 m²

Prodej bytu, 2+kk, 78 m²

Psárská, Praha 4, Michle

10 790 000 Kč
  • RealityMIX
  • Byty
  • Prodej
  • Praha
  • Praha 4
0 z 5 (0 hodnocení)

Prodej bytu, 2+kk, 78 m²

Psárská, Praha 4, Michle

10 790 000 Kč
A
Mimořádně úsporná
Výpis
Předchozí inzerát Další inzerát
1776857654-vztbvzkolp-img-8665
1776681828-qptifcnubm-5np
1776866009-oanenckyjn-img-8667

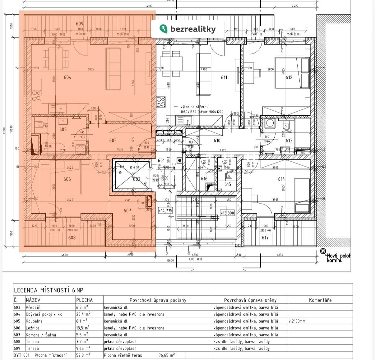
Prodej bytu 2+kk 78 m²

PRODEJ DVOU BYTŮ 2+kk – PROJEKT PSÁRSKÁ, NOVOSTAVBA (KOLAUDACE 07/2024), PRAHA 4 – MICHLE

Nabízíme k prodeji dva moderní byty v nově dokončeném rezidenčním projektu Psárská, který navazuje na úspěšný developerský záměr v sousedním domě. Jedná se o komorní bytový dům s pouhými 10 jednotkami a výtahem, což zajišťuje klidné a komfortní bydlení. Oba byty je možné dispozičně upravit na 3+kk, a to díky praktickému řešení prostoru.

Byt č. 1 – 4. nadzemní podlaží

* dispozice: 2+kk
* podlahová plocha bytu: 65,6 m²
* lodžie 8,7 m²
* celková plocha včetně lodžie: 74,3 m²
* umístění: 4. patro

Byt č. 2 – 5. nadzemní podlaží

* dispozice: 2+kk
* podlahová plocha bytu: 61,5 m²
* dvě lodžie o ploše: 16,85 m²
* celková plocha včetně lodžií: 78,35 m²
* umístění: poslední (5.) patro

Standard a technologie

Každý byt je vybaven moderním systémem rekuperace vzduchu, který zajišťuje čistý vzduch a výraznou úsporu nákladů na vytápění – dle výrobce až 30 000 Kč ročně. Energetickou efektivitu dále zvyšuje vlastní plynová kotelna s kvalitními kotli značky Bosch.

Díky oknům s trojskly, vlastní kotelně, rekuperaci vzduchu a opláštění budovy minerální vatou Weber (16 cm) dosahuje budova energetické náročnosti třídy A+, což zajišťuje nízké provozní náklady a maximální komfort.

⸻

Konstrukce a kvalita provedení

Při výstavbě domu byly použity kvalitní materiály a technologie, které zajišťují vysoký standard bydlení i do budoucna:

* železobetonové stropy s protihlukovou izolací
* vnitřní příčky z AKU cihel (12 cm)
* mezibytové stěny z AKU cihel (24 cm)
* obvodové zdivo (24 cm) se zateplením minerální vatou Weber (16 cm)

⸻

Lokalita – Praha 4, Michle

Michle je ideální lokalitou pro klidné bydlení s výbornou dostupností do centra.
V okolí se nachází Arkády Pankrác a OC DBK s kompletní občanskou vybaveností.

Dopravní dostupnost zajišťují autobusové linky 124, 139 a 150 a stanice metra Kačerov.
V blízkosti se nachází také fitness centrum Balance Club Brumlovka.

Parkování

* venkovní parkovací stání: 300 000 Kč
* nebo rezidenční parkování (modré zóny): cca 1 200 Kč/rok

⸻

Dostupnost

Oba byty jsou momentálně pronajaté, s možností uvolnění do 2 měsíců od podpisu kupní smlouvy.

Projekt Psárská nabízí moderní bydlení v komorním domě s důrazem na kvalitu, energetickou úspornost a klidné prostředí.

V případě zájmu o více informací nebo sjednání prohlídky neváhejte kontaktovat telefonicky nebo emailem. RK prosím nekontaktovat. Tato nemovitost je určena výhradně přímým zájemcům o koupi. Na inzerát můžete také reagovat přímo na webu Bezrealitky.
Cena: 10 790 000 Kč  
Dispozice/podlahová plocha: 2+kk/78 m²
Číslo zakázky: REALITYMIX-1014644

Podrobné informace

  • Dispozice bytu: 2+kk
  • Číslo podlaží v domě: 5
  • Počet podlaží objektu: 5
  • Celková podlahová plocha: 78 m²
  • Druh objektu: cihlová
  • Stav objektu: novostavba
  • Vlastnictví: osobní
  • Lodžie: 16 m²
  • Vybaveno: ano
  • Umístění objektu: klidná část obce
  • Energetická náročnost budovy: A - Mimořádně úsporná

Sdílej na:

Facebook     Twitter

Tisk nabídky (pdf)

  • (A4)
  • (A4)
  • (A4)
  • (A4)
  • (A5)

Poslat odkaz:

Právní rádce

Právní rádce
  • V tomto článku shrneme nejdůležitější věci, které byste si měli promyslet, pokud se chystáte prodat svou nemovitost a chcete, abyste s kupujícím nemusel následně řešit vzniklé problémy.

    Jako prodávající nesete rizika spojená nejen se samotným obchodem, ale i se stavem nemovitosti v době prodeje a pro minimalizaci rizik, je dobré se zamyslet nad uvedenými oblastmi.

    Detail
  • Realitní makléř má své nezastupitelné místo v realitním obchodu. Realitním makléřem nemyslím nevzdělané jelito, které absolvovalo dvoudenní školení a ví, jak se nahraje inzerát na inzertní portál.

    Realitním makléřem, který se Vám skutečně vyplatí, je zkušený profesionál, který je schopen Vám dobře poradit jak prodat za co nejvíc a s nejmenším rizikem a hlavně je Vás schopen obratně provést celým realitním obchodem.

    Detail
  • Detail
Chci vědět víc
Právní rádce

Prodáváte nemovitost a potřebujete zjistit její reálnou hodnotu?

Zjistit reálnou cenu

Vývoj průměrné ceny za m2 v lokalitě Praha 4

Ceny uvedené v grafu, jsou průměrnými cenami ze sledované lokality a nezohledňují stav, stáří ani vybavení nemovitosti.
2Q 2022 117574
2Q 2022
Průměrná nabídková cena 117 574 Kč/m²

Aktuální nabídka: 138 333 Kč/m²
3Q 2022 117377
3Q 2022
Průměrná nabídková cena 117 377 Kč/m²

Aktuální nabídka: 138 333 Kč/m²
4Q 2022 112840
4Q 2022
Průměrná nabídková cena 112 840 Kč/m²

Aktuální nabídka: 138 333 Kč/m²
1Q 2023 112909
1Q 2023
Průměrná nabídková cena 112 909 Kč/m²

Aktuální nabídka: 138 333 Kč/m²
2Q 2023 111557
2Q 2023
Průměrná nabídková cena 111 557 Kč/m²

Aktuální nabídka: 138 333 Kč/m²
3Q 2023 113686
3Q 2023
Průměrná nabídková cena 113 686 Kč/m²

Aktuální nabídka: 138 333 Kč/m²
4Q 2023 115203
4Q 2023
Průměrná nabídková cena 115 203 Kč/m²

Aktuální nabídka: 138 333 Kč/m²
1Q 2024 119157
1Q 2024
Průměrná nabídková cena 119 157 Kč/m²

Aktuální nabídka: 138 333 Kč/m²
2Q 2024 122047
2Q 2024
Průměrná nabídková cena 122 047 Kč/m²

Aktuální nabídka: 138 333 Kč/m²
3Q 2024 128522
3Q 2024
Průměrná nabídková cena 128 522 Kč/m²

Aktuální nabídka: 138 333 Kč/m²
4Q 2024 129533
4Q 2024
Průměrná nabídková cena 129 533 Kč/m²

Aktuální nabídka: 138 333 Kč/m²
1Q 2025 136434
1Q 2025
Průměrná nabídková cena 136 434 Kč/m²

Aktuální nabídka: 138 333 Kč/m²
2Q 2025 140639
2Q 2025
Průměrná nabídková cena 140 639 Kč/m²

Aktuální nabídka: 138 333 Kč/m²
3Q 2025 144991
3Q 2025
Průměrná nabídková cena 144 991 Kč/m²

Aktuální nabídka: 138 333 Kč/m²
4Q 2025 149005
4Q 2025
Průměrná nabídková cena 149 005 Kč/m²

Aktuální nabídka: 138 333 Kč/m²
1Q 2026 153745
1Q 2026
Průměrná nabídková cena 153 745 Kč/m²

Aktuální nabídka: 138 333 Kč/m²

Prodáváte nemovitost a potřebujete zjistit její reálnou hodnotu?

Zjistit reálnou cenu

Mapa

* Umístění na mapě je na základě GPS informací dodaných realitní kanceláří.
* Pozice na mapě je pouze orientační.

Souhlas se zpracováním osobních údajů

Uživatel serveru Reality.hn.cz (dále jen „Server“) dostupného na internetové adrese (URL) https://realitymix.hn.cz, který provozuje společnost DALTEN media s.r.o., se sídlem Na Harfě 916/9a, Praha 9, 190 00, IČO: 271 35 306 (dále jen „Správce“) jako provozovateli tohoto Serveru uděluje svůj výslovný souhlas v souladu s ustanovením § 5 zákona č. 101/2000 Sb. O ochraně osobních údajů a o změně některých zákonů, v platném znění (dále jen „zákon o ochraně osobních údajů“), se zpracováním uživatelem poskytnutých osobních údajů a dalších dat.

Uživatel poskytuje Správci osobní údaje v rozsahu: jméno, příjmení, e-mailová adresa, telefonický kontakt a další data, a to z důvodu projeveného zájmu o nemovitost, kde prostřednictvím služby Serveru Správce osloví Uživatel inzerenta uvedeného v detailu nemovitosti - Bezrealitky s.r.o. (IČ 08063168) se zájmem o jeho služby.

Uživatel tyto osobní údaje poskytuje dobrovolně a bere na vědomí, že součástí služeb Správce, které Správce Uživateli poskytuje, je vyhledání všech Uživateli vyhovujících (dle parametrů - cena, typ nemovitosti, lokalita atd.) nemovitostí. Správce za tímto účelem provozuje aplikace Hlídací pes a newsletter. Tyto služby je možné z každého zaslaného emailu odhlásit. Souhlas se zpracováním osobních údajů Uživatel poskytuje Správci na dobu neurčitou s tím, že svůj udělený souhlas může Uživatel kdykoliv na drese správce info@realitymix.cz odvolat. Správce garantuje Uživateli i další práva uvedené v ustanovení §11 a §21 zákoba č. 101/200 Sb. Ve znění pozdějších předpisů. Více informací o zpracování údajů získáte zde (realitymix.cz/zasady-ochrany-osobnich-udaju)

Podobné nemovitosti

Prodej bytu, 2+kk, 67 m² obrázek

Prodej bytu, 2+kk, 67 m²

Rostislavova, Praha 4, Nusle

8 940 000 Kč
Prodej bytu, 2+kk, 59 m² obrázek

Prodej bytu, 2+kk, 59 m²

Rostislavova, Praha 4, Nusle

8 568 000 Kč
Prodej bytu, 2+kk, 44 m² obrázek

Prodej bytu, 2+kk, 44 m²

U plynárny, Praha 4, Michle

8 413 373 Kč
Prodej bytu, 2+kk, 50 m² obrázek

Prodej bytu, 2+kk, 50 m²

Kloboučnická, Praha 4, Nusle

8 990 000 Kč

Napsat zprávu prodejci

Prodej bytu, 2+kk, 78 m²

Prodej bytu, 2+kk, 78 m²

Psárská, Praha 4, Michle

10 790 000 Kč

Hospodářské noviny

© 1996-2026 Economia, a.s.

Hospodářské noviny (print)   ISSN 0862-9587
Hospodářské noviny (online) ISSN 2787-950X

Certifikováno
jti
Sledujte nás
Stáhněte si aplikaci HN
  • Kontakty
  • Tiráž redakce HN
  • Economia
  • Kariéra v HN
  • Ceník inzerce
  • Ochrana osobních údajů
  • Prohlášení o cookies
  • Nastavení soukromí
  • Všeobecné smluvní podmínky
  • Koupit / darovat předplatné
  • Eventy
  • Newslettery
  • RSS kanály
Autorská práva vykonává vydavatel. Bez písemného svolení vydavatele je zakázáno jakékoli užití částí nebo celku díla, zejména rozmnožování a šíření jakýmkoli způsobem, mechanickým nebo elektronickým, v českém nebo jiném jazyce. Bez souhlasu vydavatele je zakázáno též rozmnožování obsahu pro účely automatizované analýzy textů nebo dat podle ustanovení § 39c autorského zákona.