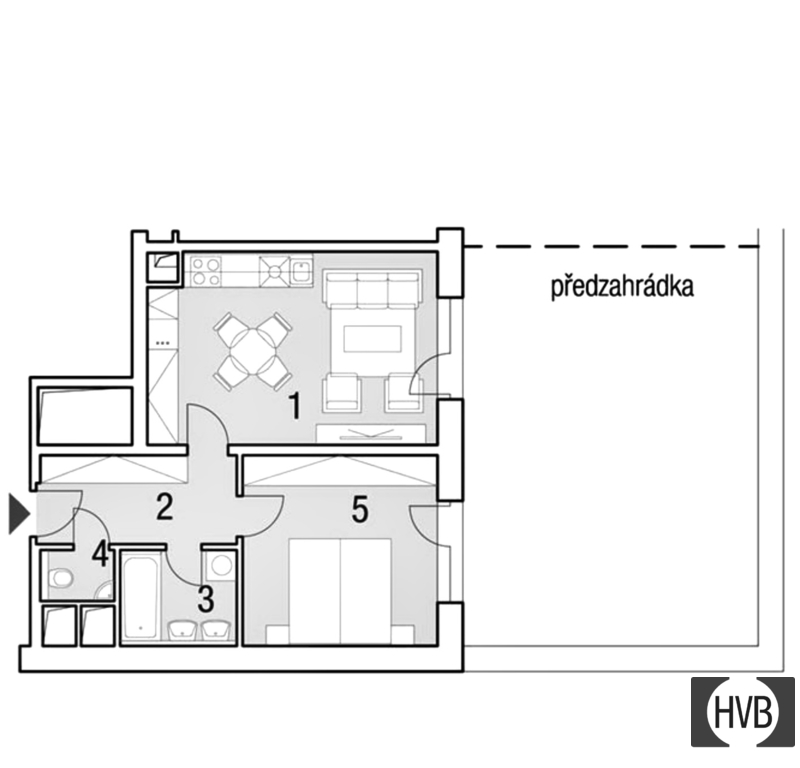
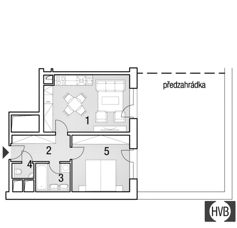
Prodej bytu, 2+kk, 53 m²
Za černým mostem, Praha 14
9 499 000 KčProdej bytu, 2+kk, 53 m²
Za černým mostem, Praha 14
Prodej bytu 2+kk/S/GS 53m2 + předzahrádka 46 m2, OV, Praha 14 - Hloubětín, ul. Za černým mostem
| Cena: | 9 499 000 Kč |
| Poznámka: | cena bez provize RK |
| Datum k nastěhování: | 05.03.2026 |
| Dispozice/podlahová plocha: | 2+kk/53 m² |
| Číslo zakázky: | REALITYMIX-20360 |
Podrobné informace
- Dispozice bytu: 2+kk
- Číslo podlaží v domě: 1
- Počet podlaží objektu: 8
- Užitná plocha: 51 m²
- Celková podlahová plocha: 53 m²
- Druh objektu: cihlová
- Stav objektu: velmi dobrý
- Vlastnictví: osobní
- Sklep: 2 m²
- Vybaveno: ano
- Umístění objektu: klidná část obce
- Elektřina: Elektro - 230 V
- Voda: Voda - dálkový vodovod
- Plyn: Plynovod
- Odpad: Kanalizace
- Energetická náročnost budovy: B - Velmi úsporná
- Energetický ukazatel podle vyhlášky: č. 264/2020 Sb.
Právní rádce
-
Detail
V tomto článku shrneme nejdůležitější věci, které byste si měli promyslet, pokud se chystáte prodat svou nemovitost a chcete, abyste s kupujícím nemusel následně řešit vzniklé problémy.
Jako prodávající nesete rizika spojená nejen se samotným obchodem, ale i se stavem nemovitosti v době prodeje a pro minimalizaci rizik, je dobré se zamyslet nad uvedenými oblastmi.
-
Detail
Realitní makléř má své nezastupitelné místo v realitním obchodu. Realitním makléřem nemyslím nevzdělané jelito, které absolvovalo dvoudenní školení a ví, jak se nahraje inzerát na inzertní portál.
Realitním makléřem, který se Vám skutečně vyplatí, je zkušený profesionál, který je schopen Vám dobře poradit jak prodat za co nejvíc a s nejmenším rizikem a hlavně je Vás schopen obratně provést celým realitním obchodem.
Prodáváte nemovitost a potřebujete zjistit její reálnou hodnotu?
Zjistit reálnou cenuVývoj průměrné ceny za m2 v lokalitě Praha 9
Prodáváte nemovitost a potřebujete zjistit její reálnou hodnotu?
Zjistit reálnou cenuMapa
Podobné nemovitosti
Prodej bytu, 2+kk, 46 m²
Želivská, Praha 14, Kyje
7 450 000 Kč
Prodej bytu, 2+kk, 52 m²
U Hostavického potoka, Praha 14, Hostavice
8 450 000 Kč
Prodej bytu, 2+kk, 82 m²
Za černým mostem, Praha 14, Hloubětín
8 950 000 Kč
Prodej bytu, 2+kk, 52 m²
U Hostavického potoka, Praha 14, Hostavice
7 800 000 Kč