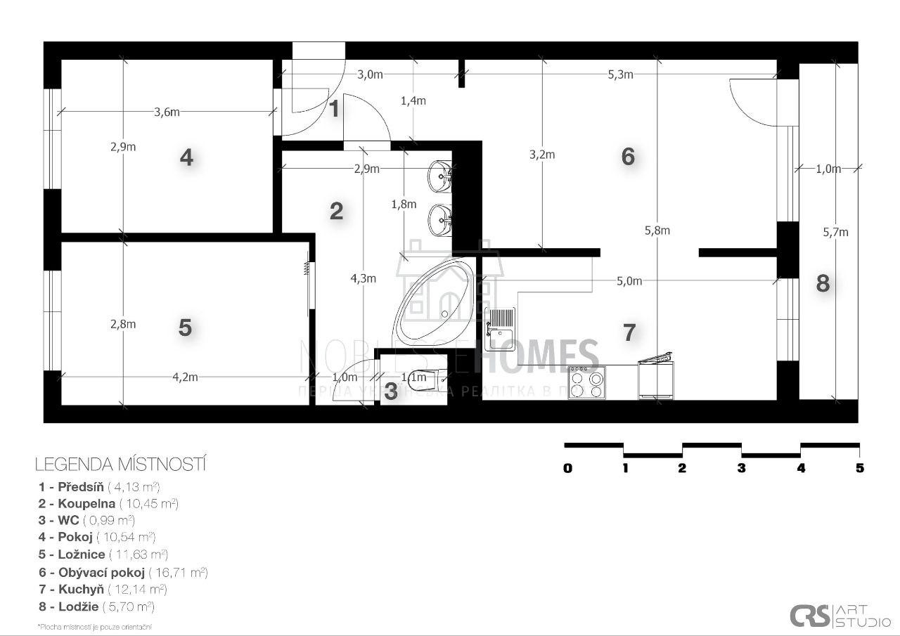
Prodej bytu, 3+1, 68 m²
Lovosická, Praha 9, Prosek
7 900 000 KčProdej bytu, 3+1, 68 m²
Lovosická, Praha 9, Prosek
Prodej bytu 3+1 72 m s lodžií, Lovosická, Praha 9 - Prosek, OV, před rekonstrukcí
Cena: 7 900 000 Kč
Podlaží: 3. NP
Nabízíme světlý a prakticky řešený byt 3+1 ve vyhledávané lokalitě Prahy 9, jen pár minut chůze od metra C Střížkov. Byt je v původním stavu, takže je ideální pro ty, kteří si chtějí rekonstrukcí vytvořit bydlení přesně podle svých představ a zároveň získat nemovitost s dlouhodobou hodnotou.
Hlavní výhody:
Dispozice 3+1 vhodné pro rodinu, i jako investice
Velký potenciál rekonstrukce možnost moderního řešení a lepšího využití prostoru
K bytu náleží sklepní kóje (úložný prostor).
Centrální vytápění a centrální ohřev teplé vody.
3. patro s výtahem pohodlný přístup a příjemné světlo v bytě.
Klidný dům v upraveném sídlištním prostředí.
Výborná dopravní dostupnost metro, MHD, rychlé spojení do centra.
Kompletní občanská vybavenost v okolí školy, školky, obchody, lékaři, sportoviště, parky.
Byt prodáváme exkluzivně, což zajišťuje transparentní, rychlý a bezpečný průběh prodeje.
Pro více informací a domluvení prohlídky nás neváhejte kontaktovat.
| Cena: | 7 900 000 Kč |
| Poznámka: | Včetně provize i právních služeb |
| Dispozice/podlahová plocha: | 3+1/68 m² |
| Číslo zakázky: | REALITYMIX-44 |
Podrobné informace
- Dispozice bytu: 3+1
- Číslo podlaží v domě: 3
- Počet podlaží objektu: 8
- Užitná plocha: 67 m²
- Celková podlahová plocha: 68 m²
- Druh objektu: panelová
- Stav objektu: před rekonstrukcí
- Vlastnictví: osobní
- Lodžie: 6 m²
- Sklep: 2 m²
- Vybaveno: ano
- Umístění objektu: klidná část obce
- Doprava: silnice, MHD, autobus
- Elektřina: Elektro - 230 V
- Voda: Zdroj pro celý objekt
- Telekomunikace: Telefon, Internet
- Plyn: Individuální, Plynovod
- Topení: Ústřední - dálkové
- Odpad: Kanalizace
- Ostatní rozvody: Satelit, Kabelová televize
- Energetická náročnost budovy: G - Mimořádně nehospodárná
Právní rádce
-
Detail
V tomto článku shrneme nejdůležitější věci, které byste si měli promyslet, pokud se chystáte prodat svou nemovitost a chcete, abyste s kupujícím nemusel následně řešit vzniklé problémy.
Jako prodávající nesete rizika spojená nejen se samotným obchodem, ale i se stavem nemovitosti v době prodeje a pro minimalizaci rizik, je dobré se zamyslet nad uvedenými oblastmi.
-
Detail
Realitní makléř má své nezastupitelné místo v realitním obchodu. Realitním makléřem nemyslím nevzdělané jelito, které absolvovalo dvoudenní školení a ví, jak se nahraje inzerát na inzertní portál.
Realitním makléřem, který se Vám skutečně vyplatí, je zkušený profesionál, který je schopen Vám dobře poradit jak prodat za co nejvíc a s nejmenším rizikem a hlavně je Vás schopen obratně provést celým realitním obchodem.