Prodej bytu, 3+1, 69 m²
Pod strání, Praha 10, Strašnice
8 990 000 KčProdej bytu, 3+1, 69 m²
Pod strání, Praha 10, Strašnice
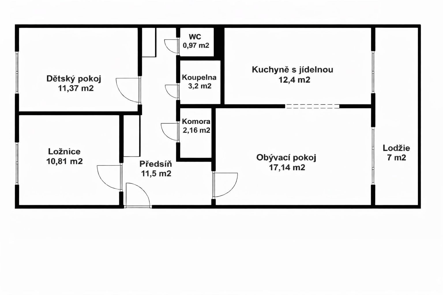
Prodej bytu 3+1, 78 m², Praha 10 – Strašnice, ul. Pod Strání
Byt je v původním stavu (umakartové jádro), ideální k moderní rekonstrukci dle vlastních představ. Dispozice: obývací pokoj s přímým vstupem na lodžii (orientace na jih do zeleně), ložnice jsou orientované na sever, kuchyně, koupelna, samostatné WC, komora a velká předsíň. K bytu náleží sklepní kóje.
Dům je zateplený, má plastová okna. SVJ je aktivní a dobře fungující.
Vynikající lokalita s kompletní občanskou vybaveností v okolí – školy, školky, obchody, pošta, lékárna. Výborné dopravní spojení – metro A (Skalka), tramvaj i autobus.
Byt je ihned volný, v osobním vlastnictví – lze financovat hypotečním úvěrem.
Cena: 8 990 000 Kč.
| Cena: | 8 990 000 Kč |
| Datum k nastěhování: | 23.04.2026 |
| Dispozice/podlahová plocha: | 3+1/69 m² |
| Číslo zakázky: | REALITYMIX-973133 |
Podrobné informace
- Dispozice bytu: 3+1
- Číslo podlaží v domě: 1
- Počet podlaží objektu: 7
- Celková podlahová plocha: 69 m²
- Druh objektu: panelová
- Stav objektu: dobrý
- Vlastnictví: osobní
- Lodžie: ano
- Sklep: ano
- Elektřina: Elektro - 230 V
- Voda: Zdroj pro celý objekt, Voda - dálkový vodovod
- Plyn: Plynovod
- Energetická náročnost budovy: C - Vyhovující
Právní rádce
-
Detail
V tomto článku shrneme nejdůležitější věci, které byste si měli promyslet, pokud se chystáte prodat svou nemovitost a chcete, abyste s kupujícím nemusel následně řešit vzniklé problémy.
Jako prodávající nesete rizika spojená nejen se samotným obchodem, ale i se stavem nemovitosti v době prodeje a pro minimalizaci rizik, je dobré se zamyslet nad uvedenými oblastmi.
-
Detail
Realitní makléř má své nezastupitelné místo v realitním obchodu. Realitním makléřem nemyslím nevzdělané jelito, které absolvovalo dvoudenní školení a ví, jak se nahraje inzerát na inzertní portál.
Realitním makléřem, který se Vám skutečně vyplatí, je zkušený profesionál, který je schopen Vám dobře poradit jak prodat za co nejvíc a s nejmenším rizikem a hlavně je Vás schopen obratně provést celým realitním obchodem.