Prodej bytu, 3+kk, 55 m²
Na Krupičárně, Praha 16, Radotín
9 700 000 KčProdej bytu, 3+kk, 55 m²
Na Krupičárně, Praha 16, Radotín
Prodej bytu 3+kk 55 m², Praha - Radotín, pod lesem u zastávek BUS
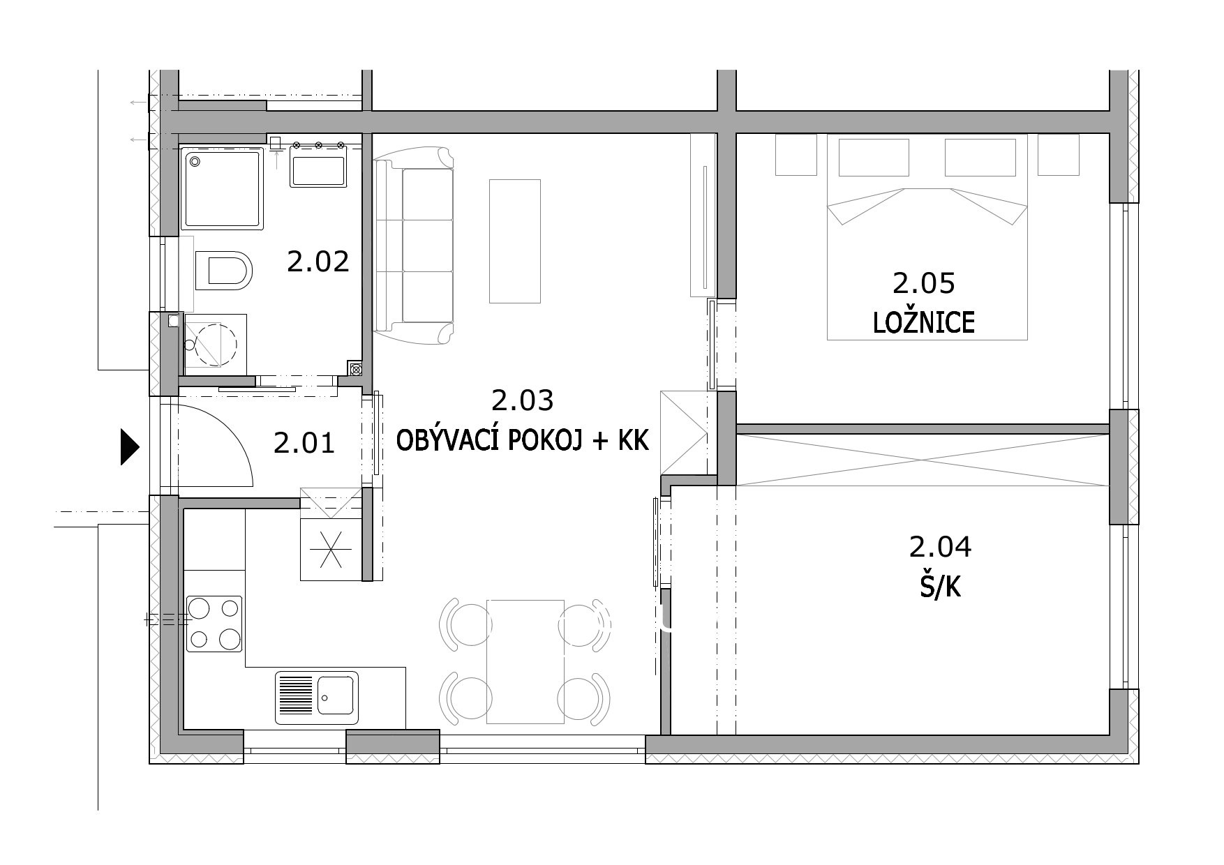
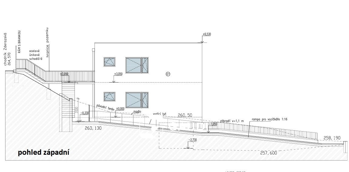
Bytový dům Maják obsahuje pouze 4byty, na úrovni ulice se nachází pro každý byt 2parkovací stání a úložná komora(sklep) cca 5,5m2. Bezbariérově po rampě se od parkoviště dostaneme do 2bytů v 1.patře domu, každý byt má vlastní vstup zvenku. 2 byty ve druhém patře mají také své vstupy z podesty přístupné po schodišti.
Mezi klady těchto bytů patří jejich úspornost, budova bude pečlivě zateplena, každý byt si bude topit a ohřívat TUV sám vlastním plynovým kondenzačním kotlem, každý byt si zaplatí jen to, co skutečně protopí – provozní náklady budou malé. V malém bytovém domě budou i malé měsíční poplatky na provoz, žádné platby za ostrahu, úklid, výtahy apd…
Dispozice bytu je praktická, na vnitřní užitné ploše cca 50m2 se nachází byt 3+kk, který je vhodné zařídit drobným nábytkem typu Ikea a vestavěnými skříněmi na míru třeba až ke stropu - světlá výška místností 2,7m
- vstupní předsíň cca 2m2
- koupelna cca 4m2 (sprchový kout, umyvadlo, závěsné WC, plynový kotel, místo pro pračku)
- obývací pokoj cca 22m2 s kuchyňským koutem 2 okna
- samostatný pokoj cca 12m2 okno na jih
- samostatný pokojíček cca 11,5m2 okno na jih
- uzamykatelná komora cca 5,5m2 u parkovacích míst
Orientace oken je také praktická, pokoje mají okna na jih, obývací pokoj s kk má 2 okna buď na východ nebo na západ, koupelna je s oknem na sever, vstup do bytu od severu. Okna na 3 světové strany zajistí dobrou větratelnost bytu. Předpokládá se, že v obytných místnostech budou instalovány prosklené posuvné dveře, které zajistí lepší využitelnost prostoru.
Velkou výhodou je blízkost přírody, k objevování je toho tu opravdu hodně na výběr - jen kousek od domu jsou vstupy do lesa navazujícího na oblast Přírodní rezervace Klapice, za ní na Národní přírodní památku Černá rokle a Přírodní rezervaci Staňkovka. Dále Přírodní rezervace Radotínské údolí a přírodní rezervace Radotínské skály a další... Lesy lze z Radotína po cestách jít až např. na Karlštejn.
V Radotíně najdeme kompletní stále se vylepšující občanskou vybavenost, řadu obchodů - Billa, Albert, Penny Market. Dále zdravotní středisko, školky, ZŠ, ZUŠ, gymnázium, sportovní halu, nový krytý plavecký bazén a přírodní vyhledávaný biotop, za řekou golfové hřiště, různá sportoviště, restaurace atd….
Dopravní obslužnost výborná – nedaleko domu zastávky BUSy 248, 309, 313, pod kopcem zastávka BUS 244 na metro B
Na metro se z Radotína jezdí nejvíce příměstským vlakem PID, metro B Smíchovské nádraží cca 9min, metro C Hlavní nádraží cca 16min.
Z bytu z Radotína je rychlé napojení autem na dálniční okruh buď Radotínským údolím u Lochkova, nebo přes Třebotov na Ořechu.
Byty jsou ve fází dokončovacích stavebních prací, staví menší stavební firma a developer s desítkami let zkušeností ve výstavbě bydlení.
Byty budou k nastěhování cca od července 2026.
Bližší informace u Ing. Romany Moravcové
| Cena: | 9 700 000 Kč |
| Dispozice/podlahová plocha: | 3+kk/55 m² |
| Číslo zakázky: | REALITYMIX-94072 |
Podrobné informace
- Bezbariérový byt: ano
- Dispozice bytu: 3+kk
- Číslo podlaží v domě: 2
- Počet podlaží objektu: 3
- Celková podlahová plocha: 55 m²
- Druh objektu: skeletová
- Stav objektu: novostavba
- Stáří objektu: 2026
- Vlastnictví: osobní
- Výška stropu: 2 m
- Umístění objektu: klidná část obce
- Elektřina: Elektro - 400 V
- Voda: Voda - dálkový vodovod
- Plyn: Plynovod
- Topení: Ústřední - plynové
- Odpad: Kanalizace
- Energetická náročnost budovy: A - Mimořádně úsporná
- Ukazatel energetické náročnosti budovy: 64 kWh/m²
- Energetický ukazatel podle vyhlášky: č. 264/2020 Sb.
Právní rádce
-
Detail
V tomto článku shrneme nejdůležitější věci, které byste si měli promyslet, pokud se chystáte prodat svou nemovitost a chcete, abyste s kupujícím nemusel následně řešit vzniklé problémy.
Jako prodávající nesete rizika spojená nejen se samotným obchodem, ale i se stavem nemovitosti v době prodeje a pro minimalizaci rizik, je dobré se zamyslet nad uvedenými oblastmi.
-
Detail
Realitní makléř má své nezastupitelné místo v realitním obchodu. Realitním makléřem nemyslím nevzdělané jelito, které absolvovalo dvoudenní školení a ví, jak se nahraje inzerát na inzertní portál.
Realitním makléřem, který se Vám skutečně vyplatí, je zkušený profesionál, který je schopen Vám dobře poradit jak prodat za co nejvíc a s nejmenším rizikem a hlavně je Vás schopen obratně provést celým realitním obchodem.
Prodáváte nemovitost a potřebujete zjistit její reálnou hodnotu?
Zjistit reálnou cenuVývoj průměrné ceny za m2 v lokalitě Praha 5
Prodáváte nemovitost a potřebujete zjistit její reálnou hodnotu?
Zjistit reálnou cenuMapa
Podobné nemovitosti
Prodej bytu, 4+kk, 109 m²
náměstí Osvoboditelů, Praha 16, Radotín
14 715 300 Kč
Prodej bytu, 4+kk, 102 m²
náměstí Osvoboditelů, Praha 16, Radotín
16 232 100 Kč
Prodej bytu, 5+kk, 536 m²
Zderazská, Praha 16, Radotín
39 990 000 Kč
Prodej bytu, 3+kk, 79 m²
náměstí Osvoboditelů, Praha 16, Radotín
11 875 200 Kč