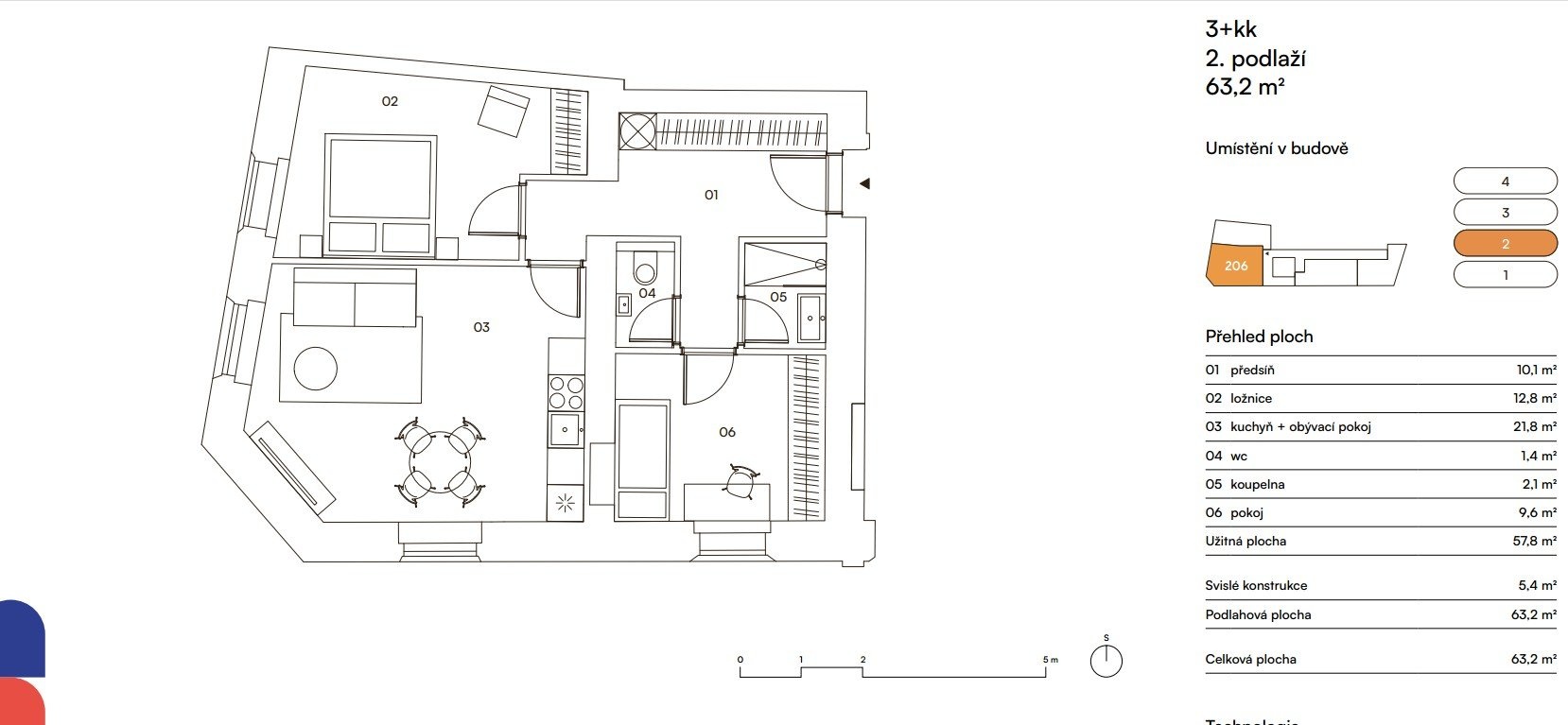
Prodej bytu, 3+kk, 63 m²
Boleslavova, Praha 4, Nusle
12 500 000 KčProdej bytu, 3+kk, 63 m²
Boleslavova, Praha 4, Nusle
Prodej bytu 3+kk 58 m², Praha - Nusle
Jednotka je umístněná v přízemí bytové domu a skládá se z:
- vstupní hala s vestavnou skříní
- koupelna
- hlavní obytná místnost s kuchyňskou linkou vybavenou všemi spotřebiči
- ložnice s vestavnou skříní
- druhá ložnice s vestavnou skříní
Ke standardu patří kuchyně na míru, kvalitní LVT podlaha s dekorem i vlastnostmi dřeva, velkoformátová dlažba a obklady kombinované s mozaikou v neutrálních zemitých tónech, sanita Laufen a Kartell by Laufen, chromované baterie Grohe Essence včetně podomítkové, vstupní dveře vyrobené truhlářem na zakázku.
- rekuperace
- každá obytná místnost disponuje samostatně regulovaným
elektrickým podlahovým vytápěním
- centrální vypínač světel
- dřevěná okna
Sklep není. Parkování modré zóny.
Lokalita:
Nejbližší tramvajová zastávka se nachází hned pod parkem Fidlovačka, jen 200 metrů od projektu. Během několika minut se svezete na náplavku k Vltavě i do úplného centra Prahy. Za 7 minut dojdete na stanici metra Vyšehrad a stejně rychle se autem napojíte na městskou dopravní tepnu. Cestování v blízké době zpříjemní plánovaná výstavba nové linky metra D. Milovníky aktivního životního stylu potěší cyklostezka, která vás zavede na trasy po celém městě.
| Cena: | 12 500 000 Kč |
| Dispozice/podlahová plocha: | 3+kk/63 m² |
| Číslo zakázky: | REALITYMIX-00217 |
Podrobné informace
- Dispozice bytu: 3+kk
- Číslo podlaží v domě: 1
- Počet podlaží objektu: 3
- Celková podlahová plocha: 63 m²
- Druh objektu: cihlová
- Stav objektu: po rekonstrukci
- Vlastnictví: osobní
- Vybaveno: ano
- Umístění objektu: klidná část obce
- Energetická náročnost budovy: G - Mimořádně nehospodárná
Právní rádce
-
Detail
V tomto článku shrneme nejdůležitější věci, které byste si měli promyslet, pokud se chystáte prodat svou nemovitost a chcete, abyste s kupujícím nemusel následně řešit vzniklé problémy.
Jako prodávající nesete rizika spojená nejen se samotným obchodem, ale i se stavem nemovitosti v době prodeje a pro minimalizaci rizik, je dobré se zamyslet nad uvedenými oblastmi.
-
Detail
Realitní makléř má své nezastupitelné místo v realitním obchodu. Realitním makléřem nemyslím nevzdělané jelito, které absolvovalo dvoudenní školení a ví, jak se nahraje inzerát na inzertní portál.
Realitním makléřem, který se Vám skutečně vyplatí, je zkušený profesionál, který je schopen Vám dobře poradit jak prodat za co nejvíc a s nejmenším rizikem a hlavně je Vás schopen obratně provést celým realitním obchodem.