Prodej bytu, 3+kk, 101 m²
Běhounkova, Praha 13, Stodůlky
10 550 000 KčProdej bytu, 3+kk, 101 m²
Běhounkova, Praha 13, Stodůlky
Prodej bytu 3+kk , 91 m2
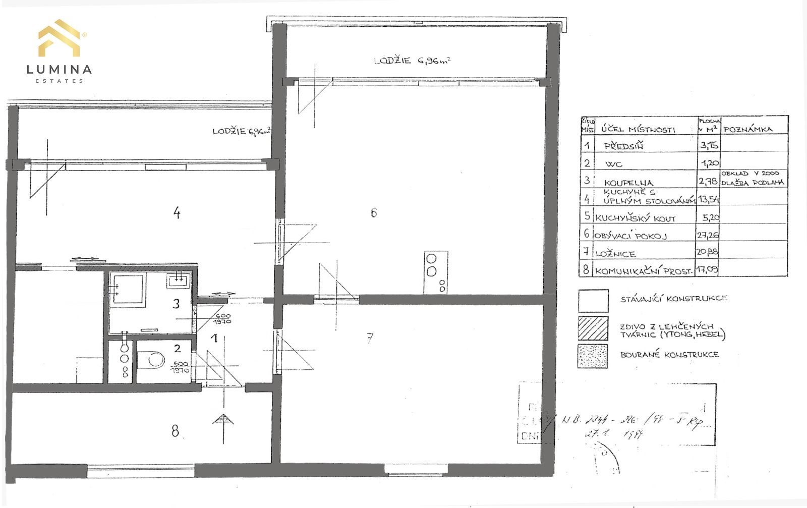
Tento byt, o celkové užitné ploše 91 m², zahrnuje životní prostor 76 m² a je doplněný o dva balkony o velikosti 14,92 m, které jsou opatřeny sítěmi proti holubům, s krásným výhledem na Prahu. Chodba vedoucí od výtahu je pod bezpečnostními dveřmi uzavřena pro dva byty, tzv. komunikační prostor o výměře 17 m2 a komoru náležící k bytové jednotce o výměře 5 m².
V přízemí domu se nachází recepce a zajišťuje pohodlný a bezpečný chod celého objektu spojeno s ochranou. Dům prošel kompletní revitalizací – nové vstupy, schránky, okna, zateplená fasáda, modernizované výtahy a zateplení střechy. Budova se nachází v lokalitě s veřejným vodovodem a kanalizací a vytápění je zajištěno centrálně. Disponuje 4 výtahy: dva osobní a dva jsou nákladové.
S umístěním v jedenáctém patře si budete moci vychutnávat panoramatický výhled na jihovýchod, což přináší bytu mnoho denního světla a útulnou atmosféru. Byt je ve stavu označeném jako velmi dobrý, což znamená, že je ihned připraven k nastěhování a dalšímu využívání. V bytě je již instalovaná moderní kuchyň s elektrickým sporákem, mikrovlnnou troubou, samostatně stojící lednicí, elektrickou troubou, digestoří, myčkou a pračkou. Tato nabídka je zajímavá pro ty, kteří hledají komfort městského bydlení spolu s výborným dopravním spojením a infrastrukturou.
Možnost financování hypotékou a přítomností recepce v budově, tento byt splňuje potřeby moderního bydlení. Navíc, stát se majitelem tohoto bytu je velmi jednoduché, jelikož je k dispozici s osobním vlastnictvím. Celková kupní cena je stanovena na 10 550 000 Kč.
Byt se nachází v části města s dobrou dostupností městské hromadné dopravy, což zajišťuje snadný přístup do různých částí Prahy. Parkování je možné přímo na ulici. Dostupnost 5 min.metro Hůrka, 10 min. Centrální park a Prokopské údolí. Tato lokalita nabízí vše potřebné pro pohodlné bydlení od obchodů, přes školy, zdravotnická zařízení, až po zelené parky a relaxační zóny.
Nechejte se očarovat tímto nádherným domovem, který čeká, až mu dáte osobní dotek a stane se vaším vysněným bydlením. Pro více informací nebo pro domluvení prohlídky tohoto bytu neváhejte kontaktovat makléřku Zuzku.
| Cena: | 10 550 000 Kč |
| Datum k nastěhování: | 08.01.2026 |
| Dispozice/podlahová plocha: | 3+kk/101 m² |
| Číslo zakázky: | REALITYMIX-972249 |
Podrobné informace
- Dispozice bytu: 3+kk
- Číslo podlaží v domě: 12
- Počet podlaží objektu: 12
- Celková podlahová plocha: 101 m²
- Druh objektu: panelová
- Stav objektu: dobrý
- Vlastnictví: osobní
- Balkon: 14 m²
- Lodžie: 15 m²
- Sklep: 5 m²
- Doprava: MHD
- Elektřina: Elektro - 230 V
- Voda: Zdroj pro celý objekt, Voda - dálkový vodovod
- Odpad: Kanalizace
- Energetická náročnost budovy: C - Vyhovující
Právní rádce
-
Detail
V tomto článku shrneme nejdůležitější věci, které byste si měli promyslet, pokud se chystáte prodat svou nemovitost a chcete, abyste s kupujícím nemusel následně řešit vzniklé problémy.
Jako prodávající nesete rizika spojená nejen se samotným obchodem, ale i se stavem nemovitosti v době prodeje a pro minimalizaci rizik, je dobré se zamyslet nad uvedenými oblastmi.
-
Detail
Realitní makléř má své nezastupitelné místo v realitním obchodu. Realitním makléřem nemyslím nevzdělané jelito, které absolvovalo dvoudenní školení a ví, jak se nahraje inzerát na inzertní portál.
Realitním makléřem, který se Vám skutečně vyplatí, je zkušený profesionál, který je schopen Vám dobře poradit jak prodat za co nejvíc a s nejmenším rizikem a hlavně je Vás schopen obratně provést celým realitním obchodem.