Prodej - komerční objekt, výroba, 275 m²
K Měcholupům, Praha 15, Horní Měcholupy
700 000 KčProdej - komerční objekt, výroba, 275 m²
K Měcholupům, Praha 15, Horní Měcholupy
Prodej haly, 275 m², Praha - Horní Měcholupy
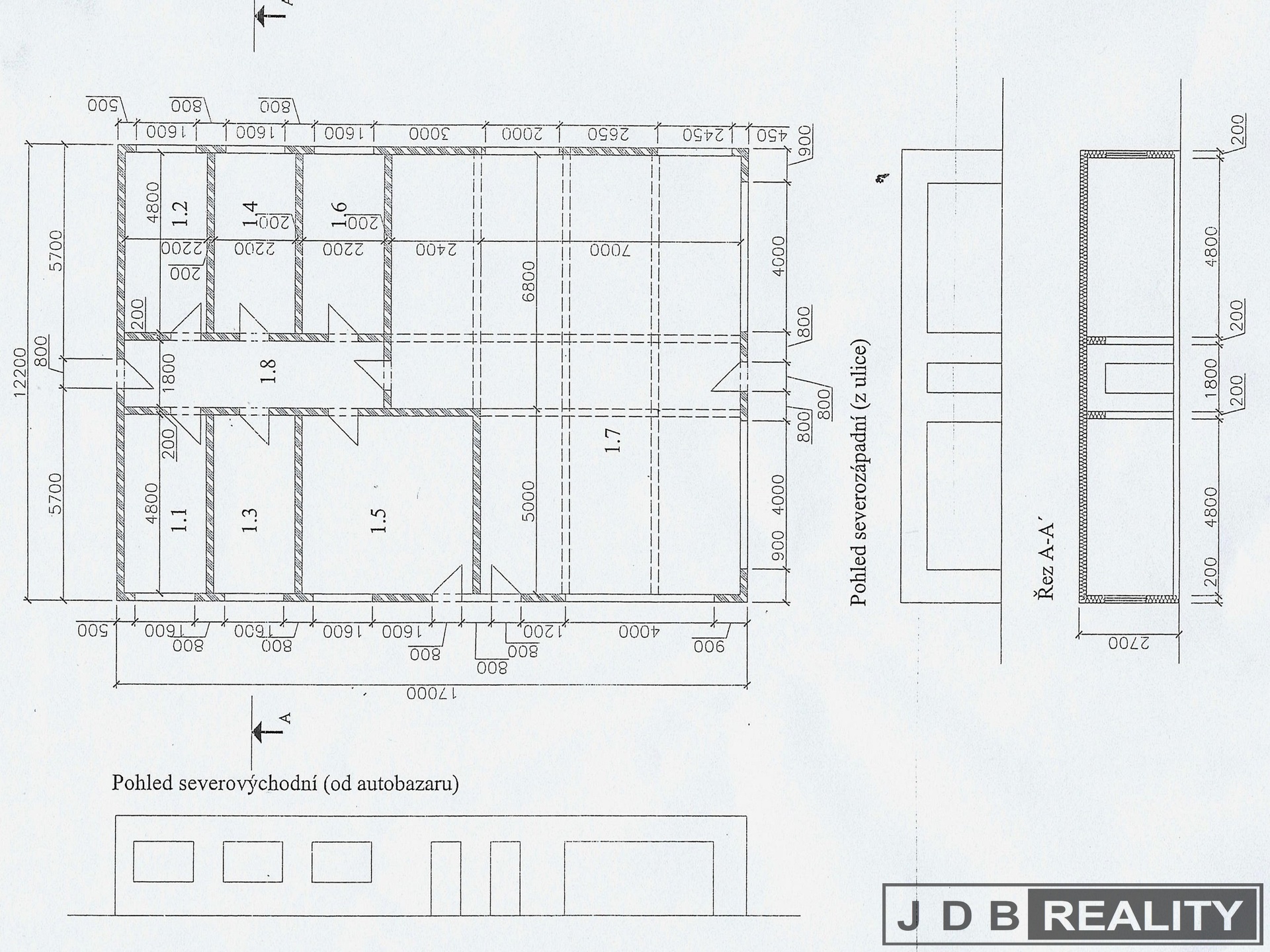
Jedná se o zateplenou ocelovou halu, která je opláštěná panely Kingspan o zastavěné ploše 275 m2 a rozměrech zhruba 12,5 x 22 m se dvěma vjezdy o šířce 3,5 m a výšce 3,5 m, umožňující snadnou nakládku a vykládku materiálu nebo zboží. Sedlové zastřešení haly je provedeno z FeZn plechu, hala je opatřena okapy pro odvod dešťové vody a vnějším osvětlením. Po obvodu haly je dostatečné množství oken, takže ve vnitřních prostorách je dostatek denního světla. Prostory jsou vytápěny kotlem na tuhá paliva, který je umístěn v samostatné místnosti a je napojen na velké množství radiátorů, které jsou rozmístěny po celém obvodu haly. Zateplený strop ve výšce 4,1m je opatřen dostatečným množstvím osvětlení.
V případě zájmu je možné budoucímu vlastníkovi dále přenechat objekt prodejny, který je vystavěn z Unimo buněk a tvoří jej vzorková prodejna, kancelář a zázemí pro zaměstnance. Prodejna se zázemím tvoří celek o velikosti zhruba 200 m2, a nachází se vedle haly.
Po dohodě a v případě zájmu, jsme schopni pro nového vlastníka také zajistit demontáž celého objektu. Následnou montáž si už zajišťuje nový vlastník.
Pozemek, na kterém je momentálně hala umístěna, není možné odkoupit, ani si jej dále pronajmout.
Cena je uvedena bez DPH.
V případě zájmu o bližší informace kontaktujte makléře.
| Cena: | 700 000 Kč |
| Plocha: | 275 m² |
| Číslo zakázky: | REALITYMIX-00204 |
Podrobné informace
- Celková plocha: 275 m²
- Počet podlaží objektu: 1
- Druh objektu: montovaná
- Stav objektu: velmi dobrý
- Účel budovy: Výroba
- Výrobní plocha (m2): 264 m²
- Plocha skladů: 264 m²
- Ostatní: Bezbarierový přístup
- Elektřina: Elektro - 230 V, Elektro - 400 V
- Voda: Voda - dálkový vodovod
- Topení: Ústřední - tuhá paliva
- Odpad: Kanalizace
- Energetická náročnost budovy: G - Mimořádně nehospodárná
Právní rádce
-
Detail
V tomto článku shrneme nejdůležitější věci, které byste si měli promyslet, pokud se chystáte prodat svou nemovitost a chcete, abyste s kupujícím nemusel následně řešit vzniklé problémy.
Jako prodávající nesete rizika spojená nejen se samotným obchodem, ale i se stavem nemovitosti v době prodeje a pro minimalizaci rizik, je dobré se zamyslet nad uvedenými oblastmi.
-
Detail
Realitní makléř má své nezastupitelné místo v realitním obchodu. Realitním makléřem nemyslím nevzdělané jelito, které absolvovalo dvoudenní školení a ví, jak se nahraje inzerát na inzertní portál.
Realitním makléřem, který se Vám skutečně vyplatí, je zkušený profesionál, který je schopen Vám dobře poradit jak prodat za co nejvíc a s nejmenším rizikem a hlavně je Vás schopen obratně provést celým realitním obchodem.