Prodej - malý objekt/garáž
Praha 7
1 700 000 KčProdej houseboatu, 45 m2, Praha 7 - Holešovice
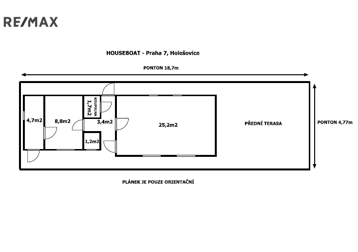
Objekt byl původně tankovací stanicí, nicméně před pár lety započala postupně přestavba na obytný prostor. Houseboat je nyní umístěn v přístavu v Praze 7 - Holešovicích. Užitná plocha je 45 m2 a v současné době tvoří dispozici velká obytná místnost o výměře 25,2 m2, menší pokoj o výměře 8,8 m2, technická místnost o výměře 4,7 m2, toaleta se sociálním zařízením o výměře 1,7 m2, komora o výměře 1,2 m2 a chodba o výměře 3,4 m2. Dispozici a výměru místností lze v rámci úprav a dokončení měnit, do původního objektu byla osazena okna, ale i jejich umístění lze jednoduše přizpůsobit. Původní tloušťka plechu byla 1 cm, před samotným prodejem bude ještě aktuální tloušťka zkontrolována, aby byla splněna podmínka pro umístění na vodě (tloušťka musí být 3 mm).
Samotná obytná část stojí na železném pontonu o rozměrech 18,7 m x 4,5 m a celkově je tak výměra houseboatu téměř 85 m2. V neobytné části (přední terase) je možné vybudovat posezení nebo třeba i zapuštěný malý bazén či vířivku.
V rámci obytné části byla rozvedena elektřina, připraven odpad a rozvody vody. V podpalubím prostoru jsou umístěny 3 nádrže na vodu, každá o objemu 1000 litrů. Další je v současné době umístěna na střeše, ale i tuto plochu (terasu) je možné nechat přebudovat k dalšímu využití (posezení, vířivka, případně prostor pro spaní či umístění solárních panelů apod.).
Jedná se čistě o obytný houseboat, bez motoru, pro případný přesun v rámci lodní přepravy je nutné využít odtah.
S koupí houseboatu je spojena i možnost přepisu kotvícího místa, jehož pronájem stojí měsíčně 3.000 Kč + DPH.
V případě zájmu je možné budoucímu majiteli zajistit návrh designu interiéru od oceňovaného architektonického studia.
Pokud hledáte netradiční způsob bydlení či rekreace a láká Vás život na vodě či Váš život směřuje nezávislým a alternativním směrem, může být pro Vás tento typ bydlení tím pravým.
Pro domluvení prohlídky či v případě dalších dotazů mne neváhejte kontaktovat.
Prodávající si vyhrazuje právo vybrat kupujícího na základě jím zvolených kritérií.
| Cena: | 1 700 000 Kč |
| Poznámka: | včetně provize a právního servisu |
| Číslo zakázky: | REALITYMIX-376544 |
Podrobné informace
- Druh objektu: smíšená
- Stav objektu: dobrý
- Umístění objektu: klidná část obce
- Elektřina: Elektro - 230 V
- Energetický ukazatel podle vyhlášky: č. 264/2020 Sb.
Právní rádce
-
Detail
V tomto článku shrneme nejdůležitější věci, které byste si měli promyslet, pokud se chystáte prodat svou nemovitost a chcete, abyste s kupujícím nemusel následně řešit vzniklé problémy.
Jako prodávající nesete rizika spojená nejen se samotným obchodem, ale i se stavem nemovitosti v době prodeje a pro minimalizaci rizik, je dobré se zamyslet nad uvedenými oblastmi.
-
Detail
Realitní makléř má své nezastupitelné místo v realitním obchodu. Realitním makléřem nemyslím nevzdělané jelito, které absolvovalo dvoudenní školení a ví, jak se nahraje inzerát na inzertní portál.
Realitním makléřem, který se Vám skutečně vyplatí, je zkušený profesionál, který je schopen Vám dobře poradit jak prodat za co nejvíc a s nejmenším rizikem a hlavně je Vás schopen obratně provést celým realitním obchodem.