Prodej - kanceláře, 119 m²
Kolmanova, Praha 12, Modřany
12 500 000 KčProdej - kanceláře, 119 m²
Kolmanova, Praha 12, Modřany
Prodej kanceláře 119 m², Praha - Modřany
Modřany procházejí dynamickou transformací – lokalita se mění v moderní městskou čtvrť s vysokou poptávkou po službách a občanské vybavenosti. Nově budované rezidenční projekty přinášejí tisíce nových obyvatel, což vytváří stabilní zákaznickou základnu a silný potenciál pro dlouhodobě prosperující podnikání.
Komerční prostor v Modřanském cukrovaru představuje bezpečné a perspektivní uložení kapitálu. Oblast prokazatelně roste v hodnotě díky:
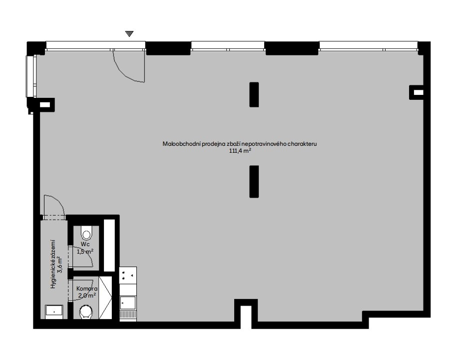
Prostor se nachází v přízemí novostavby.
Nabízí: velké výkladce orientované do frekventované pěší zóny,
možnost dispozičního přizpůsobení podle účelu využití,
moderní technologie a energetickou efektivitu.
| Cena: | 12 500 000 Kč |
| Číslo zakázky: | REALITYMIX-MOCU 2 NC21109 |
Podrobné informace
- Plocha kanceláří: 119 m²
- Druh objektu: skeletová
- Stav objektu: novostavba
- Druh prostor: Kanceláře
- Ostatní: Garáž, Parkoviště
- Elektřina: Elektro - 120 V
- Voda: Voda - dálkový vodovod
- Plyn: Plynovod
- Odpad: Kanalizace
- Energetická náročnost budovy: A - Mimořádně úsporná
- Ukazatel energetické náročnosti budovy: 48 kWh/m²
- Energetický ukazatel podle vyhlášky: č. 264/2020 Sb.
Právní rádce
-
Detail
V tomto článku shrneme nejdůležitější věci, které byste si měli promyslet, pokud se chystáte prodat svou nemovitost a chcete, abyste s kupujícím nemusel následně řešit vzniklé problémy.
Jako prodávající nesete rizika spojená nejen se samotným obchodem, ale i se stavem nemovitosti v době prodeje a pro minimalizaci rizik, je dobré se zamyslet nad uvedenými oblastmi.
-
Detail
Realitní makléř má své nezastupitelné místo v realitním obchodu. Realitním makléřem nemyslím nevzdělané jelito, které absolvovalo dvoudenní školení a ví, jak se nahraje inzerát na inzertní portál.
Realitním makléřem, který se Vám skutečně vyplatí, je zkušený profesionál, který je schopen Vám dobře poradit jak prodat za co nejvíc a s nejmenším rizikem a hlavně je Vás schopen obratně provést celým realitním obchodem.
Mapa
Podobné nemovitosti
Prodej - skladovací prostor, 26 545 m²
Branišovská, Praha 12, Točná
Cena na vyžádání
Prodej - kanceláře, 96 m²
Československého exilu, Praha 12, Modřany
Cena na vyžádání
Prodej - kanceláře, 132 m²
Československého exilu, Praha 12, Modřany
Cena na vyžádání
Prodej - kanceláře, 440 m²
Pod lesem, Praha 12, Komořany
80 000 000 Kč