Prodej - chata/rekreační objekt, 32 m²
Na Šumavě, Praha 5, Smíchov
1 200 000 KčProdej - chata/rekreační objekt, 32 m²
Na Šumavě, Praha 5, Smíchov
Prodej luxusního mobilního domu 32 m² – ideální pro glamping / investici / rekreaci / bydlení
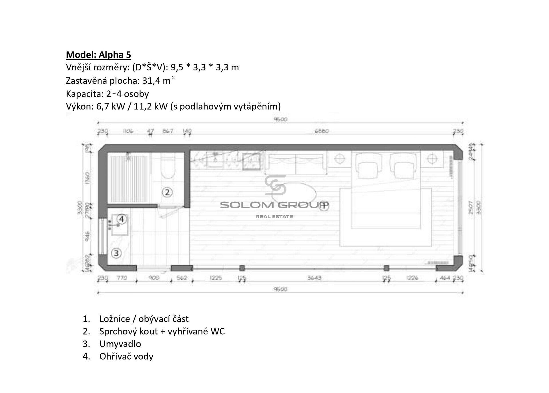
Nabízíme k prodeji dva moderní prémiové mobilní domy (mobilheimy), 32 mve stejném stylu, vhodné pro glamping resort, pronájem, rekreační bydlení nebo investiční projekt. Domy jsou komfortně vybavené a navržené pro celoroční využití – stačí připravit místo, napojení a můžete fungovat.
Oba mobilheimy mají panoramatickou střechu (pro maximální světlo a „wow efekt“), podlahové vytápění, klimatizaci, elektrické závěsy a moderní ovládání prvků domu. Vstup je řešený otevíráním zámku na kód nebo kartu. U jednoho domu je navíc u vybraného okna místo závěsu instalované projekční plátno – ideální na večerní promítání (glamping zážitek pro hosty).
Součástí je kompletní zázemí: ložnice, koupelna se sprchou a WC, obytný prostor, připravené rozvody a elektroinstalace. Jeden z domů má navíc balkon, který výrazně zvyšuje atraktivitu pro pronájem.
Základní parametry
2× mobilní dům, kapacita celkem dle typu (1 dům pro 2–4 osoby, 1 dům pro 2 osoby)
Rozměry cca 9–9,5 m délka × 3,3 m šířka, plocha cca 30–32 m² / kus
Hmotnost cca 7–8 tun / kus
Balkon u jednoho z domů
Panoramatická střecha
Podlahové vytápění
Klimatizace
Vařívané WC
Elektrické závěsy
Vstupní zámek na kód nebo kartu
U jednoho domu projekční plátno místo závěsu u okna
Kompletní elektro 220 V + proudový chránič
Připravené rozvody vody a odpadu, koupelna (sprcha, WC, umyvadlo)
* přeprava na standardním návěsu (šířka ≥ 3 m) instalace pomocí jeřábu (doporučeno ≥ 25 t)
* připraveno na napojení vody/kanalizace/elektřiny
* nabízíme možnost pomoci s logistikou a instalací dle domluvy
Zvýhodněná cena při koupi obou domů
| Cena: | 1 200 000 Kč |
| Poznámka: | + DPH |
| Plocha: | 32 m² |
| Číslo zakázky: | REALITYMIX-N01076 |
Podrobné informace
- Celková plocha: 32 m²
- Zastavěná plocha: 32 m²
- Užitná plocha: 32 m²
- Plocha parcely: 1 m²
- Stav objektu: velmi dobrý
- Počet podlaží objektu: 1
- Umístění objektu: samota
- Elektřina: Elektro - 230 V
- Voda: Zdroj pro celý objekt, Voda - dálkový vodovod
Právní rádce
-
Detail
V tomto článku shrneme nejdůležitější věci, které byste si měli promyslet, pokud se chystáte prodat svou nemovitost a chcete, abyste s kupujícím nemusel následně řešit vzniklé problémy.
Jako prodávající nesete rizika spojená nejen se samotným obchodem, ale i se stavem nemovitosti v době prodeje a pro minimalizaci rizik, je dobré se zamyslet nad uvedenými oblastmi.
-
Detail
Realitní makléř má své nezastupitelné místo v realitním obchodu. Realitním makléřem nemyslím nevzdělané jelito, které absolvovalo dvoudenní školení a ví, jak se nahraje inzerát na inzertní portál.
Realitním makléřem, který se Vám skutečně vyplatí, je zkušený profesionál, který je schopen Vám dobře poradit jak prodat za co nejvíc a s nejmenším rizikem a hlavně je Vás schopen obratně provést celým realitním obchodem.