Prodej - obchodní prostor, 230 m²
Jankovcova, Praha 7, Holešovice
10 500 000 KčProdej - obchodní prostor, 230 m²
Jankovcova, Praha 7, Holešovice
Prodej nebytového prostoru 230,38 m2, 45.576,- Kč/m2, 2 vstupy ulice/domu, 2 podlaží, široké využití
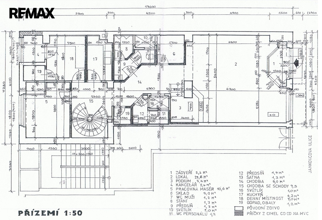
V 1. NP se nachází centrální část vhodná pro pro prodejnu, restauraci, pekařství, masnu, kavárnu, celkové posezení, recepci, přijímání klientů nebo zákazníků, na kterou navazuje chodba s příručními sklady, oddělenými WC a dvěma místnostmi s vanou a sprchovým koutem. Točitým dřevěným schodištěm se sejde do suterénu, kde jsou 2 místnosti a volný prostor 90 m2 vhodný ke cvičení, skladování (lze zajistit stálé klima), případně dalšímu posezení. V suterénu lze využít stávající rozvody studené a teplé vody, odpadů a centrálního vytápění, čímž lze zajistit sucho a celkově příznivé klima v celých spodních prostorech.
Prostor je aktuálně vybavený a zařízený podle fotografií a jeho budoucí využití je velmi široké. Může zde pokračovat noční klub, zajistíme nájemce, noční nebo denní bar, kavárna, pekárna, cukrárna, vinárna se s klením prostorem, případně zážitková gastronomie studené i teplé kuchyně. Dále se prostory mohou přeměnit v jakoukoliv prodejnu, opravnu, nebo výdejnu internetového obchodu se skladovým zázemím. Ve svatební, krejčovský, masážní nebo kosmetický salon, sídlo firmy, kancelářské a prezentační prostory, atd.
Nebytový prostor se nachází v přízemí a suterénu cihlového domu původní činžovní zástavby v ulici Jankovcova, nedaleko křižovatky ul. Dělnická a Libeňského mostu, s vynikající dostupností do centra Prahy a na metro C. V okolí je velké množství kancelářský budov, rezidenční nové i původní bytové zástavby.
Podrobnější informace a termín prohlídky lze získat a sjednat u makléře zakázky.
| Cena: | 10 500 000 Kč |
| Poznámka: | Kupující neplatí provizi RK, cena je vč. provize RK a právního servisu. |
| Datum k nastěhování: | 22.09.2023 |
| Číslo zakázky: | REALITYMIX-333212 |
Podrobné informace
- Plocha kanceláří: 230 m²
- Druh objektu: cihlová
- Stav objektu: velmi dobrý
- Druh prostor: Obchodní
- Doprava: MHD
- Komunikace: asfaltová
- Elektřina: Elektro - 230 V, Elektro - 380 V
- Voda: Voda - dálkový vodovod
- Telekomunikace: Telefon, Internet
- Plyn: Plynovod
- Topení: Ústřední - dálkové
- Odpad: Kanalizace
- Energetická náročnost budovy: F - Velmi nehospodárná
- Ukazatel energetické náročnosti budovy: 240 kWh/m²
- Energetický ukazatel podle vyhlášky: č. 264/2020 Sb.
Právní rádce
-
Detail
V tomto článku shrneme nejdůležitější věci, které byste si měli promyslet, pokud se chystáte prodat svou nemovitost a chcete, abyste s kupujícím nemusel následně řešit vzniklé problémy.
Jako prodávající nesete rizika spojená nejen se samotným obchodem, ale i se stavem nemovitosti v době prodeje a pro minimalizaci rizik, je dobré se zamyslet nad uvedenými oblastmi.
-
Detail
Realitní makléř má své nezastupitelné místo v realitním obchodu. Realitním makléřem nemyslím nevzdělané jelito, které absolvovalo dvoudenní školení a ví, jak se nahraje inzerát na inzertní portál.
Realitním makléřem, který se Vám skutečně vyplatí, je zkušený profesionál, který je schopen Vám dobře poradit jak prodat za co nejvíc a s nejmenším rizikem a hlavně je Vás schopen obratně provést celým realitním obchodem.
Mapa
Podobné nemovitosti
Prodej - obchodní prostor, 136 m²
Jankovcova, Praha 7, Holešovice
7 950 000 Kč
Prodej - obchodní prostor, 136 m²
Jankovcova, Praha 7, Holešovice
7 950 000 Kč
Prodej - obchodní prostor, 65 m²
Kamenická, Praha 7, Holešovice
2 999 000 Kč
Prodej - obchodní prostor, 213 m²
Heřmanova, Praha 7, Holešovice
20 424 000 Kč