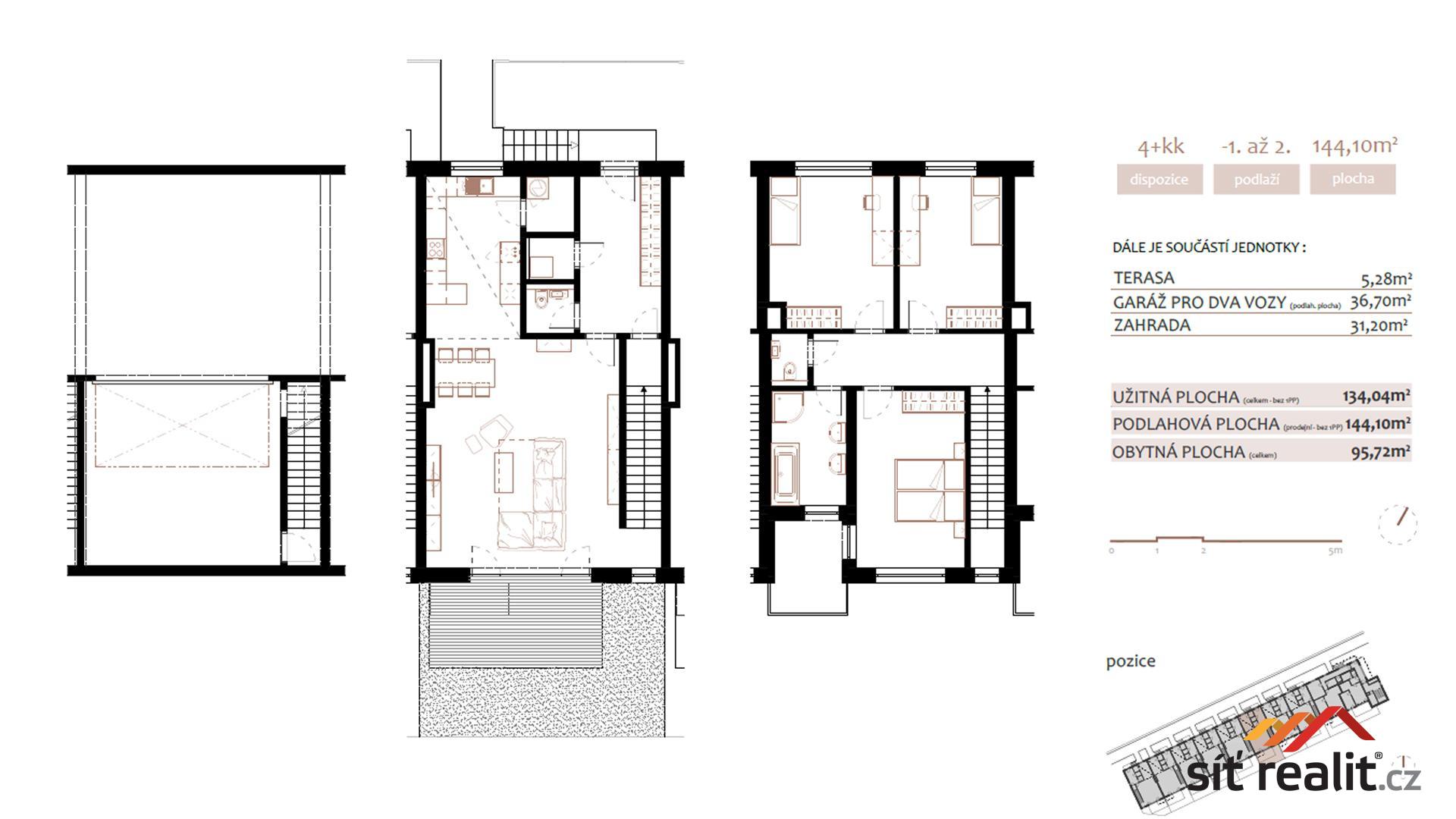
Prodej bytu, 4+kk, 212 m²
Olšinská, Praha 14, Hostavice
17 480 000 KčProdej bytu, 4+kk, 212 m²
Olšinská, Praha 14, Hostavice
Prodej novostavby 4+kk, 180 m2, Praha 9 - Jahodnice, 2x garáž, terasa, balkon, zahrada
| Cena: | 17 480 000 Kč |
| Poznámka: | prodej napřímo od developera, u této nabídky neplatíte provizi RK! Cena platná do 31.3.2026. |
| Dispozice/podlahová plocha: | 4+kk/212 m² |
| Číslo zakázky: | REALITYMIX-2603050003 |
Podrobné informace
- Dispozice bytu: 4+kk
- Číslo podlaží v domě: 1
- Počet podlaží objektu: 2
- Užitná plocha: 180 m²
- Celková podlahová plocha: 212 m²
- Druh objektu: cihlová
- Stav objektu: novostavba
- Vlastnictví: osobní
- Sklep: 6 m²
- Terasa: 6 m²
- Umístění objektu: klidná část obce
- Elektřina: Elektro - 400 V
- Topení: Jiné
- Energetická náročnost budovy: B - Úsporná
Právní rádce
-
Detail
V tomto článku shrneme nejdůležitější věci, které byste si měli promyslet, pokud se chystáte prodat svou nemovitost a chcete, abyste s kupujícím nemusel následně řešit vzniklé problémy.
Jako prodávající nesete rizika spojená nejen se samotným obchodem, ale i se stavem nemovitosti v době prodeje a pro minimalizaci rizik, je dobré se zamyslet nad uvedenými oblastmi.
-
Detail
Realitní makléř má své nezastupitelné místo v realitním obchodu. Realitním makléřem nemyslím nevzdělané jelito, které absolvovalo dvoudenní školení a ví, jak se nahraje inzerát na inzertní portál.
Realitním makléřem, který se Vám skutečně vyplatí, je zkušený profesionál, který je schopen Vám dobře poradit jak prodat za co nejvíc a s nejmenším rizikem a hlavně je Vás schopen obratně provést celým realitním obchodem.