Prodej bytu, 2+1, 60 m²
Jakutská, Praha 10, Vršovice
RezervovánoProdej bytu, 2+1, 60 m²
Jakutská, Praha 10, Vršovice
Prodej světlého bytu 2+1 (60m²) v klidném srdci Vršovic
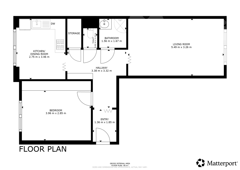
Po vstupu do bytu vás přivítá prostorná předsíň, ze které se vchází do jednotlivých místností. Po levé straně se nachází ložnice, zatímco hlavní obytnou část tvoří světlý obývací pokoj s přímým vstupem na útulný balkonek. Velkou předností bytu je moderně zrekonstruovaná a velmi příjemná kuchyně, do které se bez problémů vejde i plnohodnotný jídelní stůl. Koupelna i samostatná toaleta prošly kompletní rekonstrukcí a jsou ve skvělém stavu, přičemž praktičnost celého prostoru doplňuje samostatná komora přístupná z chodby.
Dům je situován v jednosměrné ulici Jakutská, což obyvatelům zajišťuje skutečný klid a minimální dopravní provoz přímo pod okny. Rodiny s dětmi jistě ocení, že se přímo naproti domu nachází krásná mateřská škola.
Tato lokalita nabízí perfektní rovnováhu mezi občanskou vybaveností a přírodou, protože v blízkém okolí najdete jak nákupní centrum Eden, tak i rozlehlé Havlíčkovy sady ideální k relaxaci. Vršovice jsou dnes vyhlášenou čtvrtí plnou stylových kaváren a kulturního vyžití, přičemž spojení do centra města je díky husté síti MHD rychlé a pohodlné.
Tento byt představuje ideální volbu pro ty, kteří hledají bydlení s duší v tradičním cihlovém domě a nechtějí se starat o náročné opravy koupelny či kuchyně. Díky své výjimečné poloze a výbornému stavu interiérů je nemovitost vhodná jak pro vlastní rodinné bydlení, tak i jako bezpečná investice v žádané části Prahy. Přijďte se sami přesvědčit o příjemné atmosféře, kterou tento domov nabízí, a domluvte si prohlídku ještě dnes.
| Cena: | Rezervováno |
| Dispozice/podlahová plocha: | 2+1/60 m² |
| Číslo zakázky: | REALITYMIX-232934 |
Podrobné informace
- Dispozice bytu: 2+1
- Číslo podlaží v domě: 2
- Počet podlaží objektu: 4
- Celková podlahová plocha: 60 m²
- Druh objektu: cihlová
- Stav objektu: velmi dobrý
- Vlastnictví: osobní
- Balkon: 1 m²
- Vybaveno: ano
- Doprava: vlak, dálnice, silnice, MHD, autobus
- Elektřina: Elektro - 230 V
- Voda: Voda - dálkový vodovod
- Telekomunikace: Telefon, Internet
- Topení: Ústřední - dálkové
- Odpad: Kanalizace
- Ostatní rozvody: Kabelová televize, Kabelové rozvody, Ostatní rozvody
- Energetická náročnost budovy: G - Mimořádně nehospodárná
Právní rádce
-
Detail
V tomto článku shrneme nejdůležitější věci, které byste si měli promyslet, pokud se chystáte prodat svou nemovitost a chcete, abyste s kupujícím nemusel následně řešit vzniklé problémy.
Jako prodávající nesete rizika spojená nejen se samotným obchodem, ale i se stavem nemovitosti v době prodeje a pro minimalizaci rizik, je dobré se zamyslet nad uvedenými oblastmi.
-
Detail
Realitní makléř má své nezastupitelné místo v realitním obchodu. Realitním makléřem nemyslím nevzdělané jelito, které absolvovalo dvoudenní školení a ví, jak se nahraje inzerát na inzertní portál.
Realitním makléřem, který se Vám skutečně vyplatí, je zkušený profesionál, který je schopen Vám dobře poradit jak prodat za co nejvíc a s nejmenším rizikem a hlavně je Vás schopen obratně provést celým realitním obchodem.