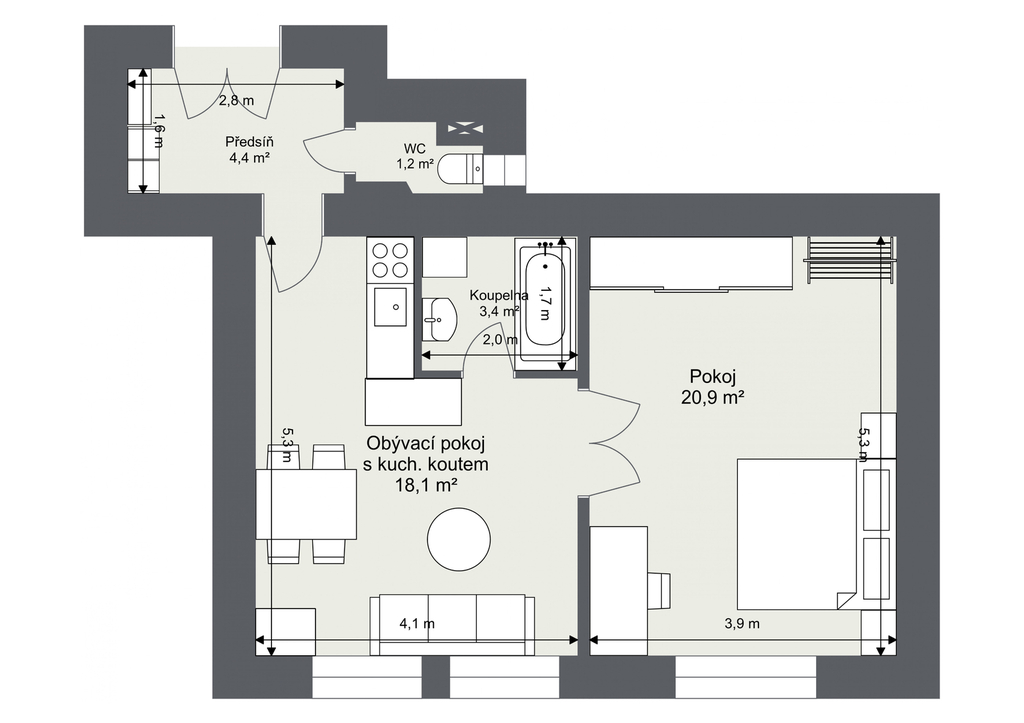
Prodej bytu, 2+kk, 49 m²
Velehradská, Praha 3, Vinohrady
8 500 000 KčProdej bytu, 2+kk, 49 m²
Velehradská, Praha 3, Vinohrady
Prodej světlého bytu 2+kk, osobní vlastnictví, 49m2, =M= Jiřího z Poděbrad
| Cena: | 8 500 000 Kč |
| Dispozice/podlahová plocha: | 2+kk/49 m² |
| Číslo zakázky: | REALITYMIX-0033 |
Podrobné informace
- Dispozice bytu: 2+kk
- Číslo podlaží v domě: 4
- Počet podlaží objektu: 5
- Užitná plocha: 49 m²
- Celková podlahová plocha: 49 m²
- Druh objektu: cihlová
- Stav objektu: velmi dobrý
- Vlastnictví: osobní
- Doprava: vlak, dálnice, silnice, MHD, autobus
- Elektřina: Elektro - 230 V
- Voda: Voda - dálkový vodovod
- Telekomunikace: Internet
- Plyn: Plynovod
- Odpad: Kanalizace
- Ostatní rozvody: Kabelová televize, Kabelové rozvody
- Energetická náročnost budovy: D - Méně úsporná
- Energetický ukazatel podle vyhlášky: č. 78/2013 Sb.
Právní rádce
-
Detail
V tomto článku shrneme nejdůležitější věci, které byste si měli promyslet, pokud se chystáte prodat svou nemovitost a chcete, abyste s kupujícím nemusel následně řešit vzniklé problémy.
Jako prodávající nesete rizika spojená nejen se samotným obchodem, ale i se stavem nemovitosti v době prodeje a pro minimalizaci rizik, je dobré se zamyslet nad uvedenými oblastmi.
-
Detail
Realitní makléř má své nezastupitelné místo v realitním obchodu. Realitním makléřem nemyslím nevzdělané jelito, které absolvovalo dvoudenní školení a ví, jak se nahraje inzerát na inzertní portál.
Realitním makléřem, který se Vám skutečně vyplatí, je zkušený profesionál, který je schopen Vám dobře poradit jak prodat za co nejvíc a s nejmenším rizikem a hlavně je Vás schopen obratně provést celým realitním obchodem.