Prodej bytu, 3+kk, 76 m²
Tupolevova, Praha 18, Letňany
12 235 000 KčProdej bytu, 3+kk, 76 m²
Tupolevova, Praha 18, Letňany
Prodej světlého bytu 3+kk, 76,83 m2, 2 lodžie, garážové stání, Praha 9 - Letňany, ul. Tupolevova
Tento byt vás osloví nejen svou praktičností, ale i atmosférou skutečného domova. Díky orientaci na slunnou jižní stranu je interiér po celý den zalitý přirozeným světlem, což vytváří příjemné a harmonické prostředí pro každodenní život.
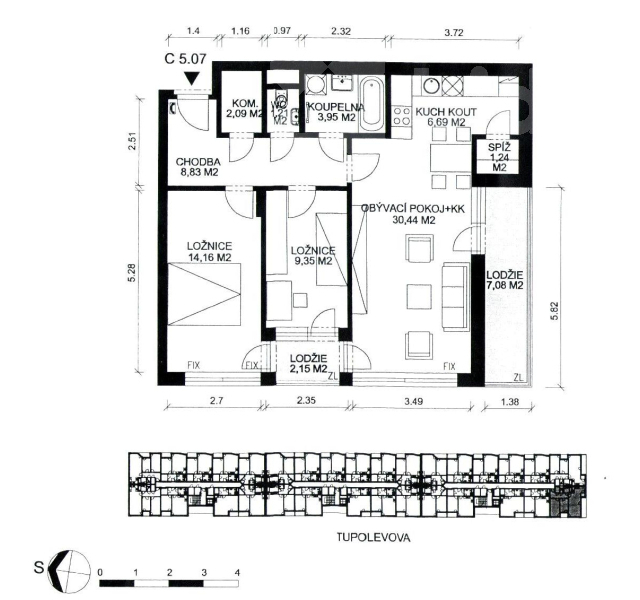
Z prostorného obývacího pokoje s kuchyňským koutem (30,44 m2;) je vstup na velkou lodžii orientovanou na jih - ideální místo pro odpočinek, posezení s přáteli nebo večerní relax.
Druhá lodžie orientovaná na východ nabízí klidná rána se šálkem kávy a výhledem do zeleně.
Byt poskytuje dostatek prostoru pro pohodlné rodinné bydlení i práci z domova. Promyšlená dispozice zajišťuje soukromí jednotlivých členů domácnosti i prostor pro společné chvíle.
Dispozice bytu:
obývací pokoj s kuchyňským koutem - 30,44 m2;
ložnice - 14,16 m2;
pokoj - 9,35 m2;
koupelna - 3,95 m2;
samostatné WC - 1,26 m2;
předsíň - 8,83 m2;
Velkou výhodou jsou také dvě praktické komory (v předsíni a u kuchyně), které zajišťují dostatek úložného prostoru.
Součástí prodeje je také parkovací místo v podzemním garáži, což výrazně zvyšuje komfort bydlení a hodnotu nemovitosti.
Byt se prodává včetně vestavěného nábytku, ostatní vybavení dle dohody.
Lokalita Praha - Letňany nabízí kompletní občanskou vybavenost v docházkové vzdálenosti - školy, školky, obchody, OC Letňany, aquacentrum, metro i dostatek zeleně pro aktivní odpočinek.
Jedná se o ideální volbu jak pro vlastní bydlení, tak i jako výhodnou investici k pronájmu.
Doporučujeme osobní prohlídku.
| Cena: | 12 235 000 Kč |
| Dispozice/podlahová plocha: | 3+kk/76 m² |
| Číslo zakázky: | REALITYMIX-234647 |
Podrobné informace
- Dispozice bytu: 3+kk
- Číslo podlaží v domě: 4
- Počet podlaží objektu: 4
- Celková podlahová plocha: 76 m²
- Druh objektu: cihlová
- Stav objektu: dobrý
- Stáří objektu: 2019
- Vlastnictví: osobní
- Lodžie: 9 m²
- Vybaveno: ano
- Doprava: MHD, autobus
- Elektřina: Elektro - 230 V
- Voda: Voda - dálkový vodovod
- Topení: Ústřední - dálkové
- Odpad: Kanalizace
- Energetická náročnost budovy: C - Vyhovující
Právní rádce
-
Detail
V tomto článku shrneme nejdůležitější věci, které byste si měli promyslet, pokud se chystáte prodat svou nemovitost a chcete, abyste s kupujícím nemusel následně řešit vzniklé problémy.
Jako prodávající nesete rizika spojená nejen se samotným obchodem, ale i se stavem nemovitosti v době prodeje a pro minimalizaci rizik, je dobré se zamyslet nad uvedenými oblastmi.
-
Detail
Realitní makléř má své nezastupitelné místo v realitním obchodu. Realitním makléřem nemyslím nevzdělané jelito, které absolvovalo dvoudenní školení a ví, jak se nahraje inzerát na inzertní portál.
Realitním makléřem, který se Vám skutečně vyplatí, je zkušený profesionál, který je schopen Vám dobře poradit jak prodat za co nejvíc a s nejmenším rizikem a hlavně je Vás schopen obratně provést celým realitním obchodem.