Prodej bytu, 3+1, 77 m²
Na chobotě, Praha 17, Řepy
9 899 000 KčProdej bytu, 3+1, 77 m²
Na chobotě, Praha 17, Řepy
Prodej útulného bytu 3+1 s velkou lodžií - Na Chobotě, Řepy
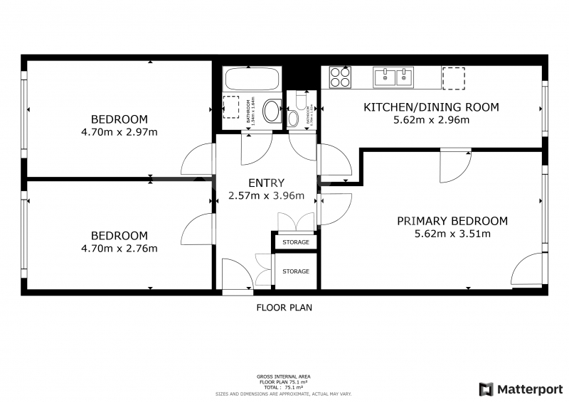
Jedná se o útulný a světlý byt nacházející se ve 3. nadzemním podlaží. Při vstupu vás přivítá prostorná chodba s dostatkem úložného prostoru. Byt dále nabízí dva samostatné pokoje, koupelnu s vanou, samostatnou toaletu s umyvadlem a obývací pokoj. Z obývacího pokoje je přístup na zasklenou lodžii, která se rozkládá přes celou šíři obývacího pokoje a kuchyně, čímž poskytuje ideální prostor pro relaxaci. Kuchyně disponuje jídelním koutem a moderní kuchyňskou linkou s vestavěnými spotřebiči - varná deska, trouba, mikrovlnná trouba a myčka nádobí.
K bytu navíc náleží komora o velikosti přibližně 5m2, nacházející se v 5. nadzemním podlaží.
Výhody bytu:
Velká lodžie
Prostorná kuchyně s jídelním koutem Praktická dispozice bytu.
Klidné bydlení s veškerou občanskou vybaveností v docházkové vzdálenosti.
Uzamykatelná komora
Dopravní dostupnost:
Točna Sídliště Řepy přímo u domu, v blízkosti vlaková zastávka Zličín. Snadné spojení do centra města i okolí. Veřejné parkování v okolí domu zdarma.
Občanská vybavenost:
Skvělé místo pro sportovce a rodiny s dětmi. V okolí domu je dostatek zeleně. Vedle domu se nachází basketbalové hřiště a hned několik hezkých dětských hřišť.
Jen pár minut pěší chůze se nachází sportovní centrum Řepy - plavecký bazén, wellness a fitness centrum, sportovní hala a venkovní sportoviště.
V okolí je několik základních a mateřských škol.
Na nákupy můžete vyrazit do obchodního centra Řepy, v pěší vzdálenosti od domu je také například Lidl, Penny, Globus. A hned ve vedlejším vchodě je večerka.
V případě zájmu je možné byt převzít i se spolehlivými nájemníky.
Z důvodu nedostupnosti PENB ke dni zpracování inzerce uvádíme v souladu s platným zákonem energetický štítek třídy G.
Pro více informací a domluvení prohlídky prosím kontaktujte makléřku.
| Cena: | 9 899 000 Kč |
| Dispozice/podlahová plocha: | 3+1/77 m² |
| Číslo zakázky: | REALITYMIX-234949 |
Podrobné informace
- Dispozice bytu: 3+1
- Číslo podlaží v domě: 3
- Počet podlaží objektu: 1
- Celková podlahová plocha: 77 m²
- Druh objektu: panelová
- Stav objektu: velmi dobrý
- Vlastnictví: osobní
- Doprava: vlak, dálnice, silnice, MHD, autobus
- Elektřina: Elektro - 230 V
- Voda: Voda - dálkový vodovod
- Topení: Ústřední - dálkové
- Odpad: Kanalizace
- Energetická náročnost budovy: G - Mimořádně nehospodárná
Právní rádce
-
Detail
V tomto článku shrneme nejdůležitější věci, které byste si měli promyslet, pokud se chystáte prodat svou nemovitost a chcete, abyste s kupujícím nemusel následně řešit vzniklé problémy.
Jako prodávající nesete rizika spojená nejen se samotným obchodem, ale i se stavem nemovitosti v době prodeje a pro minimalizaci rizik, je dobré se zamyslet nad uvedenými oblastmi.
-
Detail
Realitní makléř má své nezastupitelné místo v realitním obchodu. Realitním makléřem nemyslím nevzdělané jelito, které absolvovalo dvoudenní školení a ví, jak se nahraje inzerát na inzertní portál.
Realitním makléřem, který se Vám skutečně vyplatí, je zkušený profesionál, který je schopen Vám dobře poradit jak prodat za co nejvíc a s nejmenším rizikem a hlavně je Vás schopen obratně provést celým realitním obchodem.