Prodej bytu, 5+kk, 213 m²
Praha 1
Cena na vyžádáníProdej bytu, 5+kk, 213 m²
Praha 1
Prodej výjimečného mezonetového bytu 5+kk na Starém Městě v Praze s terasami
Dům je skvěle udržovaný, s byty v osobním vlastnictví, po rekonstrukci s novou fasádou. Nabízí elegantní společné prostory s empírovou vstupní chodbou, upraveným malým dvorkem a společným dvojsklepem.
Byt zabírá celou horní polovinu domu, která není vidět z ulice. Byl vybudován v polovině devadesátých let a nedávno prošel kompletním redesignem s použitím nejmodernějších a nejkvalitnějších materiálů. Od té doby nebyl trvale užíván, takže nenese významné stopy opotřebování a působí téměř jako nový. Většina nábytku je jeho trvalou součástí, což umožňuje okamžité užívání bez nutných úprav.
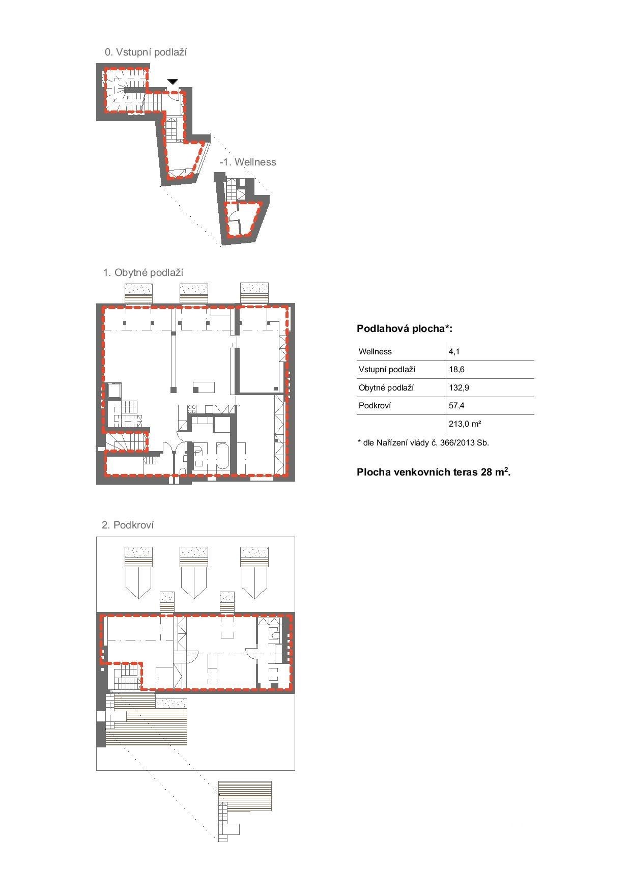
Vstup do bytu je ve 2. patře domu. Předsíň je vybavena vestavěnou skříní na oblečení. Několik schůdků vede k sauně pro dvě osoby, úložnému prostoru pro saunovací potřeby a sprchovacímu koutu. Nad saunou se nachází odpočinkový prostor s prosklenou zdí do dvora, pohodlnými křesly a další velkou vestavěnou skříní. K dispozici je audio systém s reproduktory v tomto prostoru a také v sauně.
Široké schodiště s oknem a zabudovanými skříňkami na boty vede do hlavního a největšího prostoru bytu otevřené obývací haly s kuchyňským koutem. Technická místnost s oknem je vybavena pračkou, plynovým kotlem Vailant a skladovacími prostory. Vedle ní je samostatné WC s oknem pro hosty a velká koupelna se dvěma okny, masážní vanou, sprchovacím koutem, umyvadlem a WC se zabudovaným bidetem. Koupelna je vybavena reproduktory z dalšího audio systému a menší televizí na zdi.
Obývací pokoj má dvě francouzská okna s balkony a malou květinovou zahrádkou. V jedné části je krb obložený bílým mramorem, velké filmové plátno s projektorem na stropě, velká sedačka s křesly a barová skříňka. Kuchyňský kout je kompletně vybaven (myčka, americká lednice, vinotéka, zabudovaný kávovar) a jídelní stůl pro 68 osob.
Z obývacího pokoje vedou dveře do dvou útulných ložnic, z nichž jedna má balkon a druhá velké okno do dvorku. V ložnicích jsou zabudované skříně, knižní police a televize. Druhá ložnice je momentálně využívána jako šatna.
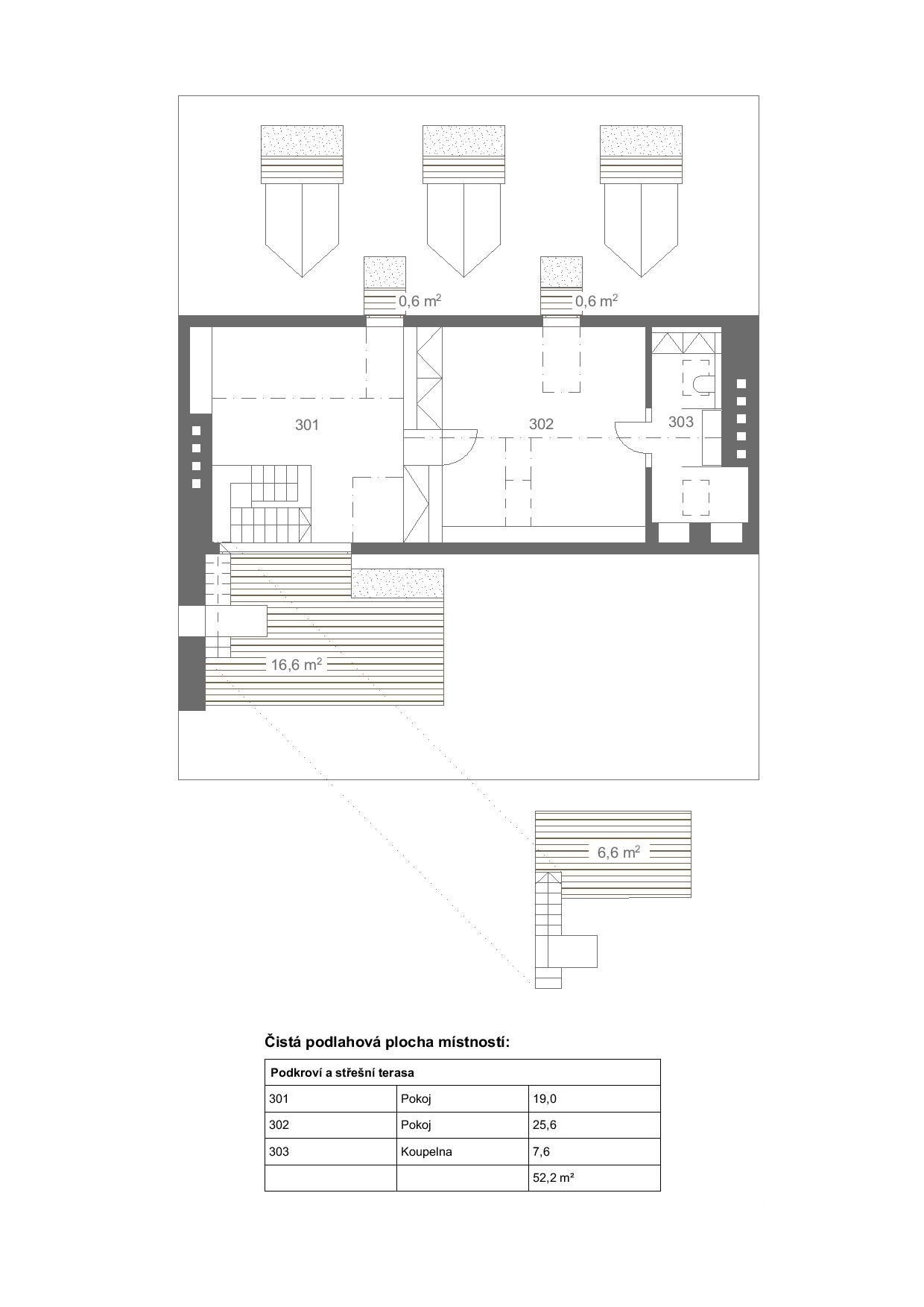
Část obývacího pokoje je otevřena až ke střeše, kde se nachází dva další pokoje. Jeden slouží jako pokoj pro hosty s vlastní koupelnou, druhý jako pracovna s balkonem a vstupem na prostornou terasu s letní sedačkou, zabudovaným kamenným stolem a vzrostlou zelení. Nad touto terasou je další terasa s panoramatickým výhledem na celou starou Prahu.
Tento jedinečný byt v srdci historické Prahy, s neobyčejnou atmosférou a moderním vybavením, nabízí bezpečnou investici s velkou pravděpodobností růstu. Měsíční poplatek SVJ činí 8 055 Kč.
Pro více informací a prohlídku kontaktujte naši realitní kancelář.
| Cena: | Cena na vyžádání |
| Poznámka: | Info v RK |
| Datum k nastěhování: | 24.04.2026 |
| Dispozice/podlahová plocha: | 5+kk/213 m² |
| Číslo zakázky: | REALITYMIX-888175 |
Podrobné informace
- Dispozice bytu: 5+kk
- Číslo podlaží v domě: 3
- Počet podlaží objektu: 3
- Celková podlahová plocha: 213 m²
- Druh objektu: cihlová
- Stav objektu: velmi dobrý
- Vlastnictví: osobní
- Balkon: ano
- Sklep: ano
- Terasa: 28 m²
- Vybaveno: ano
- Voda: Zdroj pro celý objekt, Voda - dálkový vodovod
- Plyn: Plynovod
- Odpad: Kanalizace
- Energetická náročnost budovy: G - Mimořádně nehospodárná
- Popis vybavení: .
Právní rádce
-
Detail
V tomto článku shrneme nejdůležitější věci, které byste si měli promyslet, pokud se chystáte prodat svou nemovitost a chcete, abyste s kupujícím nemusel následně řešit vzniklé problémy.
Jako prodávající nesete rizika spojená nejen se samotným obchodem, ale i se stavem nemovitosti v době prodeje a pro minimalizaci rizik, je dobré se zamyslet nad uvedenými oblastmi.
-
Detail
Realitní makléř má své nezastupitelné místo v realitním obchodu. Realitním makléřem nemyslím nevzdělané jelito, které absolvovalo dvoudenní školení a ví, jak se nahraje inzerát na inzertní portál.
Realitním makléřem, který se Vám skutečně vyplatí, je zkušený profesionál, který je schopen Vám dobře poradit jak prodat za co nejvíc a s nejmenším rizikem a hlavně je Vás schopen obratně provést celým realitním obchodem.