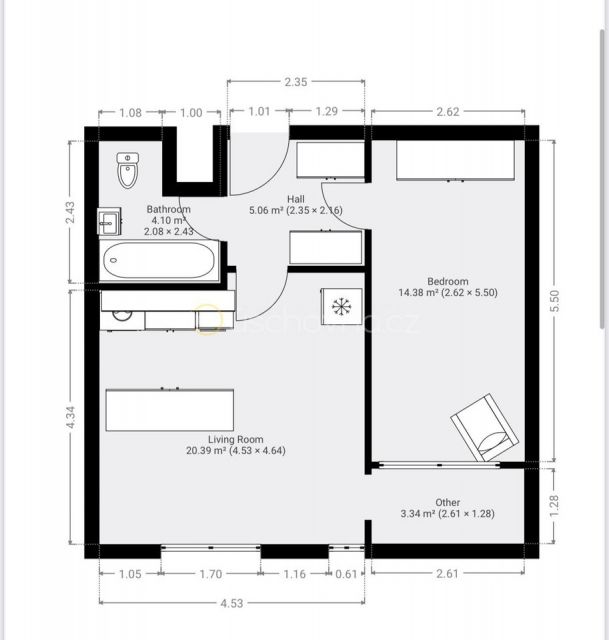
Prodej bytu, 2+kk, 43 m²
Hnězdenská, Praha 8, Troja
7 750 000 KčProdej bytu, 2+kk, 43 m²
Hnězdenská, Praha 8, Troja
Prodej zrekonstruovaného bytu 2+kk (43 m2) s lodžií a garážovém stáním, Praha 8 -Troja, Hnězdenská
| Cena: | 7 750 000 Kč |
| Datum k nastěhování: | 18.12.2025 |
| Dispozice/podlahová plocha: | 2+kk/43 m² |
| Číslo zakázky: | REALITYMIX-7995 |
Podrobné informace
- Dispozice bytu: 2+kk
- Číslo podlaží v domě: 9
- Celková podlahová plocha: 43 m²
- Druh objektu: cihlová
- Stav objektu: velmi dobrý
- Vlastnictví: osobní
- Umístění objektu: klidná část obce
- Doprava: MHD, autobus
- Občanská vybavenost: Škola, Školka, Zdravotnická zařízení, Pošta, Supermarket, Kompletní síť obchodů a služeb
- Elektřina: Elektro - 230 V
- Voda: Voda - dálkový vodovod
- Topení: Jiné
- Odpad: Kanalizace
- Energetická náročnost budovy: B - Úsporná
Právní rádce
-
Detail
V tomto článku shrneme nejdůležitější věci, které byste si měli promyslet, pokud se chystáte prodat svou nemovitost a chcete, abyste s kupujícím nemusel následně řešit vzniklé problémy.
Jako prodávající nesete rizika spojená nejen se samotným obchodem, ale i se stavem nemovitosti v době prodeje a pro minimalizaci rizik, je dobré se zamyslet nad uvedenými oblastmi.
-
Detail
Realitní makléř má své nezastupitelné místo v realitním obchodu. Realitním makléřem nemyslím nevzdělané jelito, které absolvovalo dvoudenní školení a ví, jak se nahraje inzerát na inzertní portál.
Realitním makléřem, který se Vám skutečně vyplatí, je zkušený profesionál, který je schopen Vám dobře poradit jak prodat za co nejvíc a s nejmenším rizikem a hlavně je Vás schopen obratně provést celým realitním obchodem.