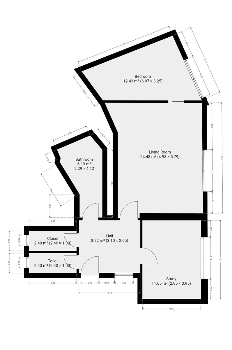
Pronájem bytu, 3+kk, 74 m²
Na Zlatnici, Praha 4, Podolí
29 000 Kč (za měsíc)Pronájem bytu, 3+kk, 74 m²
Na Zlatnici, Praha 4, Podolí
29 000 Kč
(za měsíc)
D
Nevyhovující
Pronájem bytu 3+kk, Na Zlatnici, Podolí, 29000 Kč/měs, 74 m2
K dlouhodobému podnájmu nabízíme krásný byt o dispozici 3+kk v klidné lokalitě Praha 4 - Podolí. Byt o celkové výměře 74 m2 se nachází v 1. patře cihlového domu s výtahem. K bytu patří i komora a uzamykatelná terasa vedle bytu.
Byt se nabízí částečně vybavený. Kuchyně disponuje lednicí s mrazákem, elektrickou troubou s plynovým sporákem a digestoří. Obývací část je zařízena jídelním stolem s 2 židlemi. Součástí ložnice je postel, věšák, noční stolek a lampička. V druhém pokoji najdeme pracovní stůl s židlí. Nábytek je možné po domluvě vyklidit. V koupelně je vana, umyvadlo, zrcadlo a pračka. Toaleta je umístěna samostatně.
Vinylové podlahy, plastová okna, vytápění a ohřev vody plynovým kotlem, přípojka na internet.
V okolí domu najdeme restaurace, kavárny, prodejny potravin, základní a mateřskou školu, dětské hřiště, lékárnu, národní kulturní památku Vyšehrad, městskou zeleň (Park Na Topolce, Park Antonína Engela, Vyšehradské sady, Lumírovy sady, Karlachovy sady), Plavecký stadion Podolí, Žluté lázně (areál se sportovními akcemi a občerstvením, nabízející indoboard, slackline, venkovní šachy, pétanque, beach volejbal, stolní tenis, nohejbal, dětský koutek, půjčovnu koloběžek, šlapadel, lodí, kol a bruslí), Sauny Vltava - Centrum duševního zdraví atd. Jen pár kroků chůze od domu je umístěna autobusová zastávka Doliny (rychlé spojení na stanice metra C - Pražského povstání, Pankrác a Budějovická) a v docházkové vzdálenosti se nachází zastávka tramvaje Podolská vodárna (pár minut jízdy na stanici metra B - Karlovo náměstí a dále do centra).
Energetická třída: D (méně úsporná).
Byt se nabízí částečně vybavený. Kuchyně disponuje lednicí s mrazákem, elektrickou troubou s plynovým sporákem a digestoří. Obývací část je zařízena jídelním stolem s 2 židlemi. Součástí ložnice je postel, věšák, noční stolek a lampička. V druhém pokoji najdeme pracovní stůl s židlí. Nábytek je možné po domluvě vyklidit. V koupelně je vana, umyvadlo, zrcadlo a pračka. Toaleta je umístěna samostatně.
Vinylové podlahy, plastová okna, vytápění a ohřev vody plynovým kotlem, přípojka na internet.
V okolí domu najdeme restaurace, kavárny, prodejny potravin, základní a mateřskou školu, dětské hřiště, lékárnu, národní kulturní památku Vyšehrad, městskou zeleň (Park Na Topolce, Park Antonína Engela, Vyšehradské sady, Lumírovy sady, Karlachovy sady), Plavecký stadion Podolí, Žluté lázně (areál se sportovními akcemi a občerstvením, nabízející indoboard, slackline, venkovní šachy, pétanque, beach volejbal, stolní tenis, nohejbal, dětský koutek, půjčovnu koloběžek, šlapadel, lodí, kol a bruslí), Sauny Vltava - Centrum duševního zdraví atd. Jen pár kroků chůze od domu je umístěna autobusová zastávka Doliny (rychlé spojení na stanice metra C - Pražského povstání, Pankrác a Budějovická) a v docházkové vzdálenosti se nachází zastávka tramvaje Podolská vodárna (pár minut jízdy na stanici metra B - Karlovo náměstí a dále do centra).
Energetická třída: D (méně úsporná).
| Cena: | 29 000 Kč / (za měsíc) |
| Poznámka: | vratná jistota, náklady na bydlení 4 700 Kč, poplatek za podnájem |
| Dispozice/podlahová plocha: | 3+kk/74 m² |
| Číslo zakázky: | REALITYMIX-5815 |
Podrobné informace
- Dispozice bytu: 3+kk
- Číslo podlaží v domě: 2
- Počet podlaží objektu: 6
- Celková podlahová plocha: 74 m²
- Druh objektu: cihlová
- Stav objektu: velmi dobrý
- Vlastnictví: osobní
- Umístění objektu: klidná část obce
- Doprava: vlak, dálnice, silnice, MHD, autobus
- Občanská vybavenost: Škola, Školka, Zdravotnická zařízení, Pošta, Supermarket, Kompletní síť obchodů a služeb
- Elektřina: Elektro - 230 V
- Voda: Voda - dálkový vodovod
- Plyn: Plynovod
- Topení: Ústřední - plynové
- Energetická náročnost budovy: D - Nevyhovující
Mapa
* Umístění na mapě je na základě GPS informací dodaných realitní kanceláří.
* Pozice na mapě je pouze orientační.