Prodej bytu, 4+kk, 81 m²
Lvovská, Praha 10, Vršovice
13 980 000 KčProdej bytu, 4+kk, 81 m²
Lvovská, Praha 10, Vršovice
Prostorný a moderně rekonstruovaný byt 4+kk na adrese Lvovská
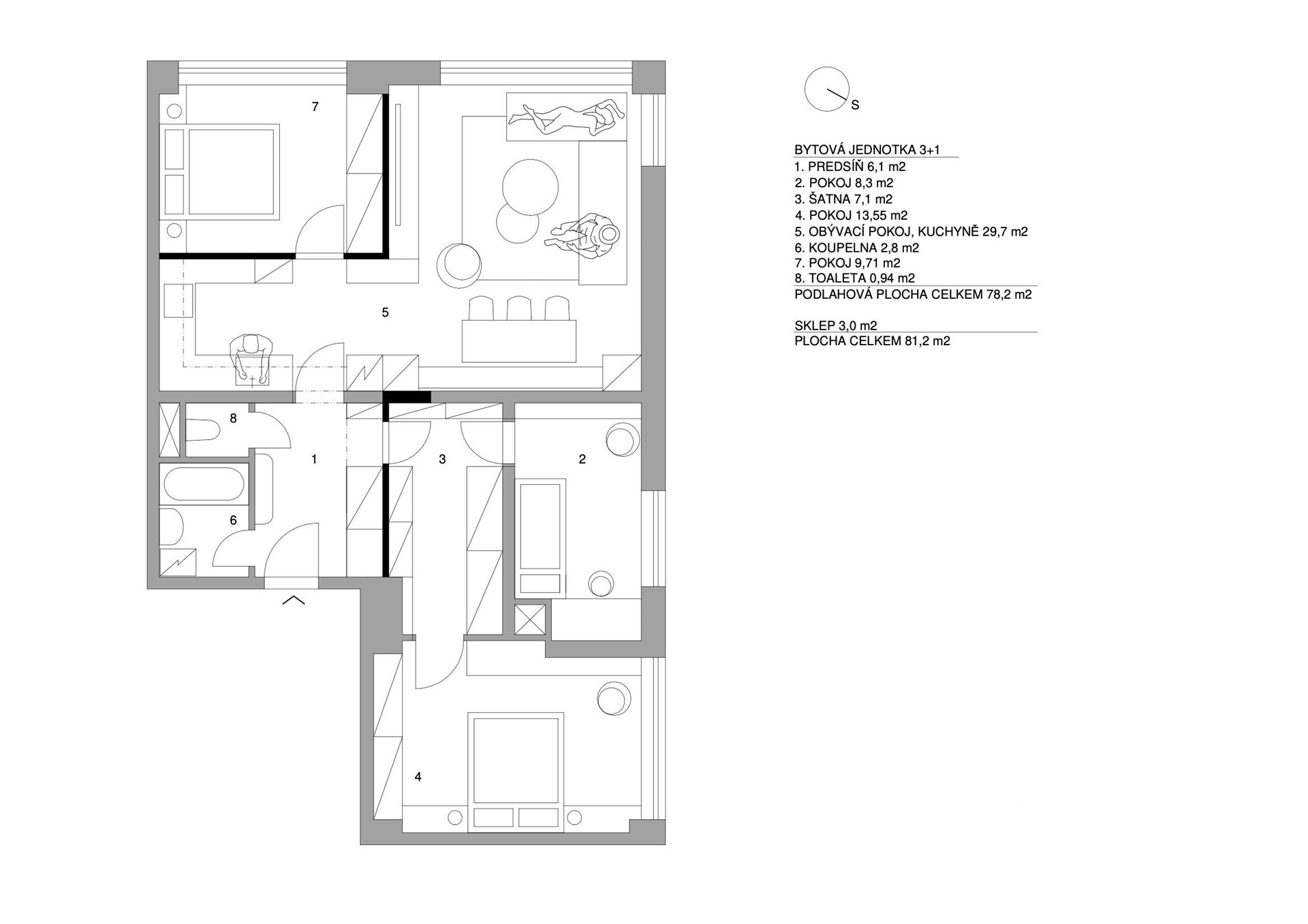
Nabízíme ke koupi exkluzivní byt 4+kk po kompletní a moderní rekonstrukci, situovaný na adrese Lvovská, Praha 10 – Vršovic e.
Nemovitost je řešena v moderním, nadčasovém stylu s důrazem na kvalitu materiálů, precizní řemeslné zpracování a vysoký uživatelský komfort.
Interiér je luxusně zařízený – designová kuchyňská linka s vestavěnými spotřebiči, kvalitní podlahové krytiny, nové rozvody, moderní koupelna s elegantní sanitou a promyšlené osvětlení vytvářejí reprezentativní a zároveň velmi příjemné bydlení bez nutnosti dalších investic. Dispozice 4+kk nabízí ideální kombinaci prostorné obytné části s kuchyňským koutem a dostatku soukromí v jednotlivých pokojích.
Lokalita poskytuje výjimečné zázemí pro aktivní životní styl:
V docházkové vzdálenosti 4 minut (300 m) se nachází Plavecký stadion SK Slavia Praha.
Pouhých 350 m od domu je Zimní stadion HC Slavia Praha.
Sportovní a kulturní akce nabízí Fortuna Arena, vzdálená 500 m (7 minut chůze).
Kompletní občanskou vybavenost a MHD zajišťuje Kubánské náměstí (400 m, 6 minut chůze). Rychlé spojení do centra pak umožňuje vlaková zastávka PrahaEden, vzdálená 750 m (cca 11 minut chůze).
Tato nemovitost představuje ideální volbu pro náročné klienty hledající moderní, reprezentativní bydlení v dynamicky se rozvíjející části Prahy 10 s perfektní dostupností a kompletní infrastrukturou.
Pro více informací a domluvení prohlídky mě neváhejte kontaktovat.
| Cena: | 13 980 000 Kč |
| Datum k nastěhování: | 21.04.2026 |
| Dispozice/podlahová plocha: | 4+kk/81 m² |
| Číslo zakázky: | REALITYMIX-975129 |
Podrobné informace
- Dispozice bytu: 4+kk
- Číslo podlaží v domě: 3
- Počet podlaží objektu: 10
- Celková podlahová plocha: 81 m²
- Druh objektu: cihlová
- Stav objektu: po rekonstrukci
- Vlastnictví: osobní
- Sklep: 2 m²
- Elektřina: Elektro - 230 V
- Energetická náročnost budovy: G - Mimořádně nehospodárná
Právní rádce
-
Detail
V tomto článku shrneme nejdůležitější věci, které byste si měli promyslet, pokud se chystáte prodat svou nemovitost a chcete, abyste s kupujícím nemusel následně řešit vzniklé problémy.
Jako prodávající nesete rizika spojená nejen se samotným obchodem, ale i se stavem nemovitosti v době prodeje a pro minimalizaci rizik, je dobré se zamyslet nad uvedenými oblastmi.
-
Detail
Realitní makléř má své nezastupitelné místo v realitním obchodu. Realitním makléřem nemyslím nevzdělané jelito, které absolvovalo dvoudenní školení a ví, jak se nahraje inzerát na inzertní portál.
Realitním makléřem, který se Vám skutečně vyplatí, je zkušený profesionál, který je schopen Vám dobře poradit jak prodat za co nejvíc a s nejmenším rizikem a hlavně je Vás schopen obratně provést celým realitním obchodem.