Prodej bytu, 2+kk, 65 m²
U Domu služeb, Praha 12, Modřany
10 290 000 KčProdej bytu, 2+kk, 65 m²
U Domu služeb, Praha 12, Modřany
Prostorný byt 2+kk (65 m²) se 2 balkony, garáží a sklepem – Praha Modřany
Byt se nachází v 1. nadzemním podlaží moderní novostavby v oblíbené lokalitě Praha 12 – Modřany, v ulici U Domu služeb. Tato jednotka je díky své ploše, která odpovídá spíše dispozicím 3+kk, ideální volbou pro komfortní vlastní bydlení i stabilní investici.
Náklady na bydlení cca. 4000 Kč / měs.
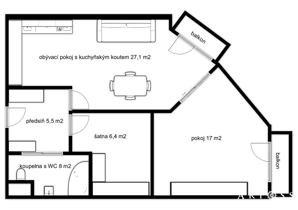
Dispozice a vybavení:
Byt o celkové vnitřní podlahové ploše 65,2 m² nabízí velkorysý prostor a praktické uspořádání:
Obývací pokoj s kuchyňským koutem (27,1 m²) s atypickým půdorysem a vstupem na první balkon.
Prostorná ložnice (17,0 m²) se vstupem na druhý balkon.
Komfortní koupelna s WC (8,1 m²) .
Vstupní předsíň (5,5 m²) a velmi praktická prostorná komora spíše prostorná šatna (6,4 m²) přímo v bytě.
Příslušenství (zahrnuto v ceně): Garážové stání: Vlastní parkovací místo č. 32 (v dokumentaci G32) ve 2. podzemním podlaží budovy.
Sklepní kóje: Úložný prostor č. 51 o ploše 2,4 m².
Okna a balkony jsou orientovány do parku.
Lokalita a vybavenost:
Lokalita vyniká spojením klidu a perfektní dostupnosti všeho potřebného.
Nákupy: Obchodní dům Albert se nachází v docházkové vzdálenosti.
Sport a relax: Pár kroků od domu je oblíbená cyklostezka podél Vltavy a Modřanská rokle.
Pro rodiny: Přímo v okolí se nachází dětské hřiště, školy a školky.
Klíčové parametry: Celková plocha: 65,2 m² + 2 balkony + sklep 2,4 m², Garážové stání.
Podlaží: 1. NP. Příslušenství: Garážové stání a sklep v ceně.
Stav: Moderní, udržovaná novostavba.
Tento byt doporučujeme všem, kteří hledají nadstandardní metráž a kompletní balíček služeb v jedné z nejzelenějších částí Prahy.
Pro více informací nebo domluvení prohlídky mě neváhejte kontaktovat.
| Cena: | 10 290 000 Kč |
| Dispozice/podlahová plocha: | 2+kk/65 m² |
| Číslo zakázky: | REALITYMIX-310261002 |
Podrobné informace
- Bezbariérový byt: ano
- Dispozice bytu: 2+kk
- Číslo podlaží v domě: 1
- Počet podlaží objektu: 1
- Celková podlahová plocha: 65 m²
- Druh objektu: cihlová
- Stav objektu: velmi dobrý
- Vlastnictví: osobní
- Balkon: 8 m²
- Sklep: 3 m²
- Energetická náročnost budovy: G - Mimořádně nehospodárná
Právní rádce
-
Detail
V tomto článku shrneme nejdůležitější věci, které byste si měli promyslet, pokud se chystáte prodat svou nemovitost a chcete, abyste s kupujícím nemusel následně řešit vzniklé problémy.
Jako prodávající nesete rizika spojená nejen se samotným obchodem, ale i se stavem nemovitosti v době prodeje a pro minimalizaci rizik, je dobré se zamyslet nad uvedenými oblastmi.
-
Detail
Realitní makléř má své nezastupitelné místo v realitním obchodu. Realitním makléřem nemyslím nevzdělané jelito, které absolvovalo dvoudenní školení a ví, jak se nahraje inzerát na inzertní portál.
Realitním makléřem, který se Vám skutečně vyplatí, je zkušený profesionál, který je schopen Vám dobře poradit jak prodat za co nejvíc a s nejmenším rizikem a hlavně je Vás schopen obratně provést celým realitním obchodem.