Prodej bytu, 2+kk, 67 m²
5. května, Praha 4, Nusle
8 250 000 KčProdej bytu, 2+kk, 67 m²
5. května, Praha 4, Nusle
Prostorný světlý byt 2+kk/B, Praha 4, nedaleko metra Pražského povstání
Lokalita je s výborným dopravním spojením (v docházkové vzdálenosti 2 minuty chůze se nachází tramvajová zastávka a stanice metra C Pražského povstání), v okolí je dostatek obchodů a za většími nákupy se pohodlnou procházkou dostanete do obchodního centra Arkády Pankrác. Za relaxací a úchvatnou vyhlídkou na Prahu můžete vyrazit na Vyšehrad. Lokalita nabízí vše, co k pohodlnému bydlení potřebujete.
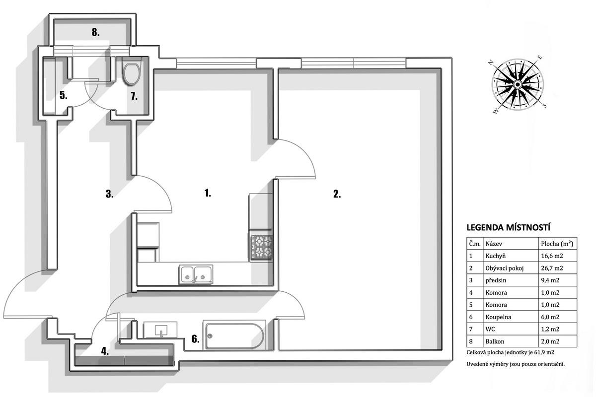
Nabízený byt 2+kk/B je prostorný a světlý, celková plocha bytu je 61,9 m2 + balkon 2 m2, k bytu dále náleží sklepní kóje v suterénu domu 3,5 m2. Byt disponuje vstupní předsíní, pokoje s kuch. koutem, ložnicí, koupelnou, samostatným WC a 2 komorami. Díky svému umístění ve 4.patře domu poskytuje byt klid a soukromí, je světlý a je z něj příjemný výhled, za jasného počasí až na Pražský Hrad. Byt je ve velmi dobrém, udržovaném stavu. Na podlaze je položena dlažba, parkety a plovoucí podlaha. Vytápění a ohřev teplé vody zajišťuje samostatný plynový kotel. Byt je vybaven kuch. linkou s varnou deskou, troubou, digestoří, myčkou, pračkou, lednicí s mrazničkou. V bytě je instalován optický kabel na připojení k internetu. Byt je připraven k okamžitému nastěhování, nový vlastník si samozřejmě může byt upravit dle svých potřeb a požadavků.
Dům je ve velmi dobrém udržovaném stavu, okna v celém domě jsou nová plastová, veškeré rozvody v domě jsou nové. K domu náleží zahrada, která je připravena k užívání vlastníkům bytů.
Měsíční náklady na provoz jsou nízké, náklady do fondu oprav a na provoz domu činí 2.235 Kč/měs.
PENB nebyl vypracován, proto se uvádí kategorie G.
Vzhledem ke své dispozici, stavu a poloze je byt ideální volbou pro mladé páry nebo jednotlivce, je také vhodný pro investory hledající investiční byt k pronájmu.
Neváhejte a domluvte si prohlídku tohoto bytu ještě dnes.
| Cena: | 8 250 000 Kč |
| Poznámka: | včetně provize a právního servisu |
| Dispozice/podlahová plocha: | 2+kk/67 m² |
| Číslo zakázky: | REALITYMIX-104 |
Podrobné informace
- Dispozice bytu: 2+kk
- Číslo podlaží v domě: 5
- Počet podlaží objektu: 5
- Užitná plocha: 62 m²
- Celková podlahová plocha: 67 m²
- Druh objektu: cihlová
- Stav objektu: velmi dobrý
- Vlastnictví: osobní
- Balkon: 2 m²
- Sklep: 3 m²
- Umístění objektu: centrum obce
- Doprava: autobus
- Topení: Ústřední - plynové
Právní rádce
-
Detail
V tomto článku shrneme nejdůležitější věci, které byste si měli promyslet, pokud se chystáte prodat svou nemovitost a chcete, abyste s kupujícím nemusel následně řešit vzniklé problémy.
Jako prodávající nesete rizika spojená nejen se samotným obchodem, ale i se stavem nemovitosti v době prodeje a pro minimalizaci rizik, je dobré se zamyslet nad uvedenými oblastmi.
-
Detail
Realitní makléř má své nezastupitelné místo v realitním obchodu. Realitním makléřem nemyslím nevzdělané jelito, které absolvovalo dvoudenní školení a ví, jak se nahraje inzerát na inzertní portál.
Realitním makléřem, který se Vám skutečně vyplatí, je zkušený profesionál, který je schopen Vám dobře poradit jak prodat za co nejvíc a s nejmenším rizikem a hlavně je Vás schopen obratně provést celým realitním obchodem.