Prodej bytu, 2+kk, 65 m²
Lucemburská, Praha 3, Žižkov
11 990 000 KčProdej bytu, 2+kk, 65 m²
Lucemburská, Praha 3, Žižkov
Prosvětlený rohový byt 2+kk, 65 m² – rozhraní Vinohrad a Žižkova
Nabízíme vám exkluzivní prodej světlého, prostorného bytu 2+kk o ploše 65 m² (+ sklep 1,5 m²) v atraktivní lokalitě na rozhraní Vinohrad a Žižkova, jen 5 minut chůze od metra A – Flora.
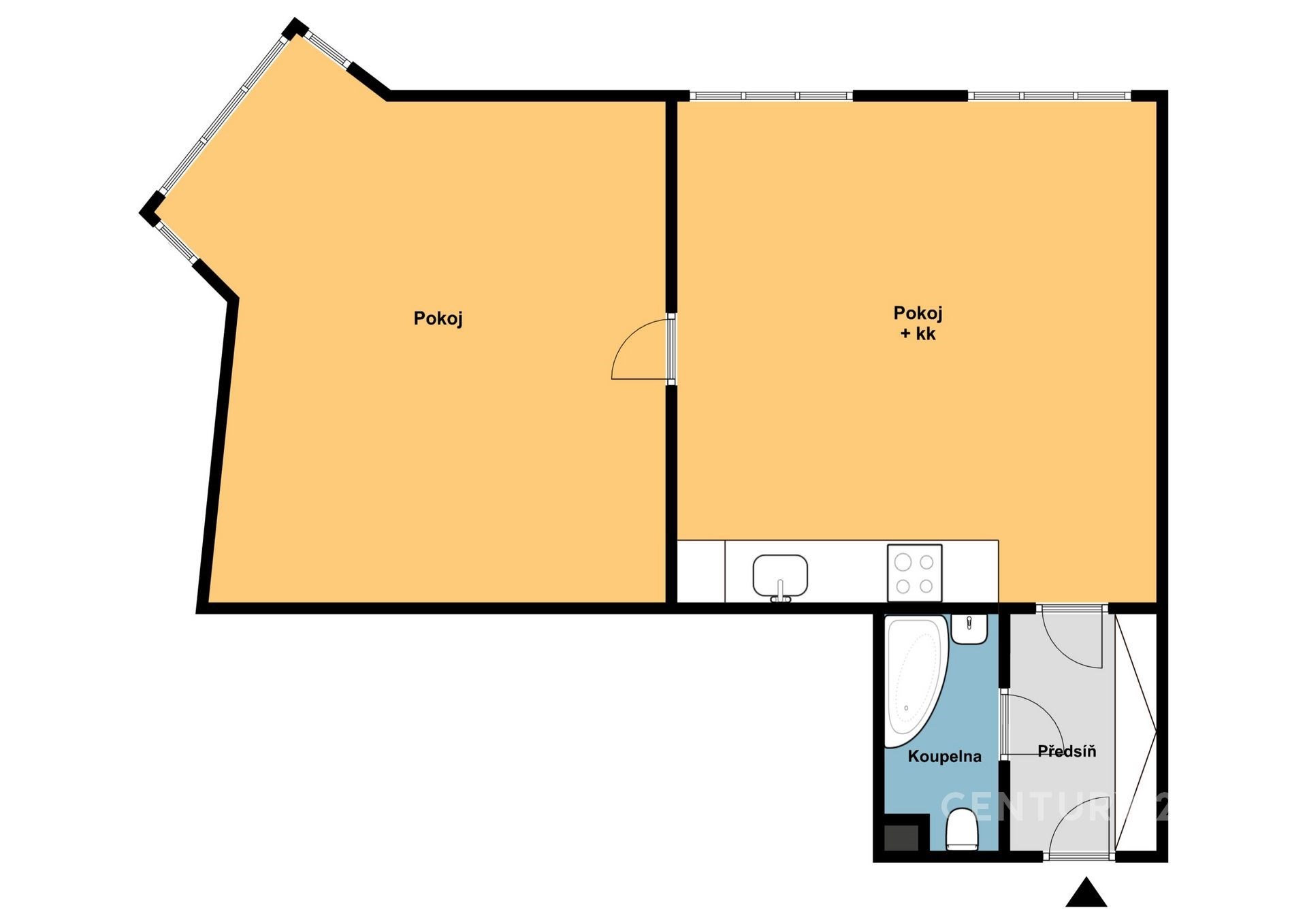
Interiér a technický stav: Byt se nachází v 1. patře udržovaného cihlového domu s výtahem. Díky své rohové poloze a orientaci na jihozápad je obývací pokoj po celý den zaplaven přirozeným světlem.
Rekonstrukce: V roce 2006 proběhla kompletní výměna rozvodů vody a elektřiny. Před 10 lety byla instalována nová dřevěná špaletová okna.
Vybavení: Na podlahách jsou zachovalé dřevěné parkety a keramická dlažba. Kuchyňský kout je plně vybaven spotřebiči (plynový sporák, el. trouba, lednice).
Vytápění: Vlastní plynový kotel zajišťuje nezávislost na topné sezóně a kontrolu nad náklady.
O domě:
Činžovní dům z roku 1928 prochází pravidelnou údržbou.
2021: Oprava střechy a zavedení vysokorychlostního optického internetu.
2023: Instalace moderních digitálních vodoměrů.
Lokalita s neopakovatelnou atmosférou: Bydlení na této adrese nabízí to nejlepší z pražského lifestyle:
Gastro & Kultura:
Desítky vyhlášených kaváren a restaurací všech světových kuchyní v bezprostředním okolí. Oblíbené farmářské trhy na náměstí Jiřího z Poděbrad jsou v docházkové vzdálenosti. Sobotní rána na „Jiřáku“ u farmářských trhů se mohou stát vaším rituálem.
Relaxace:
Pár minut chůze do Riegrových sadů nebo k Žižkovské věži (Mahlerovy sady).
Dostupnost:
Metro "A" / zelené metro (Flora) 5 min pěšky, tramvajové spoje v těsné blízkosti. V centru Prahy jste do 7 minut.
Vybavenost:
OC Flora, lékárny, banky, školy a školky – vše "za rohem".
Ekonomika bydlení: Byt se vyznačuje velmi nízkými provozními náklady:
Fond oprav (2025): 1 868 Kč
Služby: 889 Kč / osoba
Celkem: 2 757 Kč + energie
Energetická náročnost budovy (PENB) bude doplněna (třída G).
Financování: Nákup lze financovat hypotečním úvěrem, se kterým vám v rámci našeho servisu rádi pomůžeme zajistit nejvýhodnější podmínky na trhu.
Díky své poloze a dispozici je byt vynikající volbou pro vlastní prestižní bydlení i jako bezpečná investice s vysokým potenciálem pronájmu.
Zaujala vás tato nabídka? Přijeďte se přesvědčit osobně. Těším se na vás na prohlídce!
| Cena: | 11 990 000 Kč |
| Datum k nastěhování: | 30.01.2026 |
| Dispozice/podlahová plocha: | 2+kk/65 m² |
| Číslo zakázky: | REALITYMIX-967286 |
Podrobné informace
- Dispozice bytu: 2+kk
- Číslo podlaží v domě: 2
- Počet podlaží objektu: 7
- Celková podlahová plocha: 65 m²
- Druh objektu: cihlová
- Stav objektu: dobrý
- Vlastnictví: osobní
- Sklep: 2 m²
- Doprava: MHD
- Elektřina: Elektro - 230 V
- Energetická náročnost budovy: E - Nehospodárná
- Energetický ukazatel podle vyhlášky: č. 78/2013 Sb.
Právní rádce
-
Detail
V tomto článku shrneme nejdůležitější věci, které byste si měli promyslet, pokud se chystáte prodat svou nemovitost a chcete, abyste s kupujícím nemusel následně řešit vzniklé problémy.
Jako prodávající nesete rizika spojená nejen se samotným obchodem, ale i se stavem nemovitosti v době prodeje a pro minimalizaci rizik, je dobré se zamyslet nad uvedenými oblastmi.
-
Detail
Realitní makléř má své nezastupitelné místo v realitním obchodu. Realitním makléřem nemyslím nevzdělané jelito, které absolvovalo dvoudenní školení a ví, jak se nahraje inzerát na inzertní portál.
Realitním makléřem, který se Vám skutečně vyplatí, je zkušený profesionál, který je schopen Vám dobře poradit jak prodat za co nejvíc a s nejmenším rizikem a hlavně je Vás schopen obratně provést celým realitním obchodem.