Prodej bytu, 2+1, 57 m²
Volavkova, Praha 6, Břevnov
7 750 000 KčProdej bytu, 2+1, 57 m²
Volavkova, Praha 6, Břevnov
7 750 000 Kč
D
Méně úsporná
Světlý byt 2+1 | Jen dvě minuty chůze od metra Petřiny
Hledáte byt, který si můžete zrekonstruovat přesně podle svých představ?
Nabízíme k prodeji světlý byt 2+1 o celkové ploše 57 m², situovaný ve 2. nadzemním podlaží cihlového domu v oblíbené lokalitě Praha 6 – Petřiny.
Byt je ve stavu připravený na rekonstrukci.
Proběhla zde částečná rekonstrukce - koupelna, vyzděná příčka mezi chodbou a kuchyní, nová elektroinstalace (bez revize), nové obklady, dlažba a sanitární vybavení. Také kuchyň je po rekonstrukci a disponuje kuchyňskou linkou s plynovým sporákem.
Důležité: byt je v družstevním vlastnictví a není možné jej převést do osobního vlastnictví.
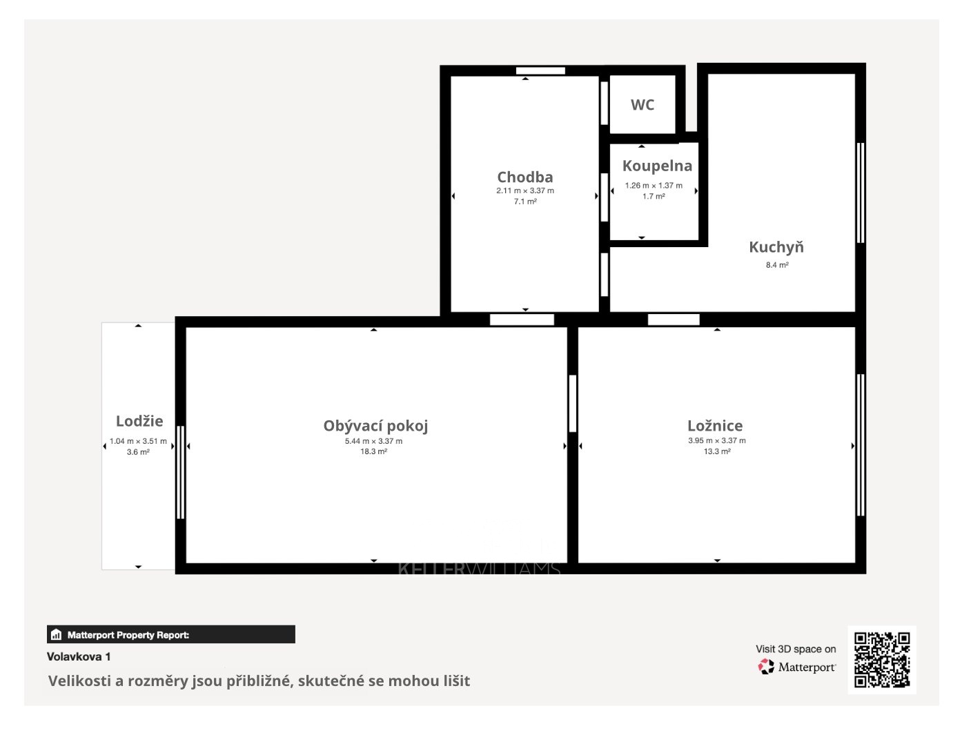
Dispozice
- prostorný obývací pokoj (cca 19 m²)
- samostatná kuchyň (cca 9 m²)
- ložnice (cca 14 m²)
- koupelna se sprchovým koutem a WC
- předsíň
- balkon (cca 3,5 m²)
- sklepní kóje (cca 2 m²)
Technické údaje
- původní dřevěné parkety
- plastová okna
- vytápění a ohřev vody: centrální dálkové
- měsíční poplatky: 5 720 Kč (z toho fond oprav 1 600 Kč)
Lokalita
Byt se nachází ve vyhledávané a klidné části Prahy 6 – Petřiny, v ulici Volavkova, jen dvě minuty chůze od stanice metra A - Petřiny.
V okolí je kompletní občanská vybavenost – školy, školky, obchody, lékárny, restaurace.
V docházkové vzdálenosti se nachází Obora Hvězda a Břevnovský klášter – ideální pro procházky, běh i volnočasové aktivity.
Byt je vhodný jako investiční příležitost, případně pro bydlení v klidné lokalitě s perfektní dopravní dostupností.
Jiří Koucký – realitní makléř
Uvedené výměry jsou orientační. V případě více zájemců bude nemovitost prodána nejlepší nabídce a majitel si vyhrazuje právo vybrat kupujícího na základě jím zvolených kritérií. Veškeré zveřejněné údaje mají pouze informativní charakter a nepředstavují nabídku ve smyslu § 1731 nebo § 1732 občanského zákoníku, ani veřejný příslib dle § 1733 občanského zákoníku.
Nabízíme k prodeji světlý byt 2+1 o celkové ploše 57 m², situovaný ve 2. nadzemním podlaží cihlového domu v oblíbené lokalitě Praha 6 – Petřiny.
Byt je ve stavu připravený na rekonstrukci.
Proběhla zde částečná rekonstrukce - koupelna, vyzděná příčka mezi chodbou a kuchyní, nová elektroinstalace (bez revize), nové obklady, dlažba a sanitární vybavení. Také kuchyň je po rekonstrukci a disponuje kuchyňskou linkou s plynovým sporákem.
Důležité: byt je v družstevním vlastnictví a není možné jej převést do osobního vlastnictví.
Dispozice
- prostorný obývací pokoj (cca 19 m²)
- samostatná kuchyň (cca 9 m²)
- ložnice (cca 14 m²)
- koupelna se sprchovým koutem a WC
- předsíň
- balkon (cca 3,5 m²)
- sklepní kóje (cca 2 m²)
Technické údaje
- původní dřevěné parkety
- plastová okna
- vytápění a ohřev vody: centrální dálkové
- měsíční poplatky: 5 720 Kč (z toho fond oprav 1 600 Kč)
Lokalita
Byt se nachází ve vyhledávané a klidné části Prahy 6 – Petřiny, v ulici Volavkova, jen dvě minuty chůze od stanice metra A - Petřiny.
V okolí je kompletní občanská vybavenost – školy, školky, obchody, lékárny, restaurace.
V docházkové vzdálenosti se nachází Obora Hvězda a Břevnovský klášter – ideální pro procházky, běh i volnočasové aktivity.
Byt je vhodný jako investiční příležitost, případně pro bydlení v klidné lokalitě s perfektní dopravní dostupností.
Jiří Koucký – realitní makléř
Uvedené výměry jsou orientační. V případě více zájemců bude nemovitost prodána nejlepší nabídce a majitel si vyhrazuje právo vybrat kupujícího na základě jím zvolených kritérií. Veškeré zveřejněné údaje mají pouze informativní charakter a nepředstavují nabídku ve smyslu § 1731 nebo § 1732 občanského zákoníku, ani veřejný příslib dle § 1733 občanského zákoníku.
| Cena: | 7 750 000 Kč |
| Dispozice/podlahová plocha: | 2+1/57 m² |
| Číslo zakázky: | REALITYMIX-28790 |
Podrobné informace
- Dispozice bytu: 2+1
- Číslo podlaží v domě: 2
- Počet podlaží objektu: 1
- Celková podlahová plocha: 57 m²
- Druh objektu: panelová
- Stav objektu: dobrý
- Stáří objektu: 1961
- Vlastnictví: družstevní
- Lodžie: 3 m²
- Sklep: 2 m²
- Umístění objektu: klidná část obce
- Doprava: vlak, dálnice, silnice, MHD, autobus
- Elektřina: Elektro - 230 V
- Voda: Voda - dálkový vodovod
- Telekomunikace: Telefon, Internet
- Plyn: Plynovod
- Topení: Ústřední - dálkové
- Odpad: Kanalizace
- Ostatní rozvody: Ostatní rozvody
- Energetická náročnost budovy: D - Méně úsporná
- Ukazatel energetické náročnosti budovy: 145 kWh/m²
- Energetický ukazatel podle vyhlášky: č. 264/2020 Sb.
Právní rádce
-
Detail
Důvodem je odlišný přístup makléře k zakázce. Pokud je kupní cena inzerována včetně provize, tak realitního makléře platí prodávající. Pokud je kupní cena inzerována bez provize, tak provizi platí kupující.
-
Detail
V tomto článku shrneme nejdůležitější věci, které byste si měli promyslet, pokud se chystáte prodat svou nemovitost a chcete, abyste s kupujícím nemusel následně řešit vzniklé problémy.
Jako prodávající nesete rizika spojená nejen se samotným obchodem, ale i se stavem nemovitosti v době prodeje a pro minimalizaci rizik, je dobré se zamyslet nad uvedenými oblastmi.
Prodáváte nemovitost a potřebujete zjistit její reálnou hodnotu?
Zjistit reálnou cenuVývoj průměrné ceny za m2 v lokalitě Praha 6
Ceny uvedené v grafu, jsou průměrnými cenami ze sledované lokality a nezohledňují stav, stáří ani vybavení nemovitosti.
Prodáváte nemovitost a potřebujete zjistit její reálnou hodnotu?
Zjistit reálnou cenuMapa
* Umístění na mapě je na základě GPS informací dodaných realitní kanceláří.
* Pozice na mapě je pouze orientační.