Prodej bytu, 3+kk, 155 m²
Hyacintová, Praha 10, Záběhlice
18 100 000 KčProdej bytu, 3+kk, 155 m²
Hyacintová, Praha 10, Záběhlice
Světlý, prostorný byt 3+kk se 2 terasami a garážovým stáním
Byt se nachází rezidenčním domě v Hyacintové ul. v Praze 10 - Záběhlicích. Lokalita je klidná, s výbornou dopravní dostupností - autobusová zastávka je jen cca. 2 minuty chůze od domu a během několika málo minut se pohodlně dostane ke stanici metra A Strašnická. V okolí se nachází obchody, supermarkety, poliklinika. Blízkost mateřské a základní školy je samozřejmostí. Za většími nákupy můžete vyrazit do nedalekého obchodního centra Vivo Hostivař. Milovníci procházek a aktivního odpočinku jistě uvítají blízkost klidové zóny podél Botiče, Záběhlického zámku a rybníku Hamr, kde se také nachází různá sportoviště.
Byt je situován v 5. NP, o Vaše pohodlí a bezpečnost se stará 24 hodinová recepční služba s ostrahou nacházející se v přízemí domu.
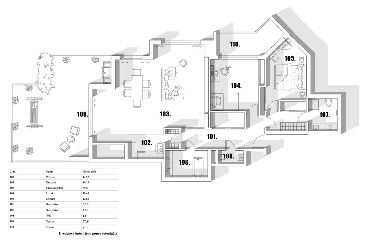
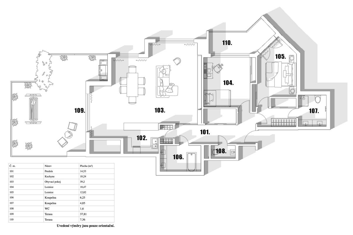
Byt má celkovou plochu 108 m2, náleží k němu sklep 2 m2 a 2 terasy o plochách 38 m2 a 7 m2.
Byt je velmi prostorný a světlý. Při vstupu Vás jistě zaujme prostorná hala, ze které je samostatný přístup do všech místností v bytě. Rozlehlý obývací pokoj s kuchyní má celkem 49 m2, naleznete v něm dostatek prostoru pro příjemné rodinné stolování či posezení s přáteli. Z obývacího pokoje je přístup na jihozápadně orientovanou terasu 38 m2. Tento prostor vám rozšíří vaše pohodlí a komfort v teplejším období, jistě zde najdou svůj kout nejen milovníci sluníčka, ale můžete terasu využít také k relaxaci po náročném dni nebo grilování.
Ve druhé části bytu se nachází 2 samostatné pokoje, z každého je přístup na menší terasu. Větší pokoj má vlastní šatnu a koupelnu.
Byt je ve velmi dobrém stavu, při jeho realizaci byly použity nadstandardní, kvalitní materiály a celý byt působí velmi příjemným, útulným dojmem. V celém bytě se nachází vestavěné skříně na míru vyhotovené z třešňového dřeva v kombinaci s mléčným sklem, stejně jako vnitřní dveře v bytě. Kuchyňská linka je vybavena veškerými spotřebiči. Na podlaze je položena dlažba, bambusová podlaha, v ložnici koberec. V jedné koupelně se nachází vířivá vana, ve druhé sprchový kout.
K bytu náleží parkovací stání umístěné v suterénu domu.
Byt bude k dispozici po dohodě.
Neváhejte a domluvte si prohlídku tohoto jedinečného bytu ještě dnes.
| Cena: | 18 100 000 Kč |
| Poznámka: | včetně provize a právního servisu |
| Dispozice/podlahová plocha: | 3+kk/155 m² |
| Číslo zakázky: | REALITYMIX-77 |
Podrobné informace
- Dispozice bytu: 3+kk
- Číslo podlaží v domě: 5
- Počet podlaží objektu: 7
- Užitná plocha: 110 m²
- Celková podlahová plocha: 155 m²
- Druh objektu: cihlová
- Stav objektu: velmi dobrý
- Vlastnictví: osobní
- Sklep: 2 m²
- Terasa: 45 m²
- Vybaveno: ano
- Umístění objektu: klidná část obce
- Topení: Ústřední - dálkové
- Energetická náročnost budovy: D - Nevyhovující
Právní rádce
-
Detail
V tomto článku shrneme nejdůležitější věci, které byste si měli promyslet, pokud se chystáte prodat svou nemovitost a chcete, abyste s kupujícím nemusel následně řešit vzniklé problémy.
Jako prodávající nesete rizika spojená nejen se samotným obchodem, ale i se stavem nemovitosti v době prodeje a pro minimalizaci rizik, je dobré se zamyslet nad uvedenými oblastmi.
-
Detail
Realitní makléř má své nezastupitelné místo v realitním obchodu. Realitním makléřem nemyslím nevzdělané jelito, které absolvovalo dvoudenní školení a ví, jak se nahraje inzerát na inzertní portál.
Realitním makléřem, který se Vám skutečně vyplatí, je zkušený profesionál, který je schopen Vám dobře poradit jak prodat za co nejvíc a s nejmenším rizikem a hlavně je Vás schopen obratně provést celým realitním obchodem.