Prodej bytu, 3+kk, 72 m²
Hrušková, Přezletice, Praha-východ
11 490 000 KčProdej bytu, 3+kk, 72 m²
Hrušková, Přezletice, Praha-východ
Netradiční byt 3+kk s terasou ulice Hrušková vedle lesa, Přezletice, Praha-Vinoř.
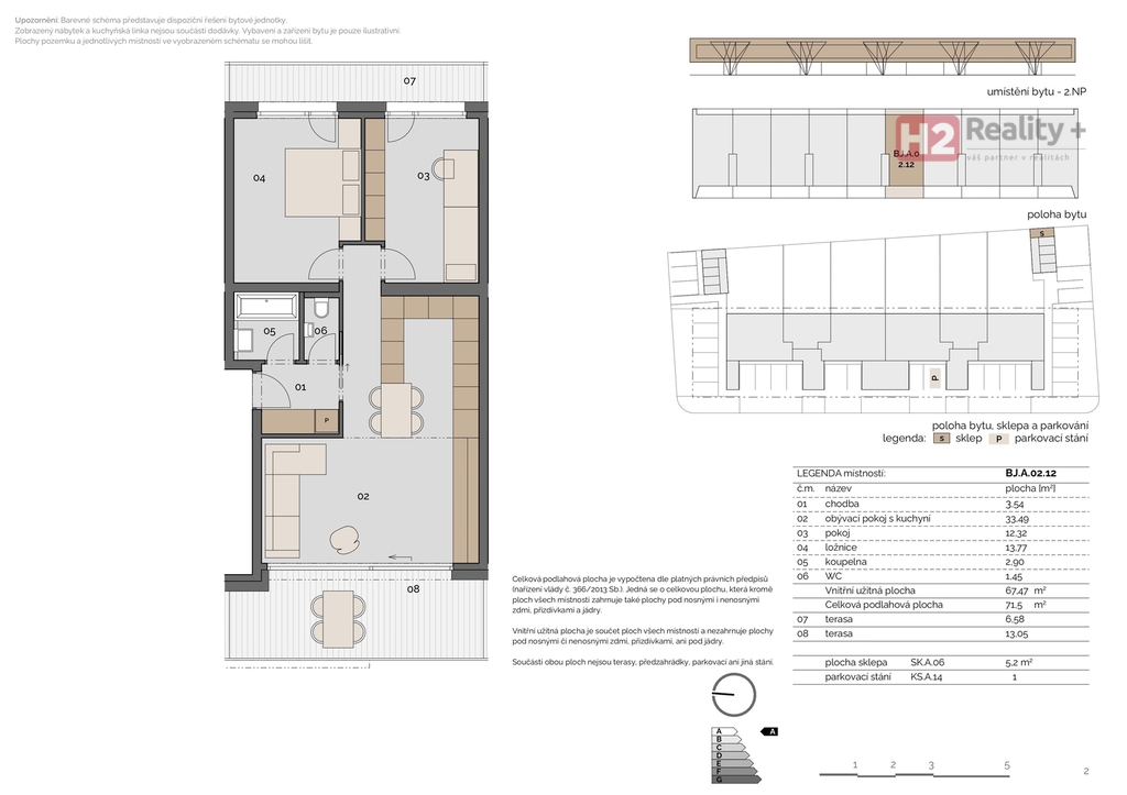
Byt je umístěn ve 2NP dvoupodlažní zděné Budovy energetické třídy A o dispozici 3+kk o celkové ploše 72m2 bez teras a sklepa. Netradičně pro 2 jednotky, vždy jeden společný vchod. Orientace ložnice na severovýchod, obývací pokoj a kuchyň na jih, jihozápad. Na obě strany budovy situovány kryté terasy o celkové ploše 20,6m2, u obývací pokoje přes celou šíři bytu prosklený HS portál na terasu o ploše 13,6m2 s výhledem do přírody a Ctěnického háje. Opravdové soukromí. Bytový dům celkem 16 bytových jednotek.
Dispozice:
vstupní chodba (prostor pro vestavěnou šatní skříň a pračku),
koupelna s vanou, samostatné WC,
obývací pokoj s prostorem pro obývací část a prostorově oddělenou kuchyň se sezením, dvě ložnice s terasou. Součástí bytu je prostorná sklepní 5,2m2 kóje a jedno kryté parkovací stání (širší 3,4m) v části jen dvou parkovacích stání, přímo vedle vchodu k bytu.
Součástí domu je kočárkárna pro parking dětských kol a kočárků.
Infrastruktura: plnohodnotné veřejné komunikace, veřejné osvětlení, elektro, vodovod, kanalizace, projekt nakládá s dešťovou vodou v místě, urbanistický koncept principu trvale udržitelného rozvoje, park, dětské hřiště, sadové úpravy, les, příroda, cyklostezka, park, Ctěnický potok a rybník, zámek Ctěnice.
MHD a doprava v přímém napojení, do 10 min. chůzí, do 20 min metro "C" Letňany.
Občanská vybavenost Vinoře, moderní mateřská školka a škola přímo v Přezleticích.
Vytápění lokální elektrické podlahové, el. topné kabely s vlastním ovládáním pro každou místnost.
Ohřev TUV centrálně kompaktním tepelným čerpadlem vzduch/ voda v kombinaci s centrálním zásobníkem TUV.
Vlastní rekuperační jednotka typu WAFE 201, systém řízeného větrání s regulací CO2 a rekuperací odpadního tepla vč. ovládání pomocí webového rozhraní. Jednoduše vyměnitelné filtry dle Vaší potřeby.
Elektroměr pro každou jednotku zvlášť. Dálkově odečítané vodoměry, dodavatel VHS Benešov.
Předpis záloh vč. společných nákladů na provoz Budovy zahrnující TUV a zálohy na vodné/stočné stanoveny na 5.144,-/měs. . Skutečnost z vyúčtování roku 2025 je u typu 3kk od 4.350,- / měs. do 5.850,-/měs. podle spotřeby vody a počtu osob od 3 do 4. Skutečná spotřeba el. energie (vč. složky na vytápění) je okolo 2.500,- / měs. .
Společenství vlastníků jednotek domu č.p. 651, Přezletice, správu zajištuje správce firma Blažek FM.
V domě je realizována přípojka optického vlákna firmy CZ.NET, konektivita do lokality přiváděna vzduchem a distribuována optikou. Další varianty dle pokrytí vzduchem jiných providerů přes instalaci vlastních routerů v domácnosti.
| Cena: | 11 490 000 Kč |
| Poznámka: | vč. provize a právního servisu |
| Datum k nastěhování: | 08.04.2026 |
| Dispozice/podlahová plocha: | 3+kk/72 m² |
| Číslo zakázky: | REALITYMIX-0380 |
Podrobné informace
- Dispozice bytu: 3+kk
- Číslo podlaží v domě: 2
- Počet podlaží objektu: 2
- Užitná plocha: 72 m²
- Celková podlahová plocha: 72 m²
- Druh objektu: cihlová
- Stav objektu: novostavba
- Vlastnictví: osobní
- Sklep: 5 m²
- Terasa: 21 m²
- Umístění objektu: klidná část obce
- Elektřina: Elektro - 230 V
- Voda: Voda - dálkový vodovod
- Odpad: Kanalizace
- Energetická náročnost budovy: A - Mimořádně úsporná
- Ukazatel energetické náročnosti budovy: 47 kWh/m²
- Energetický ukazatel podle vyhlášky: č. 78/2013 Sb.
Právní rádce
-
Detail
V tomto článku shrneme nejdůležitější věci, které byste si měli promyslet, pokud se chystáte prodat svou nemovitost a chcete, abyste s kupujícím nemusel následně řešit vzniklé problémy.
Jako prodávající nesete rizika spojená nejen se samotným obchodem, ale i se stavem nemovitosti v době prodeje a pro minimalizaci rizik, je dobré se zamyslet nad uvedenými oblastmi.
-
Detail
Realitní makléř má své nezastupitelné místo v realitním obchodu. Realitním makléřem nemyslím nevzdělané jelito, které absolvovalo dvoudenní školení a ví, jak se nahraje inzerát na inzertní portál.
Realitním makléřem, který se Vám skutečně vyplatí, je zkušený profesionál, který je schopen Vám dobře poradit jak prodat za co nejvíc a s nejmenším rizikem a hlavně je Vás schopen obratně provést celým realitním obchodem.
Prodáváte nemovitost a potřebujete zjistit její reálnou hodnotu?
Zjistit reálnou cenuVývoj průměrné ceny za m2 v lokalitě Středočeský kraj
Prodáváte nemovitost a potřebujete zjistit její reálnou hodnotu?
Zjistit reálnou cenuMapa
Podobné nemovitosti
Prodej bytu, 3+kk, 114 m²
K Lomu, Horoušany, Praha-východ
9 499 000 Kč
Prodej bytu, 3+kk, 81 m²
Topolová, Klecany, Praha-východ
11 274 054 Kč
Prodej bytu, 3+kk, 129 m²
Na Kopánku, Kunice, Praha-východ
11 990 000 Kč
Prodej bytu, 3+kk, 100 m²
Sídliště, Stará Boleslav, Brandýs nad Labem-Stará Boleslav, Praha-východ
8 390 000 Kč