Prodej - nájemní dům, 308 m²
Třída 9. května, Rumburk 1, Děčín
12 455 000 KčProdej - nájemní dům, 308 m²
Třída 9. května, Rumburk 1, Děčín
Prodej činžovního domu 308 m², Třída 9. Května - Rumburk
Hledáte výnosovou investici s možností dalšího rozšíření? Nabízíme k prodeji kompletně zrekonstruovaný činžovní dům v Rumburku, který kombinuje komerční prostory a byty s dalším rozvojovým potenciálem.
Dispozice nemovitosti:
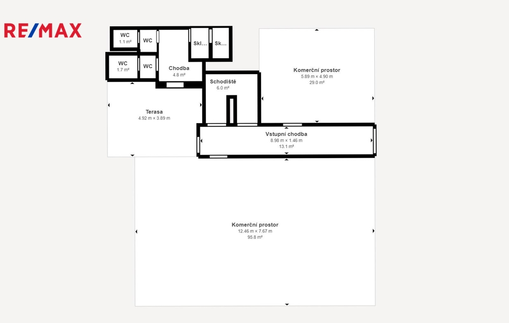
Přízemí (156,42 m²)
- Dva komerční prostory – (95,8 m² a 29 m²) - již pronajaté
- Chodba a ostatní prostory – 31,62 m²
První patro (152 m²)
Dva byty – levý 4+kk - 80,1 m² / pravý 3+kk - 64 m²
Chodba – 7,9 m²
Podkroví
Připravené pro další dva byty, stačí jen začít - možno vidět na videu.
Aktuální počet jednotek je 4, po dodělání se zvýší na 6.
Během rekonstrukce byly využity ty nejlepší materiály. Koupelny jsou obložené mramorem a v obou bytech se nachází vestavěné skříně pro lepší využití prostoru.
Nemovitost je částečně podsklepena. Sklep je uzavřen bezpečnostními dveřmi, stejně jako hlavní vchod do nemovitosti.
Klíčové výhody:
Kompletní rekonstrukce – bez nutnosti dalších investic
Výnos z pronájmu – stabilní příjem z bytových i nebytových prostor
Možnost rozšíření – potenciál pro celkem 6 bytových jednotek, půda připravená
Výborná lokalita – centrum města, skvělá dostupnost a občanská vybavenost
Tato nemovitost představuje ideální příležitost pro investory, kteří hledají stabilní příjem s možností dalšího rozvoje.
Energetický štítek budovy nebyl dodán, proto zvolena třída G.
Plochy místností jsou orientační.
Pro více informací k nemovitosti, či domluvení prohlídky mě neváhejte kontaktovat.
| Cena: | 12 455 000 Kč |
| Datum k nastěhování: | 20.10.2025 |
| Číslo zakázky: | REALITYMIX-425603 |
Podrobné informace
- Plocha parcely: 175 m²
- Umístění objektu: centrum obce
- Doprava: silnice, MHD, autobus
- Komunikace: dlážděná
- Voda: Voda - dálkový vodovod
- Plyn: Plynovod
- Odpad: Kanalizace
- Energetická náročnost budovy: G - Mimořádně nehospodárná
- Energetický ukazatel podle vyhlášky: č. 264/2020 Sb.
Právní rádce
-
Detail
V tomto článku shrneme nejdůležitější věci, které byste si měli promyslet, pokud se chystáte prodat svou nemovitost a chcete, abyste s kupujícím nemusel následně řešit vzniklé problémy.
Jako prodávající nesete rizika spojená nejen se samotným obchodem, ale i se stavem nemovitosti v době prodeje a pro minimalizaci rizik, je dobré se zamyslet nad uvedenými oblastmi.
-
Detail
Realitní makléř má své nezastupitelné místo v realitním obchodu. Realitním makléřem nemyslím nevzdělané jelito, které absolvovalo dvoudenní školení a ví, jak se nahraje inzerát na inzertní portál.
Realitním makléřem, který se Vám skutečně vyplatí, je zkušený profesionál, který je schopen Vám dobře poradit jak prodat za co nejvíc a s nejmenším rizikem a hlavně je Vás schopen obratně provést celým realitním obchodem.
Mapa
Podobné nemovitosti
Prodej - nájemní dům, 700 m²
Šluknovská, Rumburk 3-Dolní Křečany, Rumburk, Děčín
12 990 000 Kč
Prodej - nájemní dům, 1 570 m²
Mikulášovice, Děčín
8 999 000 Kč
Prodej - nájemní dům, 330 m²
J. z Poděbrad, Děčín VI-Letná, Děčín
9 998 000 Kč
Prodej - nájemní dům, 700 m²
Šluknovská, Rumburk 3-Dolní Křečany, Rumburk, Děčín
12 990 000 Kč