Prodej bytu, 4+kk, 109 m²
Strašecká, Rynholec, Rakovník
7 290 000 KčProdej bytu, 4+kk, 109 m²
Strašecká, Rynholec, Rakovník
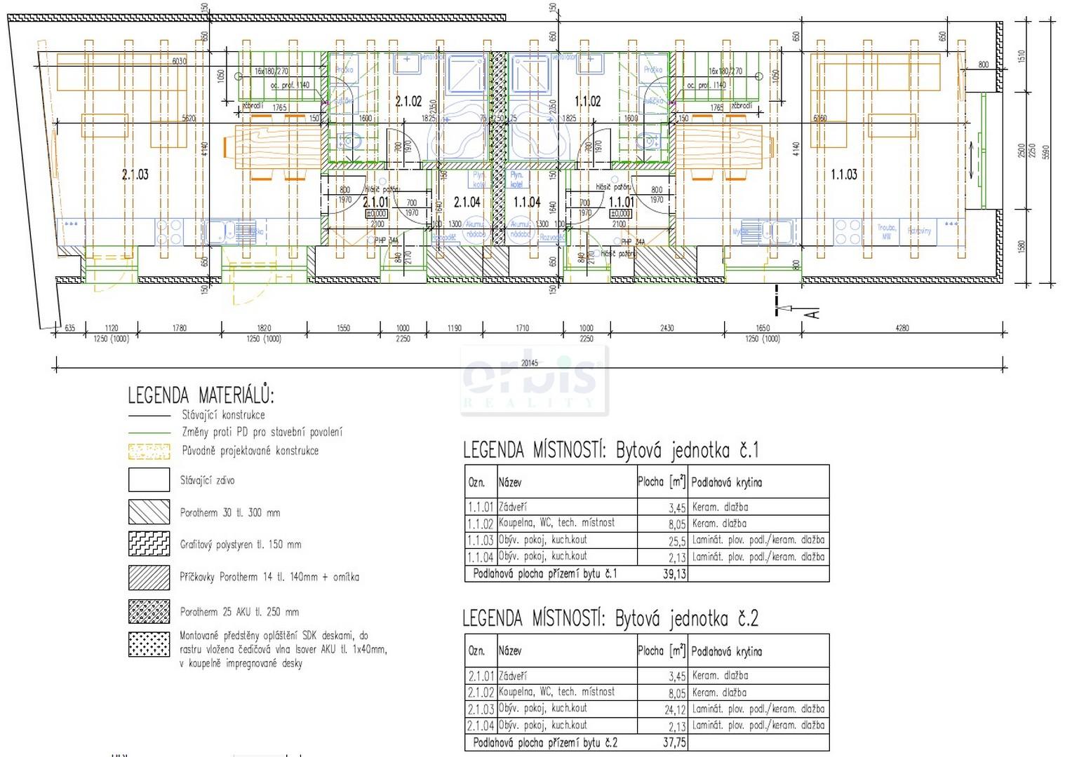
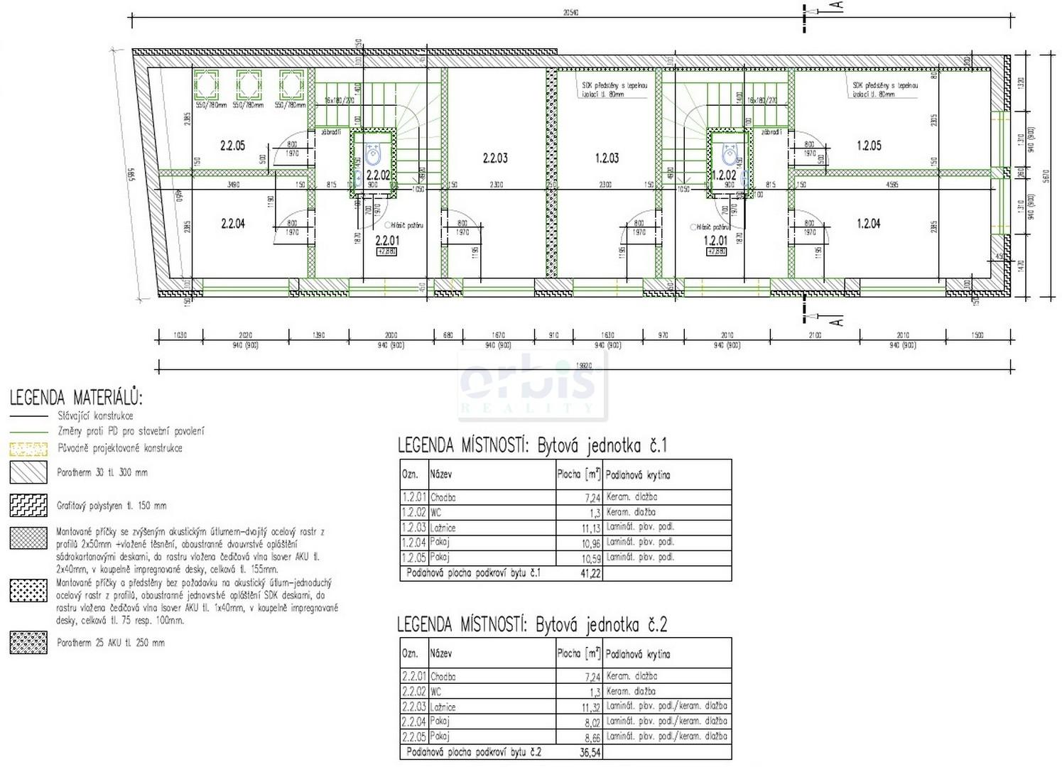
Nový mezoneltový byt 4+kk, 80,35 m2 + Terasa 9 m2 + 2x stání, Rynholec
Vytápění v celém bytě podlahové teplovodní z vlastního plynového kotle přes který je řešen i ohřev vody. V aktuální fázi možný výběr standardů které jsou v ceně - obklady, dlažby, podlahy, obložkové dveře.
K prodeji je v domě e také druhý nový byt 4+kk/T, stání, o výměře 76,88 za cenu 6.990.000,- Kč.
Byty k nastěhování od 1.9.2026. Financování možné hypotékou. Rádi vyřídíme. Bydlení ve velmi klidné lokalitě u rybníka s dobrou dostupností na Prahu.
| Cena: | 7 290 000 Kč |
| Dispozice/podlahová plocha: | 4+kk/109 m² |
| Číslo zakázky: | REALITYMIX-N17871 |
Podrobné informace
- Dispozice bytu: 4+kk
- Číslo podlaží v domě: 1
- Počet podlaží objektu: 2
- Užitná plocha: 109 m²
- Celková podlahová plocha: 109 m²
- Druh objektu: smíšená
- Stav objektu: po rekonstrukci
- Vlastnictví: osobní
- Terasa: 9 m²
- Umístění objektu: klidná část obce
- Topení: Ústřední - plynové
Právní rádce
-
Detail
V tomto článku shrneme nejdůležitější věci, které byste si měli promyslet, pokud se chystáte prodat svou nemovitost a chcete, abyste s kupujícím nemusel následně řešit vzniklé problémy.
Jako prodávající nesete rizika spojená nejen se samotným obchodem, ale i se stavem nemovitosti v době prodeje a pro minimalizaci rizik, je dobré se zamyslet nad uvedenými oblastmi.
-
Detail
Realitní makléř má své nezastupitelné místo v realitním obchodu. Realitním makléřem nemyslím nevzdělané jelito, které absolvovalo dvoudenní školení a ví, jak se nahraje inzerát na inzertní portál.
Realitním makléřem, který se Vám skutečně vyplatí, je zkušený profesionál, který je schopen Vám dobře poradit jak prodat za co nejvíc a s nejmenším rizikem a hlavně je Vás schopen obratně provést celým realitním obchodem.