Prodej - výrobní prostor, 665 m²
Pražská, Slaný, Kladno
19 000 000 KčProdej - výrobní prostor, 665 m²
Pražská, Slaný, Kladno
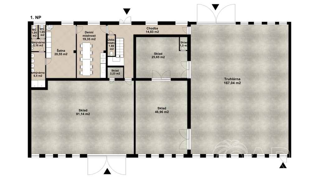
Prodej výrobní haly, prostoru 665 m², pozemek 1589 m², Pražská, Slaný
Dispozice a technické řešení:
1. nadzemní podlaží – 568 m²
výrobní prostory
technické zázemí
šatny pro zaměstnance
jídelna
skladové a obslužné prostory
sociální zázemí (WC, sprchy)
2. nadzemní podlaží – 95,5 m²
kancelářské prostory - celkem 4 kanceláře + prostor pro kartotéku
kuchyňka
WC
Hala má železobetonový stropní systém s hurdiskovými vložkami (žebrovaný strop), který zajišťuje dobrou únosnost i dlouhou životnost konstrukce. Objekt je dostatečně světlý, s kvalitním umělým osvětlením a přirozeným denním světlem.
Technický stav a vybavení:
nová střecha (2023)
bezpečnostní systém
napojení na veškeré inženýrské sítě
nízké měsíční provozní náklady cca 15 000 Kč (elektřina, plyn, vodné/stočné)
Venkovní plochy:
parkování v přední části objektu
zpevněná plocha za halou o výměře 965 m², aktuálně pronajatá (výpovědní doba 3 měsíce) – vhodná pro manipulaci, skladování nebo budoucí rozšíření provozu
Díky své dispozici, technickému stavu a umístění je objekt vhodný pro:
lehkou výrobu
dílnu nebo servisní provoz
skladování a logistiku
montážní nebo kompletovací činnost
provoz e-shopu s vlastním zázemím
kombinaci výroby, administrativy a skladů
zázemí pro řemeslnou nebo technickou firmu
Nemovitost představuje zajímavou příležitost jak pro vlastní podnikání, tak i pro investory hledající stabilní komerční objekt s nízkými provozními náklady.
| Cena: | 19 000 000 Kč |
| Číslo zakázky: | REALITYMIX-18662 |
Podrobné informace
- Plocha kanceláří: 665 m²
- Plocha parcely: 458 m²
- Druh objektu: cihlová
- Stav objektu: velmi dobrý
- Druh prostor: Výrobní
- Doprava: dálnice, silnice
- Komunikace: betonová
- Elektřina: Elektro - 230 V, Elektro - 400 V
- Voda: Voda - dálkový vodovod
- Plyn: Plynovod
- Odpad: Kanalizace
- Energetická náročnost budovy: G - Mimořádně nehospodárná
- Energetický ukazatel podle vyhlášky: č. 264/2020 Sb.
Právní rádce
-
Detail
V tomto článku shrneme nejdůležitější věci, které byste si měli promyslet, pokud se chystáte prodat svou nemovitost a chcete, abyste s kupujícím nemusel následně řešit vzniklé problémy.
Jako prodávající nesete rizika spojená nejen se samotným obchodem, ale i se stavem nemovitosti v době prodeje a pro minimalizaci rizik, je dobré se zamyslet nad uvedenými oblastmi.
-
Detail
Realitní makléř má své nezastupitelné místo v realitním obchodu. Realitním makléřem nemyslím nevzdělané jelito, které absolvovalo dvoudenní školení a ví, jak se nahraje inzerát na inzertní portál.
Realitním makléřem, který se Vám skutečně vyplatí, je zkušený profesionál, který je schopen Vám dobře poradit jak prodat za co nejvíc a s nejmenším rizikem a hlavně je Vás schopen obratně provést celým realitním obchodem.