Prodej bytu, 3+kk, 104 m²
Brno-venkov
12 378 787 KčProdej bytu, 3+kk, 104 m²
Brno-venkov
Prodej ateliéru 96,3m2
Představujeme Vám 3.etapu, která je zaměřena na výstavbu 4 viladomů, se 3 bytovými jednotkami a ateliérem. Je to ideální místo pro ty, kteří hledají kvalitní, moderní, prostorné a dispozičně chytře řešené bydlení.
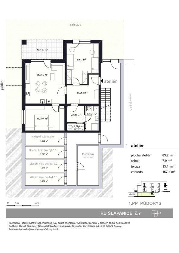
V tomto projektu nabízíme k prodeji ateliér 3+KK s terasou 13,12m2 a zahradou 157,4m2, sklepem 7,9m2 a 1 parkovacím stáním, vše je součástí kupní ceny. Možnost dokoupení dalšího parkovacího stání za cenu 300.000,-Kč.
První tři kupující v tomto projektu mají BONUS - KUCHYŃSKOU LINKU VČETNĚ VŠECH SPOTŘEBIČŮ Zn. ELECTROLUX V HODNOTĚ 650.00,-Kč ZDARMA.
V celém bytě jsou venkovní žaluzie.
Viladům č.7 na ulici Stanislava Hanzelky
Byt č.3 o celkové ploše je umístěn v 1.PP
Dispozice: chodba 11,25m2, obývací pokoj s kuchyňským koutem 25,75m2, ložnice 18,91m2, dětský pokoj 15,39m2, koupelna se sprchovým koutem včetně WC 6,75m2, technická místnost 5,01m2. Z obývacího pokoje přes terasu o výměře 13,12m2 na zahradu 157,4m2.
Standarty bytu, které jsou součástí kupní ceny:
- podlahy vinyl, keramická dlažba
- koupelna - sanitární technika, 1x umyvadlo včetně baterie, sprchový kout včetně WC, zrcadla, obklady - mramor
- interiérové dveře + obložkové zárubně, vstupní dveře
- podlahové vytápění, topné těleso
- venkovní světla
- rekuperace
Samotná lokalita nabízí širokou škálu pracovních možností a veškerou potřebnou občanskou vybavenost a výbornou dojezdnost díky dálnici D1 a D2. Také zde v docházkové vzdálenosti nalezneme školu, školku, řadu obchodů, restaurací a služeb, trolejbusovou zastávku, ale především vlakové nádraží, z kterého jste na Hlavním vlakovém nádraží v Brně va 15 min.
Dokončení bytů je plánované na 3Q roku 2026. Výhodou je model financování nemovitosti.
Pokud by Vás nabídka tohoto či jakéhokoliv jiného bytu v tomto projektu zaujala, kontaktujte prosím makléře, u kterého se dozvíte více.
Děláme moderní bydlení dostupnější.
| Cena: | 12 378 787 Kč |
| Dispozice/podlahová plocha: | 3+kk/104 m² |
| Číslo zakázky: | REALITYMIX-00007 |
Podrobné informace
- Dispozice bytu: 3+kk
- Číslo podlaží v domě: 1
- Počet podlaží objektu: 2
- Celková podlahová plocha: 104 m²
- Druh objektu: cihlová
- Stav objektu: ve výstavbě (hrubá stavba)
- Stáří objektu: 2025
- Vlastnictví: osobní
- Sklep: 8 m²
- Terasa: 13 m²
- Umístění objektu: klidná část obce
- Energetická náročnost budovy: B - Velmi úsporná
- Ukazatel energetické náročnosti budovy: 73 kWh/m²
- Energetický ukazatel podle vyhlášky: č. 264/2020 Sb.
Právní rádce
-
Detail
V tomto článku shrneme nejdůležitější věci, které byste si měli promyslet, pokud se chystáte prodat svou nemovitost a chcete, abyste s kupujícím nemusel následně řešit vzniklé problémy.
Jako prodávající nesete rizika spojená nejen se samotným obchodem, ale i se stavem nemovitosti v době prodeje a pro minimalizaci rizik, je dobré se zamyslet nad uvedenými oblastmi.
-
Detail
Realitní makléř má své nezastupitelné místo v realitním obchodu. Realitním makléřem nemyslím nevzdělané jelito, které absolvovalo dvoudenní školení a ví, jak se nahraje inzerát na inzertní portál.
Realitním makléřem, který se Vám skutečně vyplatí, je zkušený profesionál, který je schopen Vám dobře poradit jak prodat za co nejvíc a s nejmenším rizikem a hlavně je Vás schopen obratně provést celým realitním obchodem.