Prodej bytu, 4+kk, 160 m²
Brno-venkov
16 685 794 KčProdej bytu, 4+kk, 160 m²
Brno-venkov
Prodej bytu 4+kk 151,4m2
Představujeme Vám 3.etapu, která je zaměřena na výstavbu 4 viladomů, se 3 bytovými jednotkami a ateliérem. Je to ideální místo pro ty, kteří hledají kvalitní, moderní, prostorné a dispozičně chytře řešené bydlení.
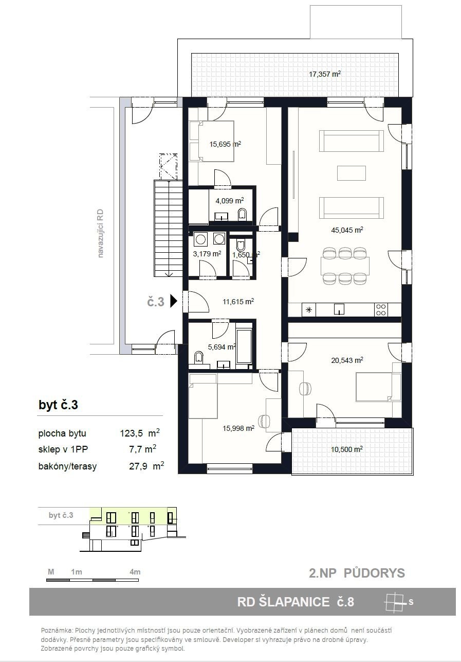
V tomto projektu nabízíme k prodeji byt 4+KK s terasou 17,35m2, balkonem 10,5m2, sklepem 7,7m2 a 1 parkovacím stáním, vše je součástí kupní ceny. Možnost dokoupení dalšího parkovacího stání za cenu 300.000,-Kč.
První tři kupující v tomto projektu mají BONUS - KUCHYŃSKOU LINKU VČETNĚ VŠECH SPOTŘEBIČŮ Zn. ELECTROLUX V HODNOTĚ 650.000,-Kč ZDARMA.
V celém bytě jsou venkovní žaluzie.
Viladům č.7 na ulici Stanislava Hanzelky
Byt č.3 o celkové ploše je umístěn v 2.NP
Dispozice: chodba 11,61m2, obývací pokoj s kuchyňským koutem 45,04m2, ložnice 15,69m2 s koupelnou s vanou včetně WC 4,09m2, dětský pokoj 20,54m2 a druhý dětský pokoj 15,99m2 se vstupy na balkon 10,5m2, koupelna s vanou včetně WC 5,69m2, technická místnost 3,17m2 a WC zvlášť 1,65m2. Z obývacího pokoje a ložnice je vstup na terasu o výměře 17,35m2.
Standarty bytu, které jsou součástí kupní ceny:
- podlahy vinyl, keramická dlažba
- sanitární technika, 2x umyvadlo včetně baterie, 2x vana, 3 x závěsné WC, zrcadla, obklady - mramor
- interiérové dveře + obložkové zárubně, vstupní dveře
- podlahové vytápění, topné těleso
- venkovní světla
- klimatizace
- rekuperace
Samotná lokalita nabízí širokou škálu pracovních možností a veškerou potřebnou občanskou vybavenost a výbornou dojezdnost díky dálnici D1 a D2. Také zde v docházkové vzdálenosti nalezneme školu, školku, řadu obchodů, restaurací a služeb, trolejbusovou zastávku, ale především vlakové nádraží, z kterého jste na Hlavním vlakovém nádraží v Brně va 15 min.
Dokončení bytů je plánované na 3Q roku 2026. Výhodou je model financování nemovitosti.
Pokud by Vás nabídka tohoto či jakéhokoliv jiného bytu v tomto projektu zaujala, kontaktujte prosím makléře, u kterého se dozvíte více.
Děláme moderní bydlení dostupnější.
| Cena: | 16 685 794 Kč |
| Dispozice/podlahová plocha: | 4+kk/160 m² |
| Číslo zakázky: | REALITYMIX-00022 |
Podrobné informace
- Dispozice bytu: 4+kk
- Číslo podlaží v domě: 2
- Počet podlaží objektu: 2
- Celková podlahová plocha: 160 m²
- Druh objektu: cihlová
- Stav objektu: ve výstavbě (hrubá stavba)
- Stáří objektu: 2025
- Vlastnictví: osobní
- Balkon: 11 m²
- Sklep: 8 m²
- Terasa: 18 m²
- Vybaveno: ano
- Umístění objektu: okraj obce
- Doprava: vlak, silnice, MHD
- Topení: Jiné
- Odpad: Kanalizace
- Energetická náročnost budovy: B - Velmi úsporná
- Ukazatel energetické náročnosti budovy: 73 kWh/m²
- Energetický ukazatel podle vyhlášky: č. 264/2020 Sb.
Právní rádce
-
Detail
V tomto článku shrneme nejdůležitější věci, které byste si měli promyslet, pokud se chystáte prodat svou nemovitost a chcete, abyste s kupujícím nemusel následně řešit vzniklé problémy.
Jako prodávající nesete rizika spojená nejen se samotným obchodem, ale i se stavem nemovitosti v době prodeje a pro minimalizaci rizik, je dobré se zamyslet nad uvedenými oblastmi.
-
Detail
Realitní makléř má své nezastupitelné místo v realitním obchodu. Realitním makléřem nemyslím nevzdělané jelito, které absolvovalo dvoudenní školení a ví, jak se nahraje inzerát na inzertní portál.
Realitním makléřem, který se Vám skutečně vyplatí, je zkušený profesionál, který je schopen Vám dobře poradit jak prodat za co nejvíc a s nejmenším rizikem a hlavně je Vás schopen obratně provést celým realitním obchodem.