Prodej - chata/rekreační objekt, 200 m²
Svitavy
2 700 000 KčProdej - chata/rekreační objekt, 200 m²
Svitavy
RD/chalupa 2+1 Stašov, velká zahrada s potokem, veranda, hosp. přístavek, stodola, dílna
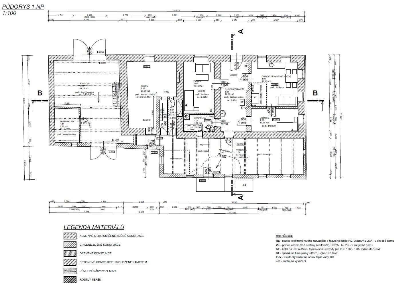
Dispoziční řešení: velká vstupní chodba, z ní samostatné vstupy do velké obytné kuchyně s jídelnou, dvou ložnic, koupelny a na zastřešenou verandu, která se táhne po celé šířce zadní části domu. Z verandy jsou samostatné vstupy na WC, do spíže, do hospodářského přístavku, do stodoly s dílnou a ven na zahradu.
Stáří domu není majiteli přesně známo, pravděpodobně byl postaven mezi první a druhou světovou válkou. Dům je určený k celkové rekonstrukci, zvláštní pozornost je třeba věnovat izolaci domu proti zemní vlhkosti.
Dům je přízemní, nepodsklepený, obytná část je řešena jako 2+1 na 73 m2. Stavební materiál: původní stavba kombinace kámen + cihla, tloušťka obvodových zdí cca 60 cm. Veranda a stodola s dílnou jsou z cihelného zdiva. Technický popis stavby je k dispozici v pasportu/zjednodušené stavební dokumentaci z března 2025.
Střecha: sedlová, bez zateplení, střešní krytina: pálená taška, krovy a latě dřevěné, většinou původní, cca pře 15 lety výměna některých trámů a latí a přeskládání tašek. Střecha nad stodolou vyžaduje opravu, prohýbá se. Podlaha na verandě není srovnaná do roviny a nachází se zde díra po bývalém suchém WC. Cca před 10 lety výměna všech oken za dřevěná EURO s dvojskly, fasáda a částečná venkovní izolace domu proti zemní vlhkosti. I přes tuto skutečnost je v domě patrná vzlínající zemní vlhkost, zejména v pokoji, který byl zbudován z hospodářského přístavku.
Vytápění domu: ústřední s radiátory, kotel na tuhá paliva, funkční, ale nelze jej již ze zákona používat, v kuchyni elektrická akumulační kamna a kuchyňská kamna na dřevo, v koupelně mimo radiátoru i elektrický přímotop. Ohřev teplé vody jen v koupelně elektrickým bojlerem cca 15 let starým.
Inženýrské sítě: elektřina 220/380 V, rozvody původní v hliníku; vodovod obecní, rozvody jen v koupelně, na WC a na chodbě, do kuchyně voda rozvedená není; odpady jsou svedeny do jímky (dvě klasické skruže s přepadem).
Občanská vybavenost: Obec Stašov je bez občanské vybavenosti, za zmínku však určitě stojí dětské hřiště, eko ranč RANCH 102 s možností jízdy na koni, vila Stašov s možností ubytování a soustava stašovských rybníků v povodí Křetínky. Nejbližší obcí se základní občanskou vybaveností je 5 km vzdálené Pomezí nebo 7 km vzdálená Rohozná. Kompletní občanská vybavenost je k dispozici v 9 km vzdálené Poličce.
Dopravní dostupnost: autobus Polička – Rohozná.
Dům se prodává včetně vnitřního vybavení, termín uvolnění: dohodou, možno ihned.
| Cena: | 2 700 000 Kč |
| Poznámka: | včetně provize RK |
| Datum k nastěhování: | 11.05.2025 |
| Číslo zakázky: | REALITYMIX-976202 |
Podrobné informace
- Zastavěná plocha: 265 m²
- Užitná plocha: 200 m²
- Plocha parcely: 2504 m²
- Druh objektu: smíšená
- Stav objektu: před rekonstrukcí
- Počet podlaží objektu: 1
- Umístění objektu: klidná část obce
- Elektřina: Elektro - 230 V
- Voda: Zdroj pro celý objekt, Voda - dálkový vodovod
- Energetická náročnost budovy: G - Mimořádně nehospodárná
Právní rádce
-
Detail
V tomto článku shrneme nejdůležitější věci, které byste si měli promyslet, pokud se chystáte prodat svou nemovitost a chcete, abyste s kupujícím nemusel následně řešit vzniklé problémy.
Jako prodávající nesete rizika spojená nejen se samotným obchodem, ale i se stavem nemovitosti v době prodeje a pro minimalizaci rizik, je dobré se zamyslet nad uvedenými oblastmi.
-
Detail
Realitní makléř má své nezastupitelné místo v realitním obchodu. Realitním makléřem nemyslím nevzdělané jelito, které absolvovalo dvoudenní školení a ví, jak se nahraje inzerát na inzertní portál.
Realitním makléřem, který se Vám skutečně vyplatí, je zkušený profesionál, který je schopen Vám dobře poradit jak prodat za co nejvíc a s nejmenším rizikem a hlavně je Vás schopen obratně provést celým realitním obchodem.