Prodej - výrobní prostor, 1 263 m²
Litoměřice
Cena na vyžádáníProdej - výrobní prostor, 1 263 m²
Litoměřice
Prodej výrobní haly 1400 m2, Sulejovice
Nabízíme k prodeji moderní pětipodlažní halu s kompletním zázemím, výtahem a vlastním pozemkem v obci Sulejovice, jen pár minut od dálnice D8. Objekt je vhodný pro investory, výrobní nebo logistické společnosti i firmy, které hledají reprezentativní provozní a skladové prostory s výbornou dopravní dostupností.
Hlavní budovu tvoří vytápěná hala o pěti nadzemních podlažích, stojící na oploceném pozemku o rozloze cca 1 800 m. Plocha umožňuje parkování pro minimálně 15 vozidel a pohodlný pohyb nákladní techniky.
Na pozemku se nachází pět kontejnerových skladů, odpočinková terasa o 80 m, dětské a workoutové hřiště s trampolínou, a také nabíječka pro elektromobily. Vše je doplněno o automatickou bránu s dálkovým ovládáním, kamerový systém, Wi-Fi pokrytí a automatický závlahový systém s okrasnými truhlíky.
Dispozice a využití
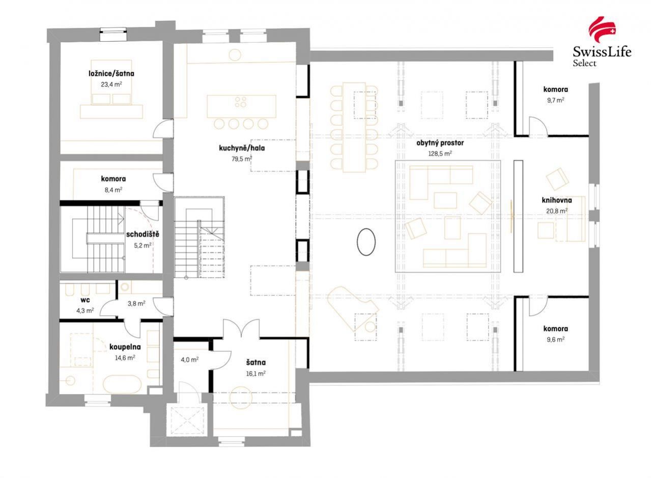
Budova má tři samostatné vstupy hlavní sekční vrata (šířka 5 m, výška 6 m), reprezentativní vstupní schodiště a přístup přes výtah s oboustranným výstupem v přízemí.
Tři nižší patra (cca 250 m, 180 m a 250 m) jsou uzpůsobena pro skladování, provoz nebo lehkou výrobu, každé s vlastní kanceláří, sociálním zařízením a kuchyňkou.
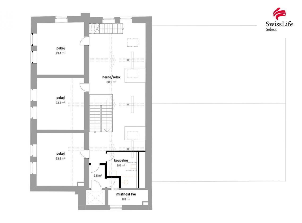
Horní podlaží lze dokončit podle potřeb nového majitele jako kancelářské prostory, ateliéry nebo zázemí firmy. Na boku objektu se nachází malá garáž a technická místnost s přípravou pro další technologie.
Technické zázemí
Objekt je vybaven bezpečnostním systémem Jablotron (možnost napojení na PCO), kompletní datovou a Wi-Fi sítí.
Díky fotovoltaickým panelům a vlastní studni je budova energeticky úsporná a z velké části soběstačná.
Vytápění zajišťuje elektrický systém, budova má nízké provozní náklady díky kvalitní rekonstrukci a použitým technologiím.
Umístění
Sulejovice mají výborné dopravní napojení Praha do 30 minut, Ústí nad Labem 20 minut, Litoměřice 15 minut.
Areál se nachází v klidné části obce, ale zároveň v strategické poloze mezi hlavními průmyslovými centry severních a středních Čech.
Tento objekt představuje všestranné komerční zázemí s výborným technickým řešením a investičním potenciálem vhodný jak pro vlastní podnikání, tak pro pronájem jednotlivých pater.
V případě více zájemců o nemovitost, si majitel vyhrazuje právo prodat nemovitost zájemci s nejvyšší nabídkou.
| Cena: | Cena na vyžádání |
| Poznámka: | informace v RK |
| Číslo zakázky: | REALITYMIX-24787 |
Podrobné informace
- Plocha kanceláří: 1263 m²
- Druh objektu: smíšená
- Stav objektu: velmi dobrý
- Druh prostor: Výrobní
- Umístění objektu: klidná část obce
- Doprava: vlak, dálnice, silnice, autobus
- Energetická náročnost budovy: A - Mimořádně úsporná
Právní rádce
-
Detail
V tomto článku shrneme nejdůležitější věci, které byste si měli promyslet, pokud se chystáte prodat svou nemovitost a chcete, abyste s kupujícím nemusel následně řešit vzniklé problémy.
Jako prodávající nesete rizika spojená nejen se samotným obchodem, ale i se stavem nemovitosti v době prodeje a pro minimalizaci rizik, je dobré se zamyslet nad uvedenými oblastmi.
-
Detail
Realitní makléř má své nezastupitelné místo v realitním obchodu. Realitním makléřem nemyslím nevzdělané jelito, které absolvovalo dvoudenní školení a ví, jak se nahraje inzerát na inzertní portál.
Realitním makléřem, který se Vám skutečně vyplatí, je zkušený profesionál, který je schopen Vám dobře poradit jak prodat za co nejvíc a s nejmenším rizikem a hlavně je Vás schopen obratně provést celým realitním obchodem.
Mapa
Podobné nemovitosti
Prodej - obchodní prostor, 1 180 m²
Těchobuzice, Litoměřice
17 900 000 Kč
Prodej - skladovací prostor, 752 m²
Těchobuzice, Litoměřice
4 997 250 Kč
Prodej - výrobní prostor, 600 m²
Stračenská, Štětí, Litoměřice
11 990 000 Kč
Prodej - skladovací prostor, 2 301 m²
Jeronýmova, Roudnice nad Labem, Litoměřice
29 000 000 Kč